Maison neuve, 90 m² - Pîtres (27590)

210 000 €
Pîtres (27590)

Proposée par MAISONS BALENCY – 6 pièces - 4 chambres - terrain 550 m²

MAISONS BALENCY
MAISONS BALENCY
  • Demande d'information
MAISON À CONSTRUIRE : ceci est une annonce d'une maison neuve à construire.
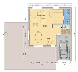
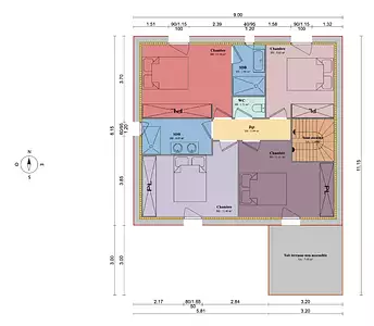
Maison T6 (90 m²) à vendre à Pîtres
Quartier recherché - À Pîtres (27590), maison neuve à vendre de 6 pièces, 2 niveaux, 90 m² sur 550 m² de terrain. Son intérieur offre quatre chambres, une cuisine et deux salles de bains.
À dix minutes : gares, École Primaire Jacques Prévert, bibliothèque. Accès autoroutes A13 et A154 à 10 km. Rouen à 15 km.
Cette maison de 6 pièces est proposée à l'achat pour 210 000 €.
. Maisons Balency Boos vous accompagne à toutes les étapes de votre projet et dans tous vos projets immobiliers.
Annonce proposée par un Agent Commercial Partenaire.
Référence : AK2388877_1
Terrain proposé par un partenaire foncier selon disponibilités et autorisation de publicité au prix de 45 000 €. Hors droit d'enregistrement et frais de notaire. Terrain + Maison proposés au prix de 165 000 € (Hors branchements et raccordements, papiers peints, peintures, revêtement de sol dans les chambres. Tarif modifiable sans préavis). Etiquette énergie : A. Différents modèles disponibles pour ce terrain. . HEXAOM Services est enregistré auprès de l'ORIAS en tant que Courtier en financement, Niveau 1, sous le numéro 14001345.

Les informations sur les risques auxquels ce bien est exposé sont disponibles sur le site Géorisques : www.georisques.gouv.fr


Prix
  • Prix total : 210 000 €
  • Prix du modèle de maison : 165 000 €
  • Prix du terrain : 45 000 €

Terrain
  • Surface : 550 m²

Maison
  • Surface : 90 m²
  • Pièces : 6
  • Chambres : 4
  • Garage : 1

  • Être rappelé par un conseiller
  • Demander plus d’infos
  • Demande d'information
Pîtres (27590)

Programmes à proximité

RESIDENCE VALVERT
RESIDENCE VALVERT
Val-de-Reuil (27100)

Appartements de 2 pièces
Livraison 4ème trimestre 2026

À 10 MIN* DE LA GARE
À 10 MIN* DE LA GARE
Oissel (76350)

Appartements de 2 pièces
Livraison 4ème trimestre 2026

L'ECRIN VERT
L'ECRIN VERT
Le Mesnil-Esnard (76240)

Appartements de 2 à 4 pièces
Livraison 4ème trimestre 2027

Les Amandiers
Les Amandiers
Louviers (27400)

Appartement de 3 pièces
Livraison 4ème trimestre 2025

Reverso Louviers
Reverso Louviers
Louviers (27400)

Appartements de 1 à 3 pièces
Livraison 4ème trimestre 2025

Louise Sainte-Martine
Louise Sainte-Martine
Sotteville-lès-Rouen (76300)

Appartements de 2 à 4 pièces
Livraison 2ème trimestre 2028

Contacter MAISONS BALENCY pour recevoir plus d'informations

Remplissez le formulaire ci-dessous, vos informations sont transmises directement au constructeur qui vous contactera par email ou par téléphone afin de traiter votre demande. En savoir plus.

Voir tous nos programmes immobiliers neufs à Pîtres