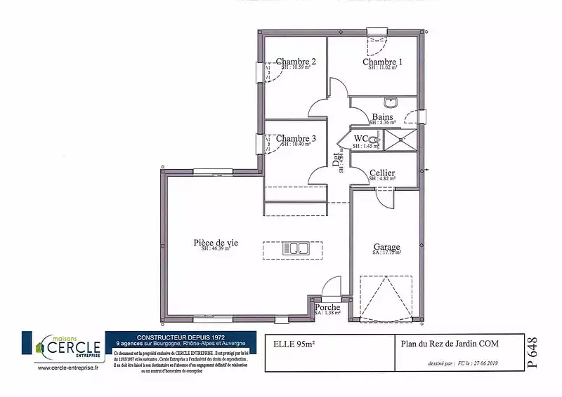
Maison neuve, 95 m² - Palinges (71430)
187 517 €
Palinges (71430)
Proposée par CERCLE ENTREPRISE AGENCE DE MONTCEAU-LES-MINES ( S – 4 pièces - 3 chambres - terrain 761 m²
|
|
| Cercle entreprise Agence de Montceau-les-Mines ( S |
- Demande d'information
- Prendre rendez-vous
MAISON À CONSTRUIRE : ceci est une annonce d'une maison neuve à construire.
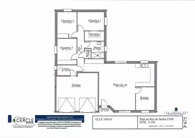
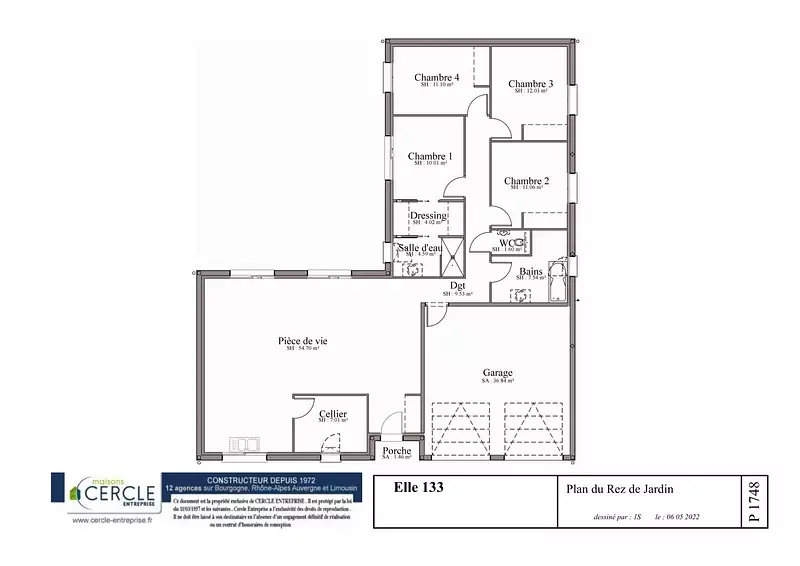
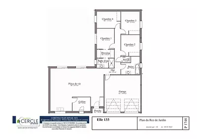
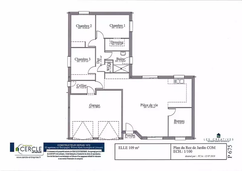
Nous vous présentons avec fierté notre nouvelle maison, baptisée "Elle", un modèle qui allie élégance et fonctionnalité, conçu pour répondre aux exigences les plus élevées en matière d'habitat moderne. Dotée d'une surface habitable de 95 m², "Elle" se distingue par son architecture en forme de L, offrant un design unique et une intégration harmonieuse dans son environnement.
Cette maison comprend 3 chambres spacieuses, permettant à chaque membre de la famille de bénéficier de son propre espace de tranquillité. Le plan inclut donc 4 pièces bien agencées, assurant une vie familiale des plus agréables. Le vaste espace de vie, entièrement ouvert, est conçu pour maximiser la lumière naturelle grâce à de grandes baies coulissantes qui créent une transition fluide entre l'intérieur et l'extérieur.
Le garage intégré assure une transition pratique et sécurisée entre votre espace de vie et votre véhicule. "Elle" se distingue par sa flexibilité, offrant plusieurs configurations possibles : que vous souhaitiez 4 chambres simples, une suite parentale pour plus d'intimité, ou encore une version incluant un bureau pour vos activités professionnelles ou créatives, toutes ces options sont réalisables.
Les options populaires, telles que le choix entre un toit à 2 ou 4 pans, un double garage pour plus d'espace, ou encore des menuiseries en aluminium pour une touche de modernité et de durabilité, sont disponibles pour personnaliser votre maison selon vos préférences.
Au-delà de son esthétique et de sa fonctionnalité, "Elle" est une maison basse consommation, conforme à la norme RE2020. Ce modèle représente une véritable prouesse en matière d'efficacité énergétique, garantissant un confort optimal tout en minimisant votre empreinte écologique. "Elle" n'est pas simplement une maison ; c'est un espace de vie conçu pour s'adapter à vos rêves et à votre quotidien, tout en respectant l'environnement.
Saisissez cette opportunité unique de construire le foyer de vos rêves, alliant esthéti
Référence : 14565
Les informations sur les risques auxquels ce bien est exposé sont disponibles sur le site Géorisques : www.georisques.gouv.fr
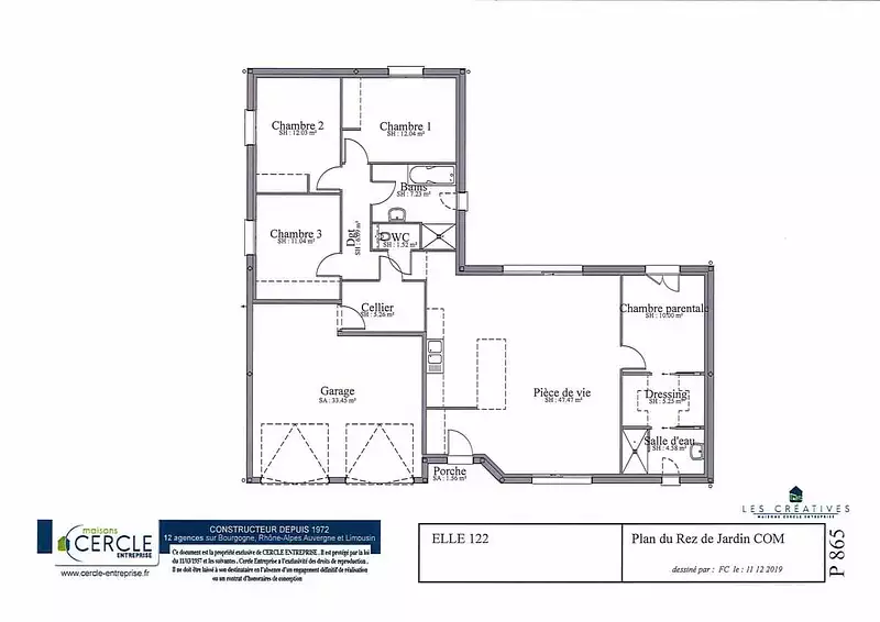
Cette maison comprend 3 chambres spacieuses, permettant à chaque membre de la famille de bénéficier de son propre espace de tranquillité. Le plan inclut donc 4 pièces bien agencées, assurant une vie familiale des plus agréables. Le vaste espace de vie, entièrement ouvert, est conçu pour maximiser la lumière naturelle grâce à de grandes baies coulissantes qui créent une transition fluide entre l'intérieur et l'extérieur.
Le garage intégré assure une transition pratique et sécurisée entre votre espace de vie et votre véhicule. "Elle" se distingue par sa flexibilité, offrant plusieurs configurations possibles : que vous souhaitiez 4 chambres simples, une suite parentale pour plus d'intimité, ou encore une version incluant un bureau pour vos activités professionnelles ou créatives, toutes ces options sont réalisables.
Les options populaires, telles que le choix entre un toit à 2 ou 4 pans, un double garage pour plus d'espace, ou encore des menuiseries en aluminium pour une touche de modernité et de durabilité, sont disponibles pour personnaliser votre maison selon vos préférences.
Au-delà de son esthétique et de sa fonctionnalité, "Elle" est une maison basse consommation, conforme à la norme RE2020. Ce modèle représente une véritable prouesse en matière d'efficacité énergétique, garantissant un confort optimal tout en minimisant votre empreinte écologique. "Elle" n'est pas simplement une maison ; c'est un espace de vie conçu pour s'adapter à vos rêves et à votre quotidien, tout en respectant l'environnement.
Saisissez cette opportunité unique de construire le foyer de vos rêves, alliant esthéti
Référence : 14565
Les informations sur les risques auxquels ce bien est exposé sont disponibles sur le site Géorisques : www.georisques.gouv.fr
- Prix
-
- Prix total : 187 517 €
- Prix du modèle de maison : 168 340 €
- Prix du terrain : 19 177 €
- Terrain
-
- Surface : 761 m²
- Maison
-
- Surface : 95 m²
- Pièces : 4
- Chambres : 3
- Être rappelé par un conseiller
- Demander plus d’infos
- Demande d'information
Palinges (71430)
Maisons à proximité
Maison neuve, 85 m²
Palinges (71430)
Palinges (71430)
Maison de 4 pièces
Maison neuve, 82 m²
Palinges (71430)
Palinges (71430)
Maison de 4 pièces
Maison neuve, 90 m²
Palinges (71430)
Palinges (71430)
Maison de 4 pièces
Maison neuve, 88 m²
Palinges (71430)
Palinges (71430)
Maison de 4 pièces
Maison neuve, 91 m²
Palinges (71430)
Palinges (71430)
Maison de 5 pièces
Maison neuve, 80 m²
Palinges (71430)
Palinges (71430)
Maison de 4 pièces
Programmes à proximité
Contacter CERCLE ENTREPRISE AGENCE DE MONTCEAU-LES-MINES ( S pour recevoir plus d'informations
Remplissez le formulaire ci-dessous, vos informations sont transmises directement au constructeur qui vous contactera par email ou par téléphone afin de traiter votre demande. En savoir plus.