Maison neuve, 88 m² - Palinges (71430)
168 700 €
Palinges (71430)
Proposée par MAISON ET JARDIN – 4 pièces - 3 chambres - terrain 900 m²
|
|
| Maison et Jardin |
- Demande d'information
- Prendre rendez-vous
MAISON À CONSTRUIRE : ceci est une annonce d'une maison neuve à construire.
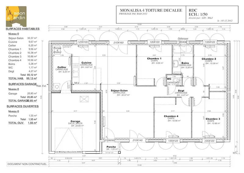
Nous vous proposons cette maison neuve, baptisée Mona Lisa, un modèle phare de la gamme MAISON ET JARDIN, qui allie fonctionnalité, esthétique contemporaine et performance énergétique. Disponible en plusieurs déclinaisons pour s'adapter à vos besoins, la Mona Lisa est conçue pour être la maison de plain-pied idéale, répondant à toutes les attentes en termes de confort et de style de vie.
Avec une surface habitable de 88 m², cette maison se compose de 4 pièces lumineuses et bien agencées, dont 3 chambres accueillantes, offrant un espace de vie idéal pour une famille. Le design contemporain de la maison, avec ses lignes épurées et son agencement pensé pour maximiser l'espace et la lumière, ajoute un charme indéniable à ce bien.
L'un des atouts majeurs de la Mona Lisa est son garage intégré, pratique et esthétique, qui s'harmonise parfaitement avec le style de la maison. Cette caractéristique, très prisée, assure non seulement un espace de stationnement sécurisé mais aussi un espace de rangement supplémentaire ou une zone de bricolage selon vos besoins.
Construite dans le respect des normes RE2020, cette maison neuve basse consommation représente un investissement durable et éco-responsable. Elle est conçue pour minimiser son impact environnemental tout en garantissant un confort optimal à ses habitants, été comme hiver, grâce à une isolation performante, une ventilation optimisée et l'utilisation de matériaux de qualité.
Le rapport qualité/prix de la Mona Lisa est exceptionnel, offrant à ses futurs propriétaires une maison de haute qualité à un prix accessible. C'est une opportunité unique de devenir propriétaire d'une maison neuve, personnalisable selon vos goûts et vos besoins, et de bénéficier des dernières innovations en matière de construction durable.
Opter pour la Mona Lisa, c'est choisir une maison qui répond aux exigences les plus demandées par nos clients : une maison basse consommation, respectueuse de l'environnement, sans compromis sur le confort et
Référence : 13641
Les informations sur les risques auxquels ce bien est exposé sont disponibles sur le site Géorisques : www.georisques.gouv.fr
Avec une surface habitable de 88 m², cette maison se compose de 4 pièces lumineuses et bien agencées, dont 3 chambres accueillantes, offrant un espace de vie idéal pour une famille. Le design contemporain de la maison, avec ses lignes épurées et son agencement pensé pour maximiser l'espace et la lumière, ajoute un charme indéniable à ce bien.
L'un des atouts majeurs de la Mona Lisa est son garage intégré, pratique et esthétique, qui s'harmonise parfaitement avec le style de la maison. Cette caractéristique, très prisée, assure non seulement un espace de stationnement sécurisé mais aussi un espace de rangement supplémentaire ou une zone de bricolage selon vos besoins.
Construite dans le respect des normes RE2020, cette maison neuve basse consommation représente un investissement durable et éco-responsable. Elle est conçue pour minimiser son impact environnemental tout en garantissant un confort optimal à ses habitants, été comme hiver, grâce à une isolation performante, une ventilation optimisée et l'utilisation de matériaux de qualité.
Le rapport qualité/prix de la Mona Lisa est exceptionnel, offrant à ses futurs propriétaires une maison de haute qualité à un prix accessible. C'est une opportunité unique de devenir propriétaire d'une maison neuve, personnalisable selon vos goûts et vos besoins, et de bénéficier des dernières innovations en matière de construction durable.
Opter pour la Mona Lisa, c'est choisir une maison qui répond aux exigences les plus demandées par nos clients : une maison basse consommation, respectueuse de l'environnement, sans compromis sur le confort et
Référence : 13641
Les informations sur les risques auxquels ce bien est exposé sont disponibles sur le site Géorisques : www.georisques.gouv.fr
- Prix
-
- Prix total : 168 700 €
- Prix du modèle de maison : 145 300 €
- Prix du terrain : 23 400 €
- Terrain
-
- Surface : 900 m²
- Maison
-
- Surface : 88 m²
- Pièces : 4
- Chambres : 3
- Être rappelé par un conseiller
- Demander plus d’infos
- Demande d'information
Palinges (71430)
Maisons à proximité
Maison neuve, 85 m²
Palinges (71430)
Palinges (71430)
Maison de 4 pièces
Maison neuve, 91 m²
Palinges (71430)
Palinges (71430)
Maison de 5 pièces
Maison neuve, 80 m²
Palinges (71430)
Palinges (71430)
Maison de 4 pièces
Maison neuve, 88 m²
Perrecy-les-Forges (71420)
Perrecy-les-Forges (71420)
Maison de 4 pièces
Maison neuve, 91 m²
Perrecy-les-Forges (71420)
Perrecy-les-Forges (71420)
Maison de 5 pièces
Maison neuve, 90 m²
Saint-Vincent-Bragny (71430)
Saint-Vincent-Bragny (71430)
Maison de 4 pièces
Programmes à proximité
Contacter MAISON ET JARDIN pour recevoir plus d'informations
Remplissez le formulaire ci-dessous, vos informations sont transmises directement au constructeur qui vous contactera par email ou par téléphone afin de traiter votre demande. En savoir plus.