Maison neuve, 73 m² - Ô-de-Selle (80160)
176 232 €
Ô-de-Selle (80160)
Proposée par BABEAU SEGUIN AGENCE D’AMIENS (80000) – SOMME – 5 pièces - 4 chambres - terrain 863 m²
|
|
| Babeau Seguin Agence d’Amiens (80000) – Somme |
- Demande d'information
- Prendre rendez-vous
MAISON À CONSTRUIRE : ceci est une annonce d'une maison neuve à construire.
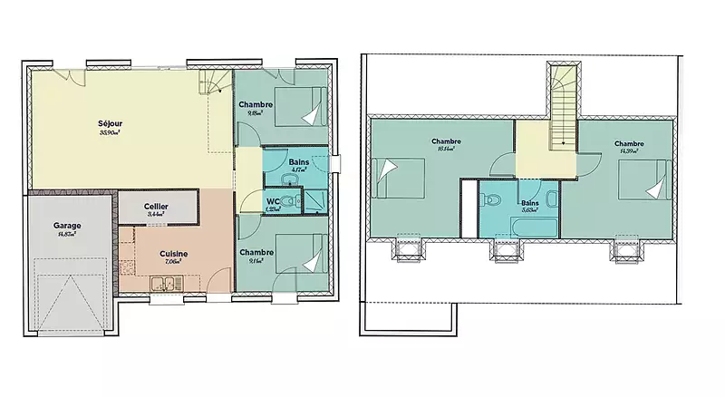
Sur ce terrain, nous vous proposons cette maison neuve : la Focus EVO, un modèle unique de 110 m² conçu par Babeau-Seguin, constructeur offrant le meilleur rapport qualité/prix du marché. Cette maison basse consommation est conforme à la norme RE2020, garantissant des performances énergétiques exceptionnelles.
La Focus EVO se distingue par son concept évolutif, alliant une maison neuve prête à vivre et une maison prête à finir. Livrée avec 73 m² habitables, elle est conçue pour évoluer avec vos besoins futurs. Grâce à ses combles aménageables, vous pouvez facilement augmenter votre surface habitable à 110 m², ajoutant ainsi deux chambres supplémentaires et une salle de bain, pour un total de 4 chambres et 2 salles de bains.
Les caractéristiques principales de cette maison incluent un garage intégré, un cellier, et des combles aménageables. Les options les plus demandées par nos clients, telles que la version Investisseur et les prises USB murales, sont également disponibles.
La Focus EVO est idéale pour tous ceux qui recherchent une maison complète à un prix compétitif. Elle comprend une grande pièce de jour traversante, 4 chambres, une salle de bain, et un garage de 15 m². Que vous soyez un jeune couple, un célibataire ou une famille en pleine expansion, cette maison saura s'adapter à vos besoins et à vos envies.
Ne manquez pas cette occasion unique de devenir propriétaire d'une maison évolutive, économe en énergie et conforme aux dernières normes environnementales. Contactez-nous dès aujourd'hui pour plus d'informations et pour planifier une visite.
Référence : 90811
Les informations sur les risques auxquels ce bien est exposé sont disponibles sur le site Géorisques : www.georisques.gouv.fr
La Focus EVO se distingue par son concept évolutif, alliant une maison neuve prête à vivre et une maison prête à finir. Livrée avec 73 m² habitables, elle est conçue pour évoluer avec vos besoins futurs. Grâce à ses combles aménageables, vous pouvez facilement augmenter votre surface habitable à 110 m², ajoutant ainsi deux chambres supplémentaires et une salle de bain, pour un total de 4 chambres et 2 salles de bains.
Les caractéristiques principales de cette maison incluent un garage intégré, un cellier, et des combles aménageables. Les options les plus demandées par nos clients, telles que la version Investisseur et les prises USB murales, sont également disponibles.
La Focus EVO est idéale pour tous ceux qui recherchent une maison complète à un prix compétitif. Elle comprend une grande pièce de jour traversante, 4 chambres, une salle de bain, et un garage de 15 m². Que vous soyez un jeune couple, un célibataire ou une famille en pleine expansion, cette maison saura s'adapter à vos besoins et à vos envies.
Ne manquez pas cette occasion unique de devenir propriétaire d'une maison évolutive, économe en énergie et conforme aux dernières normes environnementales. Contactez-nous dès aujourd'hui pour plus d'informations et pour planifier une visite.
Référence : 90811
Les informations sur les risques auxquels ce bien est exposé sont disponibles sur le site Géorisques : www.georisques.gouv.fr
- Prix
-
- Prix total : 176 232 €
- Prix du modèle de maison : 109 732 €
- Prix du terrain : 66 500 €
- Terrain
-
- Surface : 863 m²
- Maison
-
- Surface : 73 m²
- Pièces : 5
- Chambres : 4
- Être rappelé par un conseiller
- Demander plus d’infos
- Demande d'information
Ô-de-Selle (80160)
Maisons à proximité
Maison neuve, 94,65 m²
Saint-Sauflieu (80160)
Saint-Sauflieu (80160)
Maison de 4 pièces
Maison neuve, 71,77 m²
Conty (80160)
Conty (80160)
Maison de 4 pièces
Maison neuve, 114 m²
Conty (80160)
Conty (80160)
Maison de 5 pièces
Maison neuve, 69,68 m²
Conty (80160)
Conty (80160)
Maison de 4 pièces
Maison neuve, 110 m²
Conty (80160)
Conty (80160)
Maison de 5 pièces
Maison neuve, 102,37 m²
Flers-sur-Noye (80160)
Flers-sur-Noye (80160)
Maison de 4 pièces
Programmes à proximité
LA PLUME DE SAMARA
Amiens (80000)
Amiens (80000)
Appartements de 2 à 3 pièces
Livraison 1er trimestre 2025
ALTER EGO
Amiens (80000)
Amiens (80000)
Appartements de 1 à 3 pièces
Livraison 4ème trimestre 2026
Résidence Hortea
Amiens (80000)
Amiens (80000)
Appartements de 1 à 3 pièces
FLOW
Amiens (80000)
Amiens (80000)
Appartements de 1 à 5 pièces
Livraison 4ème trimestre 2027
Prochainement à Amiens
Amiens (80000)
Amiens (80000)
Appartements de 1 à 5 pièces
L'APARTÉ
Amiens (80000)
Amiens (80000)
Appartements de 2 à 4 pièces
Livraison 3ème trimestre 2028
Contacter BABEAU SEGUIN AGENCE D’AMIENS (80000) – SOMME pour recevoir plus d'informations
Remplissez le formulaire ci-dessous, vos informations sont transmises directement au constructeur qui vous contactera par email ou par téléphone afin de traiter votre demande. En savoir plus.