Maison neuve, 150 m² - Nemours (77140)

378 000 €
Nemours (77140)

Proposée par MAISONS BALENCY – 6 pièces - 4 chambres - terrain 752 m²

MAISONS BALENCY
MAISONS BALENCY
  • Demande d'information
MAISON À CONSTRUIRE : ceci est une annonce d'une maison neuve à construire.
Centre-ville de NEMOURS (77140), à 1h15 de PARIS, dès 378 000 €
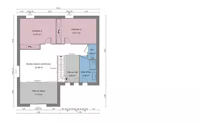
Trianon Haut-de-Gamme de 150 m² à bâtir sur un vaste terrain de 752 m²
Devenez le ou les heureux propriétaires d'une demeure familiale envisageable sur un terrain bénéficiant d'une généreuse façade de 17 mètres. Cette opportunité rare est à saisir en plein coeur de Nemours !
Votre maison respectera scrupuleusement les dernières normes RE2020 et sera DPE A ou B (selon son orientation).
Profitez d'un quotidien facilité :
- Faites vos courses en un clin d'oeil au Carrefour Market (à 5 minutes à pied) ou découvrez les produits frais du terroir sur le marché hebdomadaire de la place de la République (également à 5 minutes à pied).
- Assurez l'avenir de vos enfants grâce à la proximité de l'école maternelle et primaire du Centre (à 7 minutes à pied) et du Collège Arthur Rimbaud (à 10 minutes en vélo).
- Voyagez en toute simplicité grâce à la gare de Nemours - Saint-Pierre (à 12 minutes à pied), desservie par les lignes R du Transilien, vous connectant aisément à Paris et aux environs.
- Offrez-vous des pauses nature au charmant jardin du Luxembourg nemourien ou le long des paisibles rives du Loing, accessibles en quelques minutes de marche. Les cinéphiles apprécieront le cinéma Le Monte Carlo situé à 8 minutes à pied.
- Bénéficiez de la proximité d'une pharmacie et d'une variété de commerces de quartier, tous situés à moins de 5 minutes de votre future adresse.
Ne laissez pas passer cette occasion unique de construire la demeure de vos rêves au coeur de Nemours !.
23 chemin de Tournenfils
91540 ORMOY
Annonce proposée par un Agent Commercial Partenaire.
Référence : PM2313139_4
Terrain proposé par un partenaire foncier selon disponibilités et autorisation de publicité au prix de 88 000 €. Hors droit d'enregistrement et frais de notaire. Maison proposée, avec un contrat de construction de maison individuelle, dans le cadre de la loi du 19/12/1990, au prix de 290 000 € (Hors branchements et raccordements, papiers peints, peintures, revêtement de sol dans les chambres, qui sont chiffrés dans les travaux qui restent à charge du client. Tarif modifiable sans préavis). Étiquette énergie : A. Différents modèles disponibles pour ce terrain. Assurances et garanties du constructeur comprises (RC professionnelle, décennale, dommage ouvrage).

Les informations sur les risques auxquels ce bien est exposé sont disponibles sur le site Géorisques : www.georisques.gouv.fr


Prix
  • Prix total : 378 000 €
  • Prix du modèle de maison : 290 000 €
  • Prix du terrain : 88 000 €

Terrain
  • Surface : 752 m²

Maison
  • Surface : 150 m²
  • Pièces : 6
  • Chambres : 4

  • Être rappelé par un conseiller
  • Demander plus d’infos
  • Demande d'information
Nemours (77140)

Maisons à proximité

Résidence Le Fleury
Résidence Le Fleury
Nemours (77140)

Appartements de 3 pièces et maisons de 4 pièces
Livraison 4ème trimestre 2026

Programmes à proximité

Les Jardins du Grand Pont
Les Jardins du Grand Pont
Nemours (77140)

Appartements de 2 à 4 pièces
Livraison 4ème trimestre 2027

Résidence Le Fleury
Résidence Le Fleury
Nemours (77140)

Appartements de 3 pièces et maisons de 4 pièces
Livraison 4ème trimestre 2026

LE DOMAINE DE CASTILLE
LE DOMAINE DE CASTILLE
La Chapelle-la-Reine (77760)

Appartements de 2 à 3 pièces et maisons de 4 à 5 pièces
Livraison 1er trimestre 2027

L'Allée Royale
L'Allée Royale
Fontainebleau (77300)

Appartements de 2 à 4 pièces
Livraison 4ème trimestre 2027

Contacter MAISONS BALENCY pour recevoir plus d'informations

Remplissez le formulaire ci-dessous, vos informations sont transmises directement au constructeur qui vous contactera par email ou par téléphone afin de traiter votre demande. En savoir plus.

Voir tous nos programmes immobiliers neufs à Nemours