Maison neuve, 95 m² - Nemours (77140)

272 827 €
Nemours (77140)

Proposée par BABEAU SEGUIN AGENCE DE NEMOURS (77140) – SEINE ET – 4 pièces - 3 chambres - terrain 1 666 m²

Babeau Seguin Agence de Nemours (77140) – Seine et
Babeau Seguin Agence de Nemours (77140) – Seine et
  • Demande d'information
MAISON À CONSTRUIRE : ceci est une annonce d'une maison neuve à construire.
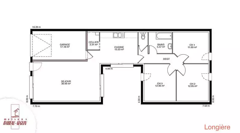
Sur ce terrain, nous vous proposons cette maison neuve, la Longière, conçue par Babeau-Seguin, constructeur offrant le meilleur rapport qualité/prix du marché. Parfaitement conçue pour ce terrain, la Longière de 95 m² est une maison résolument moderne à mi-chemin entre style traditionnel et contemporain.
Cette maison design a été pensée pour s'adapter aux terrains les plus étroits, avec une façade de seulement 8 mètres. Vous avez le choix entre une toiture à 2 pans ou à 4 pans, selon vos préférences esthétiques. La Longière se distingue par son garage intégré, son patio central et ses baies coulissantes qui apportent une luminosité exceptionnelle à l'intérieur.
Elle se compose de 3 chambres spacieuses et de 4 pièces au total, offrant un espace de vie confortable et fonctionnel. Les options les plus demandées par nos clients, telles que les menuiseries en aluminium, sont également disponibles pour personnaliser votre maison selon vos goûts.
En plus de son design attrayant, cette maison neuve est basse consommation et conforme à la réglementation RE2020, garantissant une performance énergétique optimale et un respect de l'environnement.
Ne manquez pas cette opportunité unique de devenir propriétaire d'une maison moderne et éco-responsable, parfaitement adaptée à vos besoins et à votre style de vie. Contactez-nous dès maintenant pour plus d'informations et pour planifier une visite.
Référence : 72745

Les informations sur les risques auxquels ce bien est exposé sont disponibles sur le site Géorisques : www.georisques.gouv.fr


Prix
  • Prix total : 272 827 €
  • Prix du modèle de maison : 174 827 €
  • Prix du terrain : 98 000 €

Terrain
  • Surface : 1 666 m²

Maison
  • Surface : 95 m²
  • Pièces : 4
  • Chambres : 3

  • Être rappelé par un conseiller
  • Demander plus d’infos
  • Demande d'information
Nemours (77140)

Maisons à proximité

Résidence Le Fleury
Résidence Le Fleury
Nemours (77140)

Appartements de 3 pièces et maisons de 4 pièces
Livraison 4ème trimestre 2026

Programmes à proximité

Résidence Le Fleury
Résidence Le Fleury
Nemours (77140)

Appartements de 3 pièces et maisons de 4 pièces
Livraison 4ème trimestre 2026

Les Jardins du Grand Pont
Les Jardins du Grand Pont
Nemours (77140)

Appartements de 2 à 4 pièces
Livraison 3ème trimestre 2028

LE DOMAINE DE CASTILLE
LE DOMAINE DE CASTILLE
La Chapelle-la-Reine (77760)

Appartements de 2 à 3 pièces et maisons de 4 à 5 pièces
Livraison 1er trimestre 2027

L'Allée Royale
L'Allée Royale
Fontainebleau (77300)

Appartements de 2 à 4 pièces
Livraison 4ème trimestre 2027

Contacter BABEAU SEGUIN AGENCE DE NEMOURS (77140) – SEINE ET pour recevoir plus d'informations

Remplissez le formulaire ci-dessous, vos informations sont transmises directement au constructeur qui vous contactera par email ou par téléphone afin de traiter votre demande. En savoir plus.

Voir tous nos programmes immobiliers neufs à Nemours