Maison neuve, 120 m² - Montreuil-en-Caux (76850)
Proposée par EXTRACO - CONSTRUCTION | RÉNOVATION – 4 pièces - 3 chambres - terrain 650 m²
|
EXTRACO - Construction | Rénovation |
- Demande d'information
- Prendre rendez-vous
À proximité, dans le bourg : école, boulangerie, parc pour enfants, bus vert.
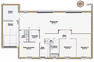
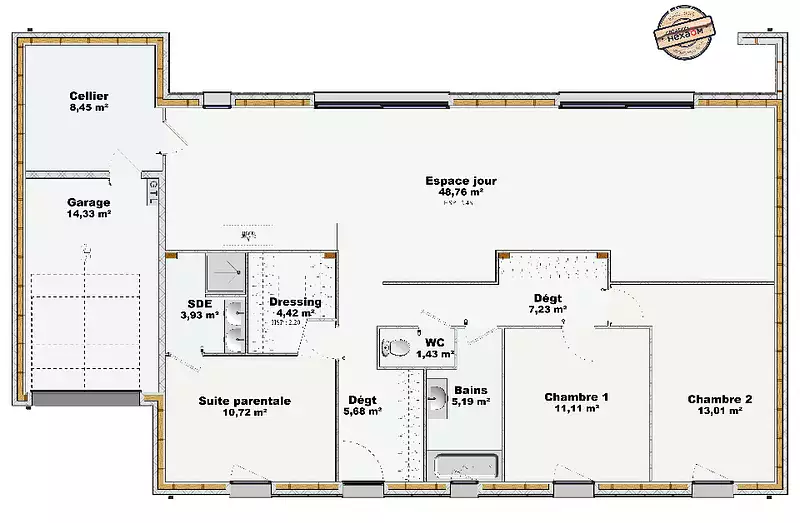
Cette maison contemporaine bénéficie d'un agencement agréable : - Salon/séjour avec cuisine ouverte de 45 m², avec une grande baie coulissante de 2,20 m en alu, - cellier, - 3 chambres avec placards, - suite parentale avec dressing et douche à l'italienne, - salle de bains avec baignoire et douche, - garage de 15 m².
Isolation renforcée avec système de chauffage très économique par pompe à chaleur. Maison certifiée RE20. DPE : A / GSE : B.
Venez nous renco... Afficher plus
Personnalisée sur les secteurs de votre choix. .
(Premier échange par SMS possible)
Référence : JL2206465_4
Terrain proposé par un partenaire foncier selon disponibilités et autorisation de publicité au prix de 57 000 €. Hors droit d'enregistrement et frais de notaire. Maison proposée, avec un contrat de construction de maison individuelle, dans le cadre de la loi du 19/12/1990, au prix de 230 000 € (Hors branchements et raccordements, papiers peints, peintures, revêtement de sol dans les chambres, qui sont chiffrés dans les travaux qui restent à charge du client. Tarif modifiable sans préavis). Étiquette énergie : A. Différents modèles disponibles pour ce terrain. Assurances et garanties du constructeur comprises (RC professionnelle, décennale, dommage ouvrage).
Les informations sur les risques auxquels ce bien est exposé sont disponibles sur le site Géorisques : www.georisques.gouv.fr
- Prix
-
- Prix total : 287 000 €
- Prix du modèle de maison : 230 000 €
- Prix du terrain : 57 000 €
- Terrain
-
- Surface : 650 m²
- Maison
-
- Surface : 120 m²
- Pièces : 4
- Chambres : 3
- Garage : 1
- Être rappelé par un conseiller
- Demander plus d’infos
- Demande d'information
Maisons à proximité
Montreuil-en-Caux (76850)
Maison de 4 pièces
Montreuil-en-Caux (76850)
Maison de 6 pièces
Montreuil-en-Caux (76850)
Maison de 4 pièces
Montreuil-en-Caux (76850)
Maison de 4 pièces
Bracquetuit (76850)
Maison de 4 pièces
Bracquetuit (76850)
Maison de 4 pièces
Programmes à proximité
Préaux (76160)
Appartements de 1 à 4 pièces
Livraison 3ème trimestre 2027
Bois-Guillaume (76230)
Appartements de 2 à 5 pièces
Livraison 3ème trimestre 2027
Bois-Guillaume (76230)
Appartements de 1 à 4 pièces
Livraison 1er trimestre 2027
Mont-Saint-Aignan (76130)
Appartements de 2 à 3 pièces
Livraison 4ème trimestre 2027
Bihorel (76420)
Appartements de 1 à 4 pièces
Livraison 4ème trimestre 2027
Remplissez le formulaire ci-dessous, vos informations sont transmises directement au constructeur qui vous contactera par email ou par téléphone afin de traiter votre demande. En savoir plus.
Voir tous nos programmes immobiliers neufs à Montreuil-en-Caux