Maison neuve, 96 m² - Montesson (78360)

550 000 €
Montesson (78360)

Proposée par BERVAL – 5 pièces - 4 chambres - terrain 300 m²

BERVAL
BERVAL
  • Demande d'information
MAISON À CONSTRUIRE : ceci est une annonce d'une maison neuve à construire.
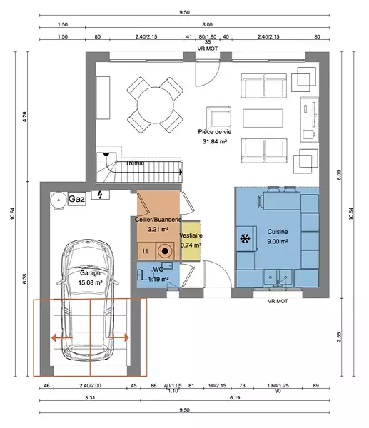
VENTE : maison de 5 pièces (96 m²) à Montesson
Paris à 15 min (RER A, Sartrouville) - Idéalement située dans Montesson (78360), maison neuve 5 pièces à vendre avec une surface de 96 m² et de 300 m² de terrain. Conçue de plain-pied, elle compte quatre chambres, une cuisine et une salle de bains. Vue sur rue.
Proche RER (lignes A et C), gares, École Primaire Ferdinand Buisson, commerces, boulangeries, boucherie-charcuterie et épicerie. Paris à 17 km.
Le prix de vente de cette maison de 5 pièces est de 550 000 €.
. Donnez vie à vos projets immobiliers avec Maisons Berval Rueil-Malmaison.
Maisons BERVAL bénéficie d'une triple certification NF-HQE- PROPERMEA
Annonce proposée par un Agent Commercial Partenaire.
Référence : MLM2289133
Les annonces de terrains constructibles sont sélectionnées auprès de nos partenaires fonciers. Ces derniers sont soit des professionnels dûment habilités à la transaction immobilière, soit des particuliers. Terrains, selon disponibilité, pour la construction de maisons neuves, avec un contrat de construction de maison individuelle, dans le cadre de la loi du 19/12/1990. Les terrains sélectionnés sont disponibles à la date de la première parution de l’annonce. En aucun cas Maisons Berval ou ses collaborateurs ne sont propriétaires des terrains , ne jouent un rôle d’intermédiation ou de négociation sur la transaction et ne participent à la vente. Prix indiqués par nos partenaires fonciers.

Les informations sur les risques auxquels ce bien est exposé sont disponibles sur le site Géorisques : www.georisques.gouv.fr


Prix
  • Prix total : 550 000 €
  • Prix du modèle de maison : N.C.
  • Prix du terrain : N.C.

Terrain
  • Surface : 300 m²

Maison
  • Surface : 96 m²
  • Pièces : 5
  • Chambres : 4
  • Garage : 1

  • Être rappelé par un conseiller
  • Demander plus d’infos
  • Demande d'information
Montesson (78360)

Maisons à proximité

Programmes à proximité

Prochainement à Chatou
Prochainement à Chatou
Chatou (78400)

Appartement
Livraison 3ème trimestre 2027

Le Patio des Artistes
Le Patio des Artistes
Chatou (78400)

Appartements de 2 à 5 pièces
Livraison 2ème trimestre 2026

9ÈME ART
9ÈME ART
Carrières-sur-Seine (78420)

Appartements de 2 à 5 pièces
Livraison 1er trimestre 2027

LES JARDINS SCHOELCHER
LES JARDINS SCHOELCHER
Houilles (78800)

Appartement de 3 pièces
Livraison 1er trimestre 2024

Les Terrasses du Chateau
Les Terrasses du Chateau
Le Mesnil-le-Roi (78600)

Appartements de 3 à 5 pièces
Livraison 4ème trimestre 2027

Jardin Hanaé - Petit Nanterre
Jardin Hanaé - Petit Nanterre
Nanterre (92000)

Appartements de 2 à 5 pièces
Livraison 4ème trimestre 2027

Contacter BERVAL pour recevoir plus d'informations

Remplissez le formulaire ci-dessous, vos informations sont transmises directement au constructeur qui vous contactera par email ou par téléphone afin de traiter votre demande. En savoir plus.

Voir tous nos programmes immobiliers neufs à Montesson