Maison neuve, 153 m² - Montéléger (26760)
809 805 €
Montéléger (26760)
Proposée par MAISONS FRANCE CONFORT – 7 pièces - 5 chambres - terrain 3 606 m²
|
|
| MAISONS FRANCE CONFORT |
| (119 avis) |
- Demande d'information
- Prendre rendez-vous
MAISON À CONSTRUIRE : ceci est une annonce d'une maison neuve à construire.
Montéléger : maison de 7 pièces (153 m²) à vendre
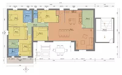
Emplacement privilégié - À Montéléger (26760), maison neuve en vente de 7 pièces, 153 m² de surface sur 3 606 m² de terrain. Son intérieur offre cinq chambres, une cuisine et deux salles de bains.
Proche gare (Valence), établissements scolaires, bassin de natation, commerces, boulangeries et boucherie-charcuterie. Autoroute A7 et nationale N7 accessibles à 7 km. Valence à 7 km.
Cette maison de 7 pièces est à vendre pour la somme de 809 805 €.
. Maisons France Confort Montélimar est là pour vous accompagner dans tous vos projets immobiliers.
Référence : FD2303364_1
Terrain proposé par un partenaire foncier selon disponibilités et autorisation de publicité au prix de 490 000 €. Hors droit d'enregistrement et frais de notaire. Terrain + Maison proposés au prix de 319 805 € (Hors branchements et raccordements, papiers peints, peintures, revêtement de sol dans les chambres. Tarif modifiable sans préavis). Etiquette énergie : A. Différents modèles disponibles pour ce terrain. . HEXAOM Services est enregistré auprès de l'ORIAS en tant que Courtier en financement, Niveau 1, sous le numéro 14001345.
Les informations sur les risques auxquels ce bien est exposé sont disponibles sur le site Géorisques : www.georisques.gouv.fr
Emplacement privilégié - À Montéléger (26760), maison neuve en vente de 7 pièces, 153 m² de surface sur 3 606 m² de terrain. Son intérieur offre cinq chambres, une cuisine et deux salles de bains.
Proche gare (Valence), établissements scolaires, bassin de natation, commerces, boulangeries et boucherie-charcuterie. Autoroute A7 et nationale N7 accessibles à 7 km. Valence à 7 km.
Cette maison de 7 pièces est à vendre pour la somme de 809 805 €.
. Maisons France Confort Montélimar est là pour vous accompagner dans tous vos projets immobiliers.
Référence : FD2303364_1
Terrain proposé par un partenaire foncier selon disponibilités et autorisation de publicité au prix de 490 000 €. Hors droit d'enregistrement et frais de notaire. Terrain + Maison proposés au prix de 319 805 € (Hors branchements et raccordements, papiers peints, peintures, revêtement de sol dans les chambres. Tarif modifiable sans préavis). Etiquette énergie : A. Différents modèles disponibles pour ce terrain. . HEXAOM Services est enregistré auprès de l'ORIAS en tant que Courtier en financement, Niveau 1, sous le numéro 14001345.
Les informations sur les risques auxquels ce bien est exposé sont disponibles sur le site Géorisques : www.georisques.gouv.fr
- Prix
-
- Prix total : 809 805 €
- Prix du modèle de maison : 319 805 €
- Prix du terrain : 490 000 €
- Terrain
-
- Surface : 3 606 m²
- Maison
-
- Surface : 153 m²
- Pièces : 7
- Chambres : 5
- Garage : 1
- Être rappelé par un conseiller
- Demander plus d’infos
- Demande d'information
Montéléger (26760)
Maisons à proximité
Maison neuve, 179 m²
Montéléger (26760)
Montéléger (26760)
Maison de 7 pièces
Maison neuve, 93 m²
Montéléger (26760)
Montéléger (26760)
Maison de 5 pièces
Maison neuve, 126 m²
Montéléger (26760)
Montéléger (26760)
Maison de 5 pièces
Maison neuve, 100 m²
Montéléger (26760)
Montéléger (26760)
Maison de 6 pièces
Maison neuve, 128 m²
Beaumont-lès-Valence (26760)
Beaumont-lès-Valence (26760)
Maison de 5 pièces
Maison neuve, 97 m²
Beaumont-lès-Valence (26760)
Beaumont-lès-Valence (26760)
Maison de 6 pièces
Programmes à proximité
Les Jardins du Cèdre
Valence (26000)
Valence (26000)
Appartements de 2 à 5 pièces
Livraison 3ème trimestre 2027
Contacter MAISONS FRANCE CONFORT pour recevoir plus d'informations
Remplissez le formulaire ci-dessous, vos informations sont transmises directement au constructeur qui vous contactera par email ou par téléphone afin de traiter votre demande. En savoir plus.