Maison neuve, 88 m² - Monistrol-sur-Loire (43120)
285 500 €
Monistrol-sur-Loire (43120)
Proposée par MAISONS PUNCH SAINT-ÉTIENNE – 4 pièces - 3 chambres - terrain 800 m²
|
|
| Maisons Punch Saint-Étienne |
| (71 avis) |
- Demande d'information
- Prendre rendez-vous
MAISON À CONSTRUIRE : ceci est une annonce d'une maison neuve à construire.
PROJET DE CONSTRUCTION – MAISON 90 m² – SOUS-SOL COMPLET – MONISTROL-SUR-LOIRE
Sur la commune très recherchée de Monistrol-sur-Loire, Maisons Punch vous propose ce projet de construction clé en main, idéal pour une famille ou des primo-accédants souhaitant devenir propriétaires dans un environnement privilégié.
Implantée sur un terrain de 800 m² légèrement pentu, cette maison individuelle offre un cadre de vie calme, résidentiel et proche des commodités, des écoles et des axes rapides vers Saint-Étienne.
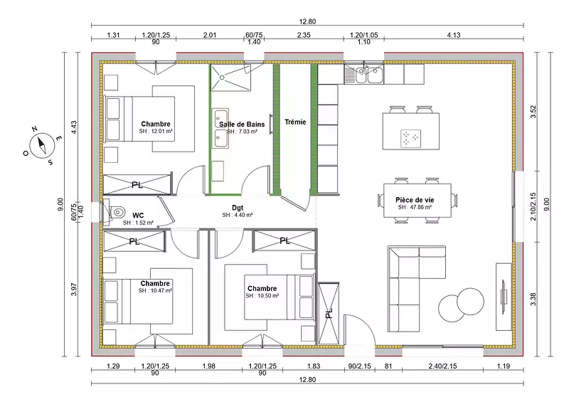
Maison fonctionnelle et moderne de 90 m² habitables comprenant :
Belle pièce de vie lumineuse avec cuisine ouverte
3 chambres confortables avec espaces placards
Salle de bains familiale
WC indépendant
Grandes ouvertures pour un maximum de luminosité naturelle
Sous-sol complet de 100 m² :
Grand garage double
Espace stockage / atelier
Possibilité d’aménagement selon vos besoins (salle de sport, buanderie, espace bricolage…)
Les + du projet :
Secteur recherché et dynamique
Terrain offrant une belle vue et un environnement nature
Maison personnalisable selon vos envies
Construction conforme RE2020 (performance énergétique et confort thermique)
Accompagnement complet dans votre projet de vie
Idéal primo-accédants ou projet familial
Projet étudié selon votre budget et vos besoins.
Pour plus d’informations et étude personnalisée, contactez Maisons Punch Nadia Galland 06.27.91.33.45
Référence : 3205 GALLAND Nadia
Terrain proposé et vendu par notre partenaire foncier selon disponibilités, le constructeur n’étant pas mandaté pour réaliser la vente du terrain. Prix terrain inclus : 105 000 € Frais de notaire non inclus : € Prix maison inclus : 180 500 € VRD non inclus : € Hors aménagements extérieurs (extensions, terrasse, piscine etc), papiers peints, peintures, moquettes dans les chambres (tarif en vigueur au 20 mai 2025, modifiable sans préavis, prix variables suivant les prestations souhaitées). Hors frais d’hypothèque. Différents modèles disponibles pour chaque terrain. Assurance RC professionnelle/décennale/dommage ouvrage groupe Aviva. Garantie de remboursement de l'acompte/livraison à prix et délai convenu CGI. Partenaire financier : à préciser Le numéro de TVA intracommunautaire : FR 14 498 627 272 00012 Contact :
Les informations sur les risques auxquels ce bien est exposé sont disponibles sur le site Géorisques : www.georisques.gouv.fr
Sur la commune très recherchée de Monistrol-sur-Loire, Maisons Punch vous propose ce projet de construction clé en main, idéal pour une famille ou des primo-accédants souhaitant devenir propriétaires dans un environnement privilégié.
Implantée sur un terrain de 800 m² légèrement pentu, cette maison individuelle offre un cadre de vie calme, résidentiel et proche des commodités, des écoles et des axes rapides vers Saint-Étienne.
Maison fonctionnelle et moderne de 90 m² habitables comprenant :
Belle pièce de vie lumineuse avec cuisine ouverte
3 chambres confortables avec espaces placards
Salle de bains familiale
WC indépendant
Grandes ouvertures pour un maximum de luminosité naturelle
Sous-sol complet de 100 m² :
Grand garage double
Espace stockage / atelier
Possibilité d’aménagement selon vos besoins (salle de sport, buanderie, espace bricolage…)
Les + du projet :
Secteur recherché et dynamique
Terrain offrant une belle vue et un environnement nature
Maison personnalisable selon vos envies
Construction conforme RE2020 (performance énergétique et confort thermique)
Accompagnement complet dans votre projet de vie
Idéal primo-accédants ou projet familial
Projet étudié selon votre budget et vos besoins.
Pour plus d’informations et étude personnalisée, contactez Maisons Punch Nadia Galland 06.27.91.33.45
Référence : 3205 GALLAND Nadia
Terrain proposé et vendu par notre partenaire foncier selon disponibilités, le constructeur n’étant pas mandaté pour réaliser la vente du terrain. Prix terrain inclus : 105 000 € Frais de notaire non inclus : € Prix maison inclus : 180 500 € VRD non inclus : € Hors aménagements extérieurs (extensions, terrasse, piscine etc), papiers peints, peintures, moquettes dans les chambres (tarif en vigueur au 20 mai 2025, modifiable sans préavis, prix variables suivant les prestations souhaitées). Hors frais d’hypothèque. Différents modèles disponibles pour chaque terrain. Assurance RC professionnelle/décennale/dommage ouvrage groupe Aviva. Garantie de remboursement de l'acompte/livraison à prix et délai convenu CGI. Partenaire financier : à préciser Le numéro de TVA intracommunautaire : FR 14 498 627 272 00012 Contact :
Les informations sur les risques auxquels ce bien est exposé sont disponibles sur le site Géorisques : www.georisques.gouv.fr
- Prix
-
- Prix total : 285 500 €
- Prix du modèle de maison : 180 500 €
- Prix du terrain : 105 000 €
- Terrain
-
- Surface : 800 m²
- Maison
-
- Surface : 88 m²
- Pièces : 4
- Chambres : 3
- Salle de bains : 1
- Garage : 1
- Surface garage : 100 m²
- Être rappelé par un conseiller
- Demander plus d’infos
- Demande d'information
Monistrol-sur-Loire (43120)
Maisons à proximité
Maison neuve, 95 m²
Monistrol-sur-Loire (43120)
Monistrol-sur-Loire (43120)
Maison de 4 pièces
Maison neuve, 95 m²
Monistrol-sur-Loire (43120)
Monistrol-sur-Loire (43120)
Maison de 4 pièces
Maison neuve, 85 m²
Monistrol-sur-Loire (43120)
Monistrol-sur-Loire (43120)
Maison de 4 pièces
Maison neuve, 100 m²
Monistrol-sur-Loire (43120)
Monistrol-sur-Loire (43120)
Maison de 5 pièces
Maison neuve, 100 m²
Monistrol-sur-Loire (43120)
Monistrol-sur-Loire (43120)
Maison de 5 pièces
Maison neuve, 100 m²
Monistrol-sur-Loire (43120)
Monistrol-sur-Loire (43120)
Maison de 5 pièces
Programmes à proximité
DOCKS 42
Saint-Étienne (42000)
Saint-Étienne (42000)
Appartements de 2 à 4 pièces
Livraison 4ème trimestre 2027
COEUR VERT
Saint-Étienne (42000)
Saint-Étienne (42000)
Appartements de 2 à 5 pièces
Livraison 1er trimestre 2026
L'OREE DU PARC
Villars (42390)
Villars (42390)
Appartements de 2 à 4 pièces
Livraison 4ème trimestre 2026
Contacter MAISONS PUNCH SAINT-ÉTIENNE pour recevoir plus d'informations
Remplissez le formulaire ci-dessous, vos informations sont transmises directement au constructeur qui vous contactera par email ou par téléphone afin de traiter votre demande. En savoir plus.
Voir tous nos programmes immobiliers neufs à Monistrol-sur-Loire