Maison neuve, 106 m² - Mondeville (14120)

393 000 €
Mondeville (14120)

Proposée par MAISONS FRANCE CONFORT – 5 pièces - 4 chambres - terrain 870 m²

MAISONS FRANCE CONFORT
MAISONS FRANCE CONFORT
  • Demande d'information
MAISON À CONSTRUIRE : ceci est une annonce d'une maison neuve à construire.
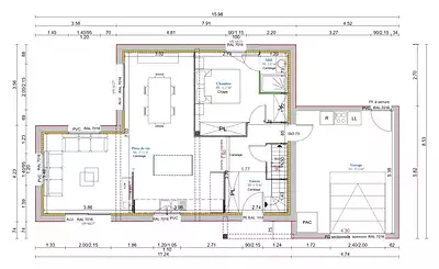
Maisons France Confort Lisieux vous de construire cette maison sur mesure de 106m² habitable avec son grand garage.
Le rez de chaussée se compose une entrée avec emplacement futur placard, une suite parentale pour une vie de plain pied, un séjour/salon lumineux avec cuisine ouverte.
A l'étage vous disposerez de 3 belles chambres et d'une salle de bain.
Belle prestation :
- carrelage 45*45
- menuiserie encastrer à la maçonnerie
- volet roulant électrique somfy
- système de chauffage très économique Référence : AV2303859_2
Terrain proposé par un partenaire foncier selon disponibilités et autorisation de publicité au prix de 172 400 €. Hors droit d'enregistrement et frais de notaire. Maison proposée, avec un contrat de construction de maison individuelle, dans le cadre de la loi du 19/12/1990, au prix de 220 600 € (Hors branchements et raccordements, papiers peints, peintures, revêtement de sol dans les chambres, qui sont chiffrés dans les travaux qui restent à charge du client. Tarif modifiable sans préavis). Étiquette énergie : A. Différents modèles disponibles pour ce terrain. Assurances et garanties du constructeur comprises (RC professionnelle, décennale, dommage ouvrage).

Les informations sur les risques auxquels ce bien est exposé sont disponibles sur le site Géorisques : www.georisques.gouv.fr


Prix
  • Prix total : 393 000 €
  • Prix du modèle de maison : 220 600 €
  • Prix du terrain : 172 400 €

Terrain
  • Surface : 870 m²

Maison
  • Surface : 106 m²
  • Pièces : 5
  • Chambres : 4
  • Garage : 1

  • Être rappelé par un conseiller
  • Demander plus d’infos
  • Demande d'information
Mondeville (14120)

Maisons à proximité

ARMONIA
ARMONIA
Mondeville (14120)

Appartements de 3 à 5 pièces et maisons de 4 à 5 pièces
Livraison 1er trimestre 2026

Programmes à proximité

ARMONIA
ARMONIA
Mondeville (14120)

Appartements de 3 à 5 pièces et maisons de 4 à 5 pièces
Livraison 1er trimestre 2026

Le Domaine du Clos Boisé
Le Domaine du Clos Boisé
Cormelles-le-Royal (14123)

Appartements de 3 pièces
Livraison 4ème trimestre 2025

COUR GABRIEL
COUR GABRIEL
Caen (14000)

Appartements de 2 à 4 pièces
Livraison 3ème trimestre 2028

L'EDEN
L'EDEN
Caen (14000)

Appartements de 2 à 4 pièces
Livraison 2ème trimestre 2027

ATHENA
ATHENA
Caen (14000)

Appartements de 2 à 5 pièces
Livraison 4ème trimestre 2026

L'ÉCRIN
L'ÉCRIN
Caen (14000)

Appartement de 3 pièces
Livraison 4ème trimestre 2027

Contacter MAISONS FRANCE CONFORT pour recevoir plus d'informations

Remplissez le formulaire ci-dessous, vos informations sont transmises directement au constructeur qui vous contactera par email ou par téléphone afin de traiter votre demande. En savoir plus.

Voir tous nos programmes immobiliers neufs à Mondeville