Maison neuve, 112 m² - Mios (33380)

353 000 €
Mios (33380)

Proposée par BATISOFT – 4 pièces - 3 chambres - terrain 605 m²

BATISOFT
BATISOFT
(44 avis)
  • Demande d'information
MAISON À CONSTRUIRE : ceci est une annonce d'une maison neuve à construire.
Mios : maison de 4 pièces (112 m²) à vendre
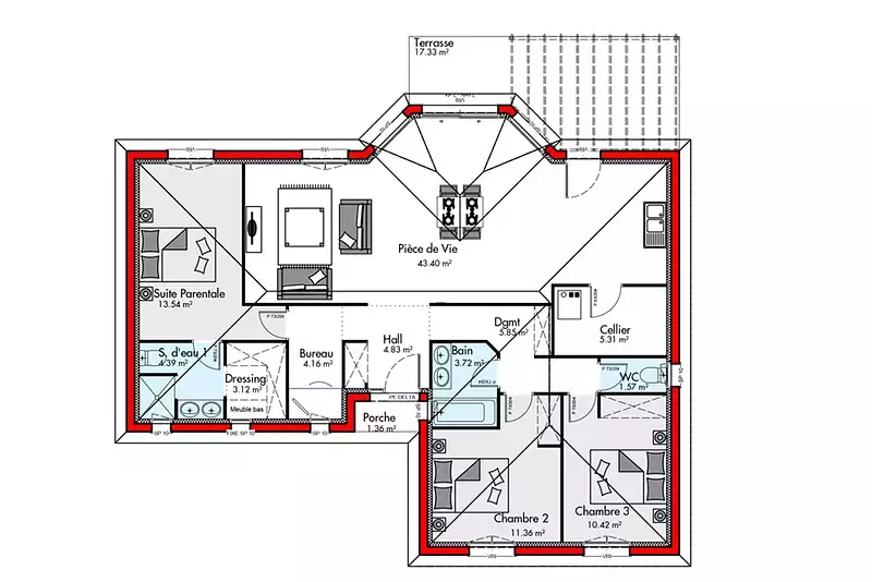
PROCHE BASSIN D'ARCACHONc - À Mios (33380), maison neuve à vendre de 4 pièces, 112 m² de surface et 605 m² de terrain. Conçue de plain-pied, elle est composée de trois chambres, d'une cuisine et d'une salle de bains.
À proximité : gares (Biganos Facture et Le Teich), établissements scolaires, tennis, boulangeries, commerces, bureau de poste et boucherie-charcuterie. Autoroutes A660 et A63 à 8 km. Océan Atlantique à 14 km.
Le prix de vente de cette maison de 4 pièces est de 353 000 €.
. Batisoft La Teste-de-Buch vous accompagne dans tous vos projets immobiliers et à toutes les étapes de votre projet.
Référence : LC605PUJEAU2_5
Idée de réalisation en modèle prêt à décorer sur l’un de nos terrains partenaires, sous réserve de disponibilités. Voir détails en agence.

Les informations sur les risques auxquels ce bien est exposé sont disponibles sur le site Géorisques : www.georisques.gouv.fr


Prix
  • Prix total : 353 000 €
  • Prix du modèle de maison : 191 000 €
  • Prix du terrain : 162 000 €

Terrain
  • Surface : 605 m²

Maison
  • Surface : 112 m²
  • Pièces : 4
  • Chambres : 3

  • Être rappelé par un conseiller
  • Demander plus d’infos
  • Demande d'information
Mios (33380)

Programmes à proximité

Le Clos des Grands Pins
Le Clos des Grands Pins
Le Teich (33470)

Appartements de 1 à 4 pièces
Livraison 4ème trimestre 2027

Hameau du Minoy
Hameau du Minoy
Salles (33770)

Appartements de 2 à 4 pièces
Livraison 4ème trimestre 2027

Domaine du Ruisseau
Domaine du Ruisseau
Audenge (33980)

Appartements de 2 à 4 pièces et maisons de 3 à 4 pièces
Livraison 1er trimestre 2027

Primerose
Primerose
Gujan-Mestras (33470)

Appartements de 3 à 4 pièces
Livraison 2ème trimestre 2027

Côté Saline
Côté Saline
Gujan-Mestras (33470)

Appartements de 2 à 4 pièces
Livraison 2ème trimestre 2025

VIVEZ AU CŒUR DU BASSIN D'ARCACHON
VIVEZ AU CŒUR DU BASSIN D'ARCACHON
Marcheprime (33380)

Appartements de 1 à 3 pièces
Livraison 2ème trimestre 2027

Contacter BATISOFT pour recevoir plus d'informations

Remplissez le formulaire ci-dessous, vos informations sont transmises directement au constructeur qui vous contactera par email ou par téléphone afin de traiter votre demande. En savoir plus.

Voir tous nos programmes immobiliers neufs à Mios