Maison neuve, 105 m² - Meximieux (01800)

316 000 €
Meximieux (01800)

Proposée par MAISONS PUNCH SAINT PRIEST – 5 pièces - 4 chambres - terrain 401 m²

Maisons PUNCH Saint Priest
Maisons PUNCH Saint Priest
(57 avis)
  • Demande d'information
MAISON À CONSTRUIRE : ceci est une annonce d'une maison neuve à construire.
Produit rare à saisir au plus vite.
Situé sur la jolie commune de Rignieux le Frans dans un cadre calme et arboré.
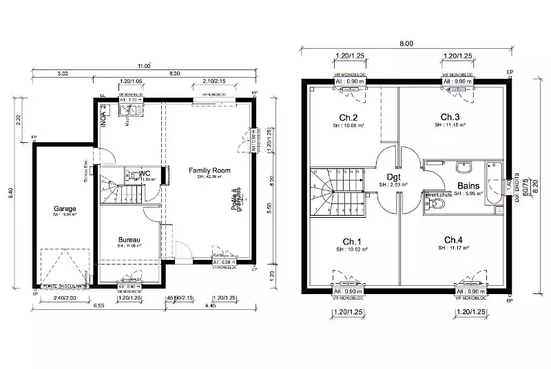
Sur une parcelle de 401 m² entièrement viabilisée, Maisons punch vous propose une construction neuve à étage de 105m²
Cette maison est composée d’une partie jour avec une très belle pièce de vie de 42m² avec cuisine ouverte sur le séjour ainsi qu’une chambre de 11m² sur la partie rez de chaussé.
La partie nuit est répartie en 4 chambres supplémentaire entre 10 et 11m² ainsi qu’une salle de bain avec baignoire ou douche au choix, un lavabo et un WC séparé.
Pour finir, la maison possède un garage de 15m².
Plan entièrement personnalisables au bon vouloir des futurs acquéreurs.
Nombreuses prestations possibles.
CONSTRUCTION, TERRAIN ET VRD INCLUS DANS LE PRIX.
Prestations de qualités : volets roulants intégrés électrique et connectés, Pompe à chaleur
Maison conforme à la RE 2020
Référence : 5422 DUFOR Arnaud
Terrain proposé et vendu par notre partenaire foncier selon disponibilités, le constructeur n’étant pas mandaté pour réaliser la vente du terrain. Prix terrain inclus : 134 900 € Frais de notaire non inclus : € Prix maison inclus : 181 100 € VRD non inclus : € Hors aménagements extérieurs (extensions, terrasse, piscine etc), papiers peints, peintures, moquettes dans les chambres (tarif en vigueur au 20 mai 2025, modifiable sans préavis, prix variables suivant les prestations souhaitées). Hors frais d’hypothèque. Différents modèles disponibles pour chaque terrain. Assurance RC professionnelle/décennale/dommage ouvrage groupe Aviva. Garantie de remboursement de l'acompte/livraison à prix et délai convenu CGI. Partenaire financier : à préciser Le numéro de TVA intracommunautaire : FR 14 498 627 272 00012 Contact : contact@maisons-punch.fr

Les informations sur les risques auxquels ce bien est exposé sont disponibles sur le site Géorisques : www.georisques.gouv.fr


Prix
  • Prix total : 316 000 €
  • Prix du modèle de maison : 181 100 €
  • Prix du terrain : 134 900 €

Terrain
  • Surface : 401 m²

Maison
  • Surface : 105 m²
  • Pièces : 5
  • Chambres : 4
  • Salle de bains : 1
  • Garage : 1
  • Surface garage : 19 m²

  • Être rappelé par un conseiller
  • Demander plus d’infos
  • Demande d'information
Meximieux (01800)

Programmes à proximité

Résidence Tandem
Résidence Tandem
Meximieux (01800)

Appartements de 2 à 5 pièces
Livraison 4ème trimestre 2028

Résidence Evolis
Résidence Evolis
Béligneux (01360)

Appartements de 2 à 3 pièces
Livraison 2ème trimestre 2028

LES JADES
LES JADES
Ambérieu-en-Bugey (01500)

Appartements de 2 à 4 pièces
Livraison 2ème trimestre 2028

L'ARCHIPEL
L'ARCHIPEL
Ambérieu-en-Bugey (01500)

Appartement de 4 pièces
Livraison 2ème trimestre 2025

Résidence ATELIER JULES
Résidence ATELIER JULES
Ambérieu-en-Bugey (01500)

Appartements de 2 à 5 pièces
Livraison 3ème trimestre 2027

L'AMBRE
L'AMBRE
Ambérieu-en-Bugey (01500)

Appartements de 1 à 4 pièces
Livraison 2ème trimestre 2026

Contacter MAISONS PUNCH SAINT PRIEST pour recevoir plus d'informations

Remplissez le formulaire ci-dessous, vos informations sont transmises directement au constructeur qui vous contactera par email ou par téléphone afin de traiter votre demande. En savoir plus.

Voir tous nos programmes immobiliers neufs à Meximieux