Maison neuve, 134 m² - Mérignac (33700)

849 000 €
Mérignac (33700)

Proposée par SO'9 HABITAT – 5 pièces - 4 chambres - terrain 626 m²

So'9 Habitat
So'9 Habitat
  • Demande d'information
MAISON À CONSTRUIRE : ceci est une annonce d'une maison neuve à construire.
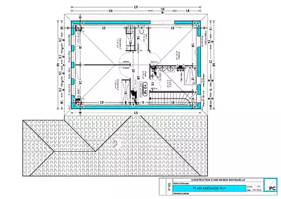
Sur un terrain de 616 m² idéalement situé à proximité du tram, des boulevards et du CHU Pellegrin, découvrez ce projet de maison moderne et fonctionnelle, alliant confort, luminosité et qualité de vie. D'une surface habitable d'environ 134 m², cette maison se compose de quatre chambres, dont une suite parentale en rez-de-chaussée avec dressing et salle d'eau privative, de deux salles de bain, et d'une vaste pièce de vie avec cuisine ouverte, baignée de lumière grâce à de larges ouvertures sur le jardin. Un garage attenant complète cet ensemble harmonieux et bien pensé.
Le plan est entièrement personnalisable, vous permettant d'adapter les espaces, les finitions et les prestations à vos besoins et à votre budget. Une belle opportunité de construire une maison sur mesure dans un environnement calme et recherché de Mérignac. Référence : TC2307346_1
Terrain proposé par un partenaire foncier selon disponibilité dans le cadre d’un projet de construction avec So'9 Habitat. Les descriptions, photographies, surfaces et prix illustrant l’annonce sont fournies à titre indicatif et ne sont pas contractuels. Non soumis au DPE. Différents modèles disponibles.

Les informations sur les risques auxquels ce bien est exposé sont disponibles sur le site Géorisques : www.georisques.gouv.fr


Prix
  • Prix total : 849 000 €
  • Prix du modèle de maison : 399 000 €
  • Prix du terrain : 450 000 €

Terrain
  • Surface : 626 m²

Maison
  • Surface : 134 m²
  • Pièces : 5
  • Chambres : 4
  • Garage : 1

  • Être rappelé par un conseiller
  • Demander plus d’infos
  • Demande d'information
Mérignac (33700)

Programmes à proximité

Les Allées de Capeyron
Les Allées de Capeyron
Mérignac (33700)

Appartements de 1 à 4 pièces
Livraison 3ème trimestre 2028

HEDERA
HEDERA
Mérignac (33700)

Appartements de 2 à 4 pièces
Livraison 3ème trimestre 2027

EUPHORBIA
EUPHORBIA
Mérignac (33700)

Appartements de 2 à 5 pièces
Livraison 3ème trimestre 2025

Clos Madran
Clos Madran
Pessac (33600)

Appartements de 2 à 5 pièces
Livraison 1er trimestre 2027

Millésime XV
Millésime XV
Pessac (33600)

Appartements de 3 à 4 pièces
Livraison 1er trimestre 2026

La Réserve - PESSAC (33)
La Réserve - PESSAC (33)
Pessac (33600)

Appartement de 4 pièces
Livraison 1er trimestre 2025

Contacter SO'9 HABITAT pour recevoir plus d'informations

Remplissez le formulaire ci-dessous, vos informations sont transmises directement au constructeur qui vous contactera par email ou par téléphone afin de traiter votre demande. En savoir plus.

Voir tous nos programmes immobiliers neufs à Mérignac