Maison neuve, 86 m² - Maisdon-sur-Sèvre (44690)

235 000 €
Maisdon-sur-Sèvre (44690)

Proposée par MAISONS TRADILIGNES – 4 pièces - 3 chambres - terrain 370 m²

MAISONS TRADILIGNES
MAISONS TRADILIGNES
  • Demande d'information
MAISON À CONSTRUIRE : ceci est une annonce d'une maison neuve à construire.
Maison T4 (86 m²) à vendre à Maisdon-sur-Sèvre
IDÉALEMENT SITUÉE - MAISON 4 PIÈCES NEUVE
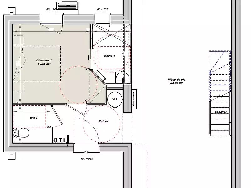
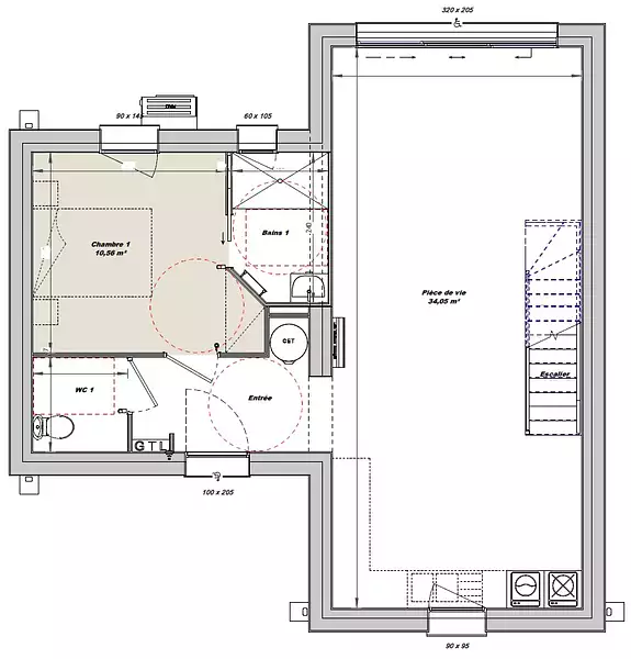
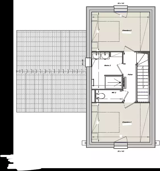
En vente : située à 41 km de la côte atlantique et à 19 km de Nantes, votre agence Maisons Tradilignes Saint-Sébastien-sur-Loire est ravie de vous proposer, idéalement située dans Maisdon-sur-Sèvre (44690), cette maison de 4 pièces de 86 m². Son intérieur dispose de trois chambres, d'une cuisine et de deux salles de bains.
Le terrain de la propriété s'étend sur 370 m².
Cette maison comporte 2 niveaux. Elle est neuve.
Cette maison est située dans un quartier prisé. L'École Primaire Publique Jules Verne et l'École Primaire Privée Sainte Anne se trouvent à moins de 10 minutes à pied. Côté transports en commun, il y a quatre gares à moins de 10 minutes en voiture. L'autoroute A83 et la nationale N249 sont accessibles à moins de 9 km. On trouve un tennis, un commerce, une boulangerie et une épicerie à quelques minutes à peine.
Elle est proposée à l'achat pour 235 000 €.
. Maisons Tradilignes Saint-Sébastien-sur-Loire est là pour vous accompagner à toutes les étapes de votre projet.
Référence : FD2327995_3
Terrain proposé par un partenaire foncier selon disponibilités et autorisation de publicité au prix de 95 000 €. Hors droit d'enregistrement et frais de notaire. Maison proposée, avec un contrat de construction de maison individuelle, dans le cadre de la loi du 19/12/1990, au prix de 140 000 € (Hors branchements et raccordements, papiers peints, peintures, revêtement de sol dans les chambres, qui sont chiffrés dans les travaux qui restent à charge du client. Tarif modifiable sans préavis). Étiquette énergie : A. Différents modèles disponibles pour ce terrain. Assurances et garanties du constructeur comprises (RC professionnelle, décennale, dommage ouvrage).

Les informations sur les risques auxquels ce bien est exposé sont disponibles sur le site Géorisques : www.georisques.gouv.fr


Prix
  • Prix total : 235 000 €
  • Prix du modèle de maison : 140 000 €
  • Prix du terrain : 95 000 €

Terrain
  • Surface : 370 m²

Maison
  • Surface : 86 m²
  • Pièces : 4
  • Chambres : 3

  • Être rappelé par un conseiller
  • Demander plus d’infos
  • Demande d'information
Maisdon-sur-Sèvre (44690)

Programmes à proximité

LE CLOS DU VIGNOBLE
LE CLOS DU VIGNOBLE
Aigrefeuille-sur-Maine (44140)

Appartement de 2 pièces
Livraison 2ème trimestre 2027

DOLCE VITA
DOLCE VITA
Clisson (44190)

Appartements de 3 à 4 pièces et maisons de 4 pièces
Livraison 2ème trimestre 2026

COUR MEDICIS - VERTOU
COUR MEDICIS - VERTOU
Vertou (44120)

Appartements de 2 à 4 pièces
Livraison 4ème trimestre 2028

L'ESSOR - LES SORINIERES
L'ESSOR - LES SORINIERES
Les Sorinières (44840)

Appartements de 3 à 4 pièces
Livraison 4ème trimestre 2025

Terrasses des Landes
Terrasses des Landes
Basse-Goulaine (44115)

Appartements de 2 à 5 pièces
Livraison 1er trimestre 2028

Cour Enchantée
Cour Enchantée
Saint-Sébastien-sur-Loire (44230)

Appartements de 3 à 4 pièces
Livraison 4ème trimestre 2027

Contacter MAISONS TRADILIGNES pour recevoir plus d'informations

Remplissez le formulaire ci-dessous, vos informations sont transmises directement au constructeur qui vous contactera par email ou par téléphone afin de traiter votre demande. En savoir plus.

Voir tous nos programmes immobiliers neufs à Maisdon-sur-Sèvre