Maison neuve, 115 m² - Luisant (28600)

550 000 €
Luisant (28600)

Proposée par MAISONS FRANCE CONFORT – 7 pièces - 4 chambres - terrain 537 m²

MAISONS FRANCE CONFORT
MAISONS FRANCE CONFORT
  • Demande d'information
MAISON À CONSTRUIRE : ceci est une annonce d'une maison neuve à construire.
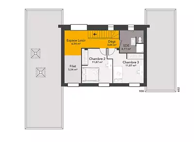
VENTE d'une maison T7 (115 m²) à Luisant
Emplacement privilégié - En vente à Luisant (28600) : maison neuve 7 pièces de 115 m² sur un terrain de 537 m². Son intérieur inclut quatre chambres, une cuisine et trois salles de bains.
Proche gares, établissements scolaires, bibliothèque, bassin de natation, tennis, boulangeries, commerces, supermarchés, bureau de poste et boucherie-charcuterie. Accès autoroute A11 et nationales N123 et N154 à 6 km. Chartres à 4 km.
Cette maison de 7 pièces est à vendre pour la somme de 550 000 €.
. Maisons France Confort Nogent-le-Phaye vous accompagne dans tous vos projets immobiliers et dans toutes vos démarches.
Annonce proposée par un Agent Commercial Partenaire.
Référence : GS2261545_2
Terrain proposé par un partenaire foncier selon disponibilités et autorisation de publicité au prix de 161 000 €. Hors droit d'enregistrement et frais de notaire. Maison proposée, avec un contrat de construction de maison individuelle, dans le cadre de la loi du 19/12/1990, au prix de 389 000 € (Hors branchements et raccordements, papiers peints, peintures, revêtement de sol dans les chambres, qui sont chiffrés dans les travaux qui restent à charge du client. Tarif modifiable sans préavis). Étiquette énergie : A. Différents modèles disponibles pour ce terrain. Assurances et garanties du constructeur comprises (RC professionnelle, décennale, dommage ouvrage).

Les informations sur les risques auxquels ce bien est exposé sont disponibles sur le site Géorisques : www.georisques.gouv.fr


Prix
  • Prix total : 550 000 €
  • Prix du modèle de maison : 389 000 €
  • Prix du terrain : 161 000 €

Terrain
  • Surface : 537 m²

Maison
  • Surface : 115 m²
  • Pièces : 7
  • Chambres : 4
  • Garage : 1

  • Être rappelé par un conseiller
  • Demander plus d’infos
  • Demande d'information
Luisant (28600)

Maisons à proximité

Floreal
Floreal
Chartres (28000)

Appartements de 2 à 5 pièces et maisons de 4 pièces
Livraison 4ème trimestre 2027

Le Domaine Des Rives
Le Domaine Des Rives
Chartres (28000)

Maisons de 4 pièces
Livraison 2ème trimestre 2025

Programmes à proximité

Passage Pléiade
Passage Pléiade
Luisant (28600)

Appartement de 3 pièces
Livraison 2ème trimestre 2026

OXALIS
OXALIS
Chartres (28000)

Appartements de 2 à 4 pièces
Livraison 1er trimestre 2027

Floreal
Floreal
Chartres (28000)

Appartements de 2 à 5 pièces et maisons de 4 pièces
Livraison 4ème trimestre 2027

Perspectives
Perspectives
Chartres (28000)

Appartements de 3 pièces
Livraison 2ème trimestre 2026

SCCV Caserne - Les Reflets de L'Eure
SCCV Caserne - Les Reflets de L'Eure
Chartres (28000)

Appartements de 2 à 4 pièces
Livraison 2ème trimestre 2027

Les Jardins d'Henri IV
Les Jardins d'Henri IV
Chartres (28000)

Appartements de 1 à 4 pièces
Livraison 4ème trimestre 2026

Contacter MAISONS FRANCE CONFORT pour recevoir plus d'informations

Remplissez le formulaire ci-dessous, vos informations sont transmises directement au constructeur qui vous contactera par email ou par téléphone afin de traiter votre demande. En savoir plus.

Voir tous nos programmes immobiliers neufs à Luisant