Maison neuve, 145 m² - Louviers (27400)

449 000 €
Louviers (27400)

Proposée par MAISONS BALENCY – 8 pièces - 5 chambres - terrain 6 730 m²

MAISONS BALENCY
MAISONS BALENCY
  • Demande d'information
MAISON À CONSTRUIRE : ceci est une annonce d'une maison neuve à construire.
Terres De Bord : maison de 8 pièces (145 m²) à vendre
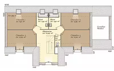
Proche de Rouen - À découvrir à Terres De Bord (27400) : maison neuve 8 pièces à vendre, 2 niveaux, 145 m² de surface sur 6 730 m² de terrain. Son intérieur dispose de cinq chambres, d'une cuisine et de trois salles de bains.
À dix minutes : gare (Elbeuf-Saint-Aubin), École Primaire Montaure, crèche, tennis et boulangerie. Accès autoroutes A13 et A154 et nationale N154 à 9 km.
Cette maison de 8 pièces est proposée à l'achat pour 449 000 €.
Contactez notre agence (XAVIER ALVES Kévin : 06-58-91-13-87) pour tout renseignement sur la maison, sur les modalités de vente ou sur les démarches à suivre.
Annonce proposée par un Agent Commercial Partenaire.
Référence : KXA2335695_1
Terrain proposé par un partenaire foncier selon disponibilités et autorisation de publicité au prix de 153 000 €. Hors droit d'enregistrement et frais de notaire. Terrain + Maison proposés au prix de 296 000 € (Hors branchements et raccordements, papiers peints, peintures, revêtement de sol dans les chambres. Tarif modifiable sans préavis). Etiquette énergie : A. Différents modèles disponibles pour ce terrain. Assurances et garanties du constructeur (RC professionnelle, décennale, dommage ouvrage, garantie de remboursement de l'acompte, livraison à prix et délai convenu) : https://www.maisons-balency.fr/informations-legales/. HEXAOM Services est enregistré auprès de l'ORIAS en tant que Courtier en financement, Niveau 1, sous le numéro 14001345.

Les informations sur les risques auxquels ce bien est exposé sont disponibles sur le site Géorisques : www.georisques.gouv.fr


Prix
  • Prix total : 449 000 €
  • Prix du modèle de maison : 296 000 €
  • Prix du terrain : 153 000 €

Terrain
  • Surface : 6 730 m²

Maison
  • Surface : 145 m²
  • Pièces : 8
  • Chambres : 5
  • Garage : 1

  • Être rappelé par un conseiller
  • Demander plus d’infos
  • Demande d'information
Louviers (27400)

Programmes à proximité

Reverso Louviers
Reverso Louviers
Louviers (27400)

Appartements de 1 à 3 pièces
Livraison 4ème trimestre 2025

À 15 min*à pied du centre ville
À 15 min*à pied du centre ville
Louviers (27400)

Appartements de 2 à 3 pièces et maisons de 3 pièces

RESIDENCE VALVERT - BAT 4
RESIDENCE VALVERT - BAT 4
Val-de-Reuil (27100)

Appartements de 2 à 4 pièces
Livraison 4ème trimestre 2027

RESIDENCE VALVERT - BAT 3
RESIDENCE VALVERT - BAT 3
Val-de-Reuil (27100)

Appartements de 2 pièces
Livraison 4ème trimestre 2026

JARDINS NOTRE DAME
JARDINS NOTRE DAME
Elbeuf (76500)

Appartements de 1 à 4 pièces et maisons de 4 pièces
Livraison 3ème trimestre 2027

À 10 MIN* DE LA GARE
À 10 MIN* DE LA GARE
Oissel (76350)

Appartements de 2 pièces
Livraison 4ème trimestre 2026

Contacter MAISONS BALENCY pour recevoir plus d'informations

Remplissez le formulaire ci-dessous, vos informations sont transmises directement au constructeur qui vous contactera par email ou par téléphone afin de traiter votre demande. En savoir plus.

Voir tous nos programmes immobiliers neufs à Louviers