Maison neuve, 100 m² - Loffre (59182)
229 000 €
Loffre (59182)
Proposée par MAISONS FRANCE CONFORT – 5 pièces - 3 chambres - terrain 453 m²
|
|
| MAISONS FRANCE CONFORT |
- Demande d'information
- Prendre rendez-vous
MAISON À CONSTRUIRE : ceci est une annonce d'une maison neuve à construire.
Maison à construire à Loffre
EMPLACEMENT PRIVILÉGIÉ - MAISON NEUVE A CONSTRUIREVenez découvrir votre future maison neuve.
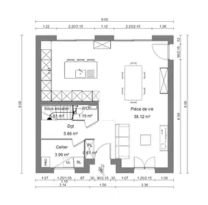
Il s'agit d'une maison à étage, d'une surface de 99 m².
Construction conforme aux dernières normes RE2020 (basse consommation)
Mode de chauffage dernière génération via pompe à chaleur
Plans sur mesures et modifiables à la demande.
Cette maison dispose de 3 chambres, d'une cuisine, d'une salle de bains, et un cellier.
Garanties et assurances obligatoires incluses (voir détails en agence).
Hors raccordements, hors branchements,
Terrain sélectionné et vu pour vous sous réserve de disponibilité et au prix indiqué par notre partenaire foncier.
La maison est située dans un quartier recherché proche de Guesnain, Montigny et Masny.
A proximité des écoles et commerces de proximités.
Son prix de vente est de 229 000 € frais de notaire inclus sur le terrain.
.
Pourquoi faire confiance à Maisons France confort ?
Maisons France Confort c'est le numéro 1 en France de la construction de maisons individuelles avec nos maisons personnalisables et qui s'adaptent à chaque budget.
C'est un accompagnement personnel dans toutes les démarches et étapes de votre projet immobilier (terrain, maison et financement entre autres).
Ensemble, construisons la maison qui vous ressemble !
Référence : PG2337006_2
Terrain proposé par un partenaire foncier selon disponibilités et autorisation de publicité au prix de 69 900 €. Hors droit d'enregistrement et frais de notaire. Maison proposée, avec un contrat de construction de maison individuelle, dans le cadre de la loi du 19/12/1990, au prix de 159 100 € (Hors branchements et raccordements, papiers peints, peintures, revêtement de sol dans les chambres, qui sont chiffrés dans les travaux qui restent à charge du client. Tarif modifiable sans préavis). Étiquette énergie : A. Différents modèles disponibles pour ce terrain. Assurances et garanties du constructeur comprises (RC professionnelle, décennale, dommage ouvrage).
Les informations sur les risques auxquels ce bien est exposé sont disponibles sur le site Géorisques : www.georisques.gouv.fr
EMPLACEMENT PRIVILÉGIÉ - MAISON NEUVE A CONSTRUIREVenez découvrir votre future maison neuve.
Il s'agit d'une maison à étage, d'une surface de 99 m².
Construction conforme aux dernières normes RE2020 (basse consommation)
Mode de chauffage dernière génération via pompe à chaleur
Plans sur mesures et modifiables à la demande.
Cette maison dispose de 3 chambres, d'une cuisine, d'une salle de bains, et un cellier.
Garanties et assurances obligatoires incluses (voir détails en agence).
Hors raccordements, hors branchements,
Terrain sélectionné et vu pour vous sous réserve de disponibilité et au prix indiqué par notre partenaire foncier.
La maison est située dans un quartier recherché proche de Guesnain, Montigny et Masny.
A proximité des écoles et commerces de proximités.
Son prix de vente est de 229 000 € frais de notaire inclus sur le terrain.
.
Pourquoi faire confiance à Maisons France confort ?
Maisons France Confort c'est le numéro 1 en France de la construction de maisons individuelles avec nos maisons personnalisables et qui s'adaptent à chaque budget.
C'est un accompagnement personnel dans toutes les démarches et étapes de votre projet immobilier (terrain, maison et financement entre autres).
Ensemble, construisons la maison qui vous ressemble !
Référence : PG2337006_2
Terrain proposé par un partenaire foncier selon disponibilités et autorisation de publicité au prix de 69 900 €. Hors droit d'enregistrement et frais de notaire. Maison proposée, avec un contrat de construction de maison individuelle, dans le cadre de la loi du 19/12/1990, au prix de 159 100 € (Hors branchements et raccordements, papiers peints, peintures, revêtement de sol dans les chambres, qui sont chiffrés dans les travaux qui restent à charge du client. Tarif modifiable sans préavis). Étiquette énergie : A. Différents modèles disponibles pour ce terrain. Assurances et garanties du constructeur comprises (RC professionnelle, décennale, dommage ouvrage).
Les informations sur les risques auxquels ce bien est exposé sont disponibles sur le site Géorisques : www.georisques.gouv.fr
- Prix
-
- Prix total : 229 000 €
- Prix du modèle de maison : 159 100 €
- Prix du terrain : 69 900 €
- Terrain
-
- Surface : 453 m²
- Maison
-
- Surface : 100 m²
- Pièces : 5
- Chambres : 3
- Être rappelé par un conseiller
- Demander plus d’infos
- Demande d'information
Loffre (59182)
Maisons à proximité
Maison neuve, 50 m²
Loffre (59182)
Loffre (59182)
Maison de 2 pièces
Maison neuve, 95,22 m²
Loffre (59182)
Loffre (59182)
Maison de 4 pièces
Maison neuve, 114 m²
Loffre (59182)
Loffre (59182)
Maison de 6 pièces
Maison neuve, 60 m²
Loffre (59182)
Loffre (59182)
Maison de 2 pièces
Maison neuve, 99 m²
Loffre (59182)
Loffre (59182)
Maison de 5 pièces
Maison neuve, 94 m²
Loffre (59182)
Loffre (59182)
Maison de 4 pièces
Programmes à proximité
Les Jardins de la Scarpe
Douai (59500)
Douai (59500)
Appartement de 2 pièces
Livraison 2ème trimestre 2025
Florescence
Orchies (59310)
Orchies (59310)
Appartements de 2 à 4 pièces
Livraison 2ème trimestre 2027
Résidence Symphonie
Templeuve-en-Pévèle (59242)
Templeuve-en-Pévèle (59242)
Appartements de 3 à 5 pièces
Livraison 1er trimestre 2026
ESPRIT COTTAGE
Phalempin (59133)
Phalempin (59133)
Appartements de 4 pièces
Livraison 4ème trimestre 2027
La Belle Allée
Cysoing (59830)
Cysoing (59830)
Appartements de 3 à 5 pièces
Livraison 2ème trimestre 2027
Contacter MAISONS FRANCE CONFORT pour recevoir plus d'informations
Remplissez le formulaire ci-dessous, vos informations sont transmises directement au constructeur qui vous contactera par email ou par téléphone afin de traiter votre demande. En savoir plus.