Maison neuve, 85 m² - Le Tilleul (76790)

242 500 €
Le Tilleul (76790)

Proposée par EXTRACO - CONSTRUCTION | RÉNOVATION – 4 pièces - 3 chambres - terrain 829 m²

EXTRACO - Construction | Rénovation
EXTRACO - Construction | Rénovation
  • Demande d'information
MAISON À CONSTRUIRE : ceci est une annonce d'une maison neuve à construire.
Maison de 4 pièces (85 m²) en vente au Tilleul
PROCHE DU HAVRE - MAISON 4 PIÈCES NEUVE
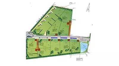
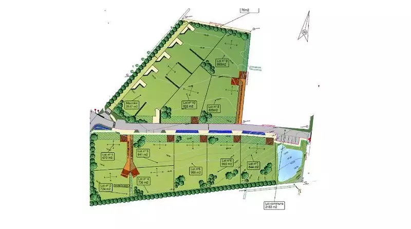
À vendre : située à 3 km de la Manche et à quelques kilomètres du Havre, Les Maisons Extraco Le Havre vous propose au Tilleul (76790), cette maison de 4 pièces de plain-pied de 85 m² et de 829 m² de terrain.
Son intérieur compte trois chambres, une cuisine et une salle de bains. Cette maison est neuve.
Il y a une école élémentaire dans le quartier. L'autoroute A29 est accessible à 18 km. On trouve un tennis, une boulangerie et une supérette à quelques minutes du bien.
Son prix de vente est de 242 500 €.
.
Référence : BP-HAVRE-sem45_2
Terrain proposé par un partenaire foncier selon disponibilités et autorisation de publicité au prix de 95 000 €. Hors droit d'enregistrement et frais de notaire. Maison proposée, avec un contrat de construction de maison individuelle, dans le cadre de la loi du 19/12/1990, au prix de 147 500 € (Hors branchements et raccordements, papiers peints, peintures, revêtement de sol dans les chambres, qui sont chiffrés dans les travaux qui restent à charge du client. Tarif modifiable sans préavis). Étiquette énergie : A. Différents modèles disponibles pour ce terrain. Assurances et garanties du constructeur comprises (RC professionnelle, décennale, dommage ouvrage).

Les informations sur les risques auxquels ce bien est exposé sont disponibles sur le site Géorisques : www.georisques.gouv.fr


Prix
  • Prix total : 242 500 €
  • Prix du modèle de maison : 147 500 €
  • Prix du terrain : 95 000 €

Terrain
  • Surface : 829 m²

Maison
  • Surface : 85 m²
  • Pièces : 4
  • Chambres : 3
  • Garage : 1

  • Être rappelé par un conseiller
  • Demander plus d’infos
  • Demande d'information
Le Tilleul (76790)

Programmes à proximité

Parenthèse
Parenthèse
Le Havre (76620)

Appartement de 3 pièces
Livraison 1er trimestre 2026

Résidence Carmin
Résidence Carmin
Le Havre (76620)

Appartements de 3 à 4 pièces
Livraison 2ème trimestre 2025

Le Square Saint-Michel
Le Square Saint-Michel
Le Havre (76620)

Appartements de 1 à 3 pièces

VILLA CÉLESTE
VILLA CÉLESTE
Sainte-Adresse (76310)

Appartements de 1 à 5 pièces
Livraison 4ème trimestre 2026

Les Chalets
Les Chalets
Sainte-Adresse (76310)

Appartement de 3 pièces
Livraison 2ème trimestre 2022

Carré LH
Carré LH
Le Havre (76600)

Appartements de 1 à 6 pièces
Livraison 3ème trimestre 2026

Contacter EXTRACO - CONSTRUCTION | RÉNOVATION pour recevoir plus d'informations

Remplissez le formulaire ci-dessous, vos informations sont transmises directement au constructeur qui vous contactera par email ou par téléphone afin de traiter votre demande. En savoir plus.

Voir tous nos programmes immobiliers neufs au Tilleul