Maison neuve, 120 m² - Le Fresne-Camilly (14480)

266 000 €
Le Fresne-Camilly (14480)

Proposée par MAISONS FRANCE CONFORT – 7 pièces - 5 chambres - terrain 420 m²

MAISONS FRANCE CONFORT
MAISONS FRANCE CONFORT
  • Demande d'information
MAISON À CONSTRUIRE : ceci est une annonce d'une maison neuve à construire.
Creully : maison T7 (120 m²) en vente
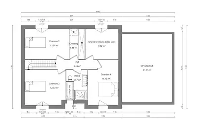
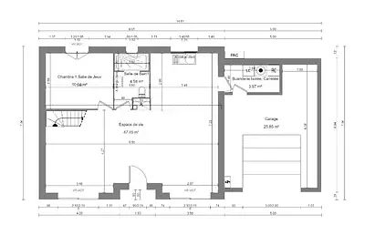
Idéalement située - À découvrir à Creully (14480) : maison neuve 7 pièces à vendre. 2 niveaux, surface de 120 m² et 420 m² de terrain. Son intérieur propose cinq chambres, une cuisine et deux salles de bains.
À proximité : gares (Audrieu et Bretteville-Norrey), établissements scolaires, bibliothèque, boulangeries, commerces, supérette et bureau de poste. Nationale N13 accessible à 7 km. Manche à 8 km. Caen à 17 km.
Le prix de vente de cette maison de 7 pièces est de 266 000 €.
.
Annonce proposée par un Agent Commercial Partenaire.
Référence : JS2336204_5
Terrain proposé par un partenaire foncier selon disponibilités et autorisation de publicité au prix de 66 000 €. Hors droit d'enregistrement et frais de notaire. Maison proposée, avec un contrat de construction de maison individuelle, dans le cadre de la loi du 19/12/1990, au prix de 200 000 € (Hors branchements et raccordements, papiers peints, peintures, revêtement de sol dans les chambres, qui sont chiffrés dans les travaux qui restent à charge du client. Tarif modifiable sans préavis). Étiquette énergie : A. Différents modèles disponibles pour ce terrain. Assurances et garanties du constructeur comprises (RC professionnelle, décennale, dommage ouvrage).

Les informations sur les risques auxquels ce bien est exposé sont disponibles sur le site Géorisques : www.georisques.gouv.fr


Prix
  • Prix total : 266 000 €
  • Prix du modèle de maison : 200 000 €
  • Prix du terrain : 66 000 €

Terrain
  • Surface : 420 m²

Maison
  • Surface : 120 m²
  • Pièces : 7
  • Chambres : 5
  • Garage : 1

  • Être rappelé par un conseiller
  • Demander plus d’infos
  • Demande d'information
Le Fresne-Camilly (14480)

Programmes à proximité

LES REFLETS DE NACRE
LES REFLETS DE NACRE
Courseulles-sur-Mer (14470)

Appartements de 2 à 3 pièces
Livraison 3ème trimestre 2027

Epilogue
Epilogue
Carpiquet (14650)

Appartement de 4 pièces
Livraison 4ème trimestre 2026

VILLA EMERAUDE
VILLA EMERAUDE
Epron (14610)

Appartements de 2 à 4 pièces
Livraison 3ème trimestre 2026

SAPHIR
SAPHIR
Langrune-sur-Mer (14830)

Appartements de 2 à 4 pièces
Livraison 4ème trimestre 2027

Coeur des Crêtes PA7
Coeur des Crêtes PA7
Bretteville-sur-Odon (14760)

Appartements de 1 à 3 pièces
Livraison 4ème trimestre 2026

L'EDEN
L'EDEN
Caen (14000)

Appartements de 2 à 4 pièces
Livraison 2ème trimestre 2027

Contacter MAISONS FRANCE CONFORT pour recevoir plus d'informations

Remplissez le formulaire ci-dessous, vos informations sont transmises directement au constructeur qui vous contactera par email ou par téléphone afin de traiter votre demande. En savoir plus.

Voir tous nos programmes immobiliers neufs au Fresne-Camilly