Maison neuve, 100 m² - Le Burgaud (31330)

265 000 €
Le Burgaud (31330)

Proposée par MAISONS FRANCE CONFORT – 4 pièces - 3 chambres - terrain 814 m²

MAISONS FRANCE CONFORT
MAISONS FRANCE CONFORT
(312 avis)
  • Demande d'information
MAISON À CONSTRUIRE : ceci est une annonce d'une maison neuve à construire.
OPPORTUNITE EXCEPTIONNELLE - Maison avec PC Accepté - démarrage des travaux immédiat !
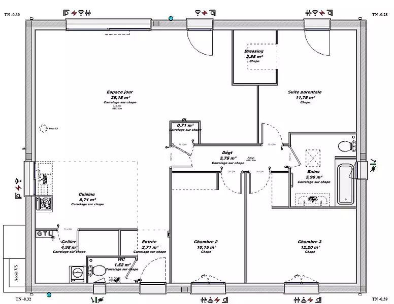
L'agence Maisons France Confort d'AUCAMVILLE vous propose suite à désistement un projet de construction RE 2020 avec cette maison de 100 m² au BURGAUD . Idéale pour un premier investissement, cette maison neuve est de conception traditionnelle de plain-pied. elle comporte une entrée, un séjour/cuisine , un cellier, un WC et un espace nuit composé de 3 chambres et une salle de bains.
Au coeur de la campagne toulousaine, sur une parcelle constructible de 814 m², vous profiterez des toutes les commodités à seulement 2 minutes. Vous pourrez accéder à Toulouse en 30 minutes.
Votre conseiller de l'agence Maisons France Confort d'AUCAMVILLE est à votre disposition au 05 34 43 84 38 .
PRIX : 265 000 € Frais inclus
Annonce proposée par un Agent Commercial Partenaire.
Référence : XF2423431_1
Terrain proposé par un partenaire foncier selon disponibilités et autorisation de publicité au prix de 80 000 €. Hors droit d'enregistrement et frais de notaire. Terrain + Maison proposés au prix de 265 000 € (Hors branchements et raccordements, papiers peints, peintures, revêtement de sol dans les chambres. Tarif modifiable sans préavis). Etiquette énergie : A. Différents modèles disponibles pour ce terrain. Assurances et garanties du constructeur (RC professionnelle, décennale, dommage ouvrage, garantie de remboursement de l'acompte, livraison à prix et délai convenu) : HEXAOM Services est enregistré auprès de l'ORIAS en tant que Courtier en financement, Niveau 1, sous le numéro 14001345.

Les informations sur les risques auxquels ce bien est exposé sont disponibles sur le site Géorisques : www.georisques.gouv.fr


Prix
  • Prix total : 265 000 €
  • Prix du modèle de maison : 185 000 €
  • Prix du terrain : 80 000 €

Terrain
  • Surface : 814 m²

Maison
  • Surface : 100 m²
  • Pièces : 4
  • Chambres : 3

  • Être rappelé par un conseiller
  • Demander plus d’infos
  • Demande d'information
Le Burgaud (31330)

Programmes à proximité

Résidence CANAL RIVE GAUCHE
Résidence CANAL RIVE GAUCHE
Lespinasse (31150)

Appartement
Livraison 3ème trimestre 2022

LA SCALA
LA SCALA
Pibrac (31820)

Appartement de 3 pièces et maisons de 4 à 5 pièces
Livraison 1er trimestre 2026

Le Domaine de Pusiol
Le Domaine de Pusiol
Beauzelle (31700)

Appartement
Livraison 1er trimestre 2026

Botanika
Botanika
Fenouillet (31150)

Appartements de 2 à 4 pièces
Livraison 2ème trimestre 2028

Quercia
Quercia
Castelginest (31780)

Appartements de 3 à 4 pièces
Livraison 2ème trimestre 2027

Les Terrasses du Comminges
Les Terrasses du Comminges
Colomiers (31770)

Appartements de 1 à 4 pièces
Livraison 4ème trimestre 2027

Contacter MAISONS FRANCE CONFORT pour recevoir plus d'informations

Remplissez le formulaire ci-dessous, vos informations sont transmises directement au constructeur qui vous contactera par email ou par téléphone afin de traiter votre demande. En savoir plus.

Voir tous nos programmes immobiliers neufs au Burgaud