Maison neuve, 90 m² - Lannilis (29870)

268 000 €
Lannilis (29870)

Proposée par MAISONS DE L'AVENIR – 4 pièces - 3 chambres - terrain 421 m²

MAISONS DE L'AVENIR
MAISONS DE L'AVENIR
(63 avis)
  • Demande d'information
MAISON À CONSTRUIRE : ceci est une annonce d'une maison neuve à construire.
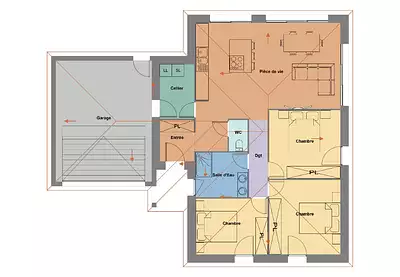
Maison de 4 pièces (90 m²) à vendre à Lannilis
Proche de Brest - À Lannilis (29870), maison neuve en vente de 4 pièces, 90 m² et 421 m² de terrain. Conçue de plain-pied, elle se divise en trois chambres, une cuisine et une salle de bains.
Le prix de vente de cette maison de 4 pièces est de 268 000 €.
.
Référence : JR2350803_2
Maisons de l’Avenir, constructeur de maisons individuelles, propose en collaboration avec ses partenaires fonciers, une sélection de terrains constructibles, selon disponibilité, pour la construction de maisons neuves définies par le constructeur, avec un contrat de construction de maison individuelle, dans le cadre de la loi du 19/12/1990. Prix net, hors frais notariés, d'enregistrement et de publicité foncière
Terrain proposé au prix de : 45 000 €
Maison proposée au prix de : 223 000 €
Etiquette énergie : A. Assurances et garanties du constructeur (RC professionnelle, décennale, dommage ouvrage, Garantie de livraison à prix et délai convenu).


Les informations sur les risques auxquels ce bien est exposé sont disponibles sur le site Géorisques : www.georisques.gouv.fr


Prix
  • Prix total : 268 000 €
  • Prix du modèle de maison : 223 000 €
  • Prix du terrain : 45 000 €

Terrain
  • Surface : 421 m²

Maison
  • Surface : 90 m²
  • Pièces : 4
  • Chambres : 3
  • Garage : 1

  • Être rappelé par un conseiller
  • Demander plus d’infos
  • Demande d'information
Lannilis (29870)

Programmes à proximité

LES HAUTS DU BOIS - BAT B
LES HAUTS DU BOIS - BAT B
Saint-Renan (29290)

Appartements de 2 à 3 pièces
Livraison 2ème trimestre 2028

LES HAUTS DU BOIS
LES HAUTS DU BOIS
Saint-Renan (29290)

Appartements de 2 à 3 pièces
Livraison 1er trimestre 2028

KOYA 3
KOYA 3
Guipavas (29490)

Appartements de 2 pièces
Livraison 2ème trimestre 2028

KOYA 2
KOYA 2
Guipavas (29490)

Appartements de 3 à 4 pièces
Livraison 1er trimestre 2027

DOMAINE DE LA SOURCE
DOMAINE DE LA SOURCE
Brest (29200)

Appartements de 2 à 4 pièces et maisons de 4 pièces
Livraison 4ème trimestre 2027

IROISE
IROISE
Brest (29200)

Appartements de 2 à 4 pièces

Contacter MAISONS DE L'AVENIR pour recevoir plus d'informations

Remplissez le formulaire ci-dessous, vos informations sont transmises directement au constructeur qui vous contactera par email ou par téléphone afin de traiter votre demande. En savoir plus.

Voir tous nos programmes immobiliers neufs à Lannilis