Maison neuve, 95 m² - Laluque (40465)

260 000 €
Laluque (40465)

Proposée par MAISONS MCA - SAINT-PAUL-LÈS-DAX – 4 pièces - 3 chambres - terrain 710 m²

Maisons MCA - Saint-Paul-lès-Dax
Maisons MCA - Saint-Paul-lès-Dax
(50 avis)
  • Demande d'information
MAISON À CONSTRUIRE : ceci est une annonce d'une maison neuve à construire.
. 🚗
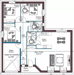
Dédié aux investisseurs, laissez-vous séduire par ce modèle de maison en L, entièrement adapté aux normes PMR. Avec son garage intégré et ses 3 chambres, chacune disposant d'un emplacement placard, cette villa lumineuse et généreuse facilitera le quotidien des familles. La cuisine est en partie ouverte sur le vaste salon-séjour tourné vers le jardin. Les lignes définies par le porche apportent une touche d'originalité à cette maison.
Vous serez séduits par le beau volume de ses chambres, et la grande luminosité de son espace de vie.
Le prix affiché comprend le terrain, les frais de notaire, les frais de raccordements et de pluviales, les frais annexes (taxe aux raccordements, bornage), et cette maison livrée prête à décorer. Référence : CP2353611_2

Les informations sur les risques auxquels ce bien est exposé sont disponibles sur le site Géorisques : www.georisques.gouv.fr


Prix
  • Prix total : 260 000 €
  • Prix du modèle de maison : 199 650 €
  • Prix du terrain : 60 350 €

Terrain
  • Surface : 710 m²

Maison
  • Surface : 95 m²
  • Pièces : 4
  • Chambres : 3
  • Garage : 1

  • Être rappelé par un conseiller
  • Demander plus d’infos
  • Demande d'information
Laluque (40465)

Programmes à proximité

Le Parc de Bitche
Le Parc de Bitche
Castets (40260)

Appartements de 1 à 4 pièces
Livraison 4ème trimestre 2026

DOMAINE D'ANGUIAOU 2
DOMAINE D'ANGUIAOU 2
Saint-Paul-lès-Dax (40990)

Appartements de 2 à 3 pièces
Livraison 4ème trimestre 2027

DOMAINE D'ANGUIAOU
DOMAINE D'ANGUIAOU
Saint-Paul-lès-Dax (40990)

Appartement de 3 pièces
Livraison 3ème trimestre 2026

L'Orée
L'Orée
Saint-Paul-lès-Dax (40990)

Appartements de 2 à 3 pièces
Livraison 3ème trimestre 2026

Votre maison à proximité du centre-ville
Votre maison à proximité du centre-ville
Saint-Paul-lès-Dax (40990)

Appartements de 3 pièces et maisons de 3 pièces
Livraison 1er trimestre 2027

LINK²
LINK²
Dax (40100)

Appartements de 5 pièces
Livraison 2ème trimestre 2027

Contacter MAISONS MCA - SAINT-PAUL-LÈS-DAX pour recevoir plus d'informations

Remplissez le formulaire ci-dessous, vos informations sont transmises directement au constructeur qui vous contactera par email ou par téléphone afin de traiter votre demande. En savoir plus.

Voir tous nos programmes immobiliers neufs à Laluque