Maison neuve, 164 m² - La Tremblade (17390)

646 441 €
La Tremblade (17390)

Proposée par MAISONS ELYSEES OCEAN AGENCE DE LA TREMBLADE – 4 pièces - 3 chambres - terrain 1 000 m²

Maisons Elysees Ocean Agence de La Tremblade
Maisons Elysees Ocean Agence de La Tremblade
  • Demande d'information
MAISON À CONSTRUIRE : ceci est une annonce d'une maison neuve à construire.
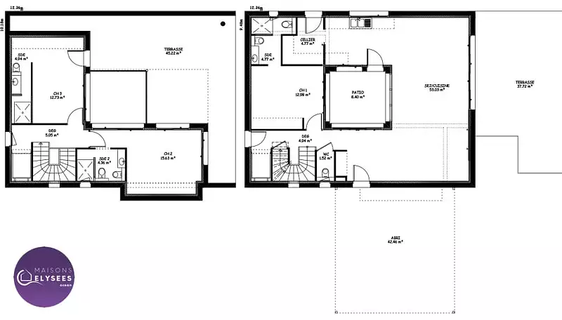
Sur ce terrain, nous vous proposons cette maison neuve, la Dompierre, conçue par Elysees Ocean, le constructeur aux meilleurs avis clients de la profession. Avec une surface de 164 m², cette maison contemporaine de standing est idéale pour les familles à la recherche de confort et de modernité.
La Dompierre se distingue par son architecture élégante et ses murs rideaux de plus de 30 m², orientés plein sud, qui illuminent le séjour au rez-de-chaussée et une grande mezzanine-bureau à l'étage. Ce mur rideau crée un volume étendu et harmonieux à la pièce à vivre, donnant l'impression que l'intérieur et l'extérieur ne font qu'un.
Le confort d'été est assuré par un brise-soleil vertical sur la partie haute et horizontal pour les vantaux coulissants du rez-de-chaussée, ainsi que des vitrages auto-nettoyants et performants sur le plan thermique. Une petite terrasse privative, située à l'arrière de la maison entre la cuisine et la salle de bain parentale, offre un espace protégé pour les déjeuners et après-midis d'été.
La maison dispose de 3 chambres, dont une suite parentale, et de 4 pièces au total. L'escalier luxueux de la collection Plénitude ajoute une touche de raffinement à l'intérieur. Un garage accolé complète les prestations de cette maison.
Les options les plus demandées par nos clients, telles que le bardage Vibrato et les menuiseries en aluminium, sont également disponibles pour personnaliser votre future maison.
Enfin, cette maison neuve est basse consommation et conforme à la réglementation environnementale RE2020, garantissant des performances énergétiques optimales et un respect de l'environnement.
Ne manquez pas cette opportunité unique de devenir propriétaire de la Dompierre, une maison alliant modernité, confort et respect de l'environnement. Contactez-nous dès aujourd'hui pour plus d'informations.
Référence : 25227

Les informations sur les risques auxquels ce bien est exposé sont disponibles sur le site Géorisques : www.georisques.gouv.fr


Prix
  • Prix total : 646 441 €
  • Prix du modèle de maison : 385 441 €
  • Prix du terrain : 261 000 €

Terrain
  • Surface : 1 000 m²

Maison
  • Surface : 164 m²
  • Pièces : 4
  • Chambres : 3

  • Être rappelé par un conseiller
  • Demander plus d’infos
  • Demande d'information
La Tremblade (17390)

Programmes à proximité

Mareva
Mareva
La Tremblade (17390)

Appartements de 2 à 3 pièces
Livraison 2ème trimestre 2028

Prochainement à Vaux-sur-Mer
Prochainement à Vaux-sur-Mer
Vaux-sur-Mer (17640)

Appartements de 2 à 4 pièces
Livraison 3ème trimestre 2028

L'Éclat Marin
L'Éclat Marin
Royan (17200)

Appartements de 2 à 4 pièces et maisons de 4 pièces

Horizon
Horizon
Royan (17200)

Appartements de 1 à 4 pièces
Livraison 3ème trimestre 2028

OPHELIA
OPHELIA
Saint-Georges-de-Didonne (17110)

Appartement de 3 pièces
Livraison 1er trimestre 2026

Prochainement à Saint-Pierre-d'Oléron
Prochainement à Saint-Pierre-d'Oléron
Saint-Pierre-d'Oléron (17310)

Appartements de 2 à 4 pièces
Livraison 2ème trimestre 2028

Contacter MAISONS ELYSEES OCEAN AGENCE DE LA TREMBLADE pour recevoir plus d'informations

Remplissez le formulaire ci-dessous, vos informations sont transmises directement au constructeur qui vous contactera par email ou par téléphone afin de traiter votre demande. En savoir plus.

Voir tous nos programmes immobiliers neufs à La Tremblade