Maison neuve, 130 m² - La Possonnière (49170)

352 500 €
La Possonnière (49170)

Proposée par MAISONS BERNARD JAMBERT – 6 pièces - 4 chambres - terrain 558 m²

MAISONS BERNARD JAMBERT
MAISONS BERNARD JAMBERT
  • Demande d'information
MAISON À CONSTRUIRE : ceci est une annonce d'une maison neuve à construire.
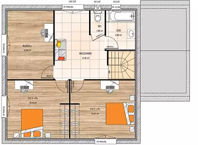
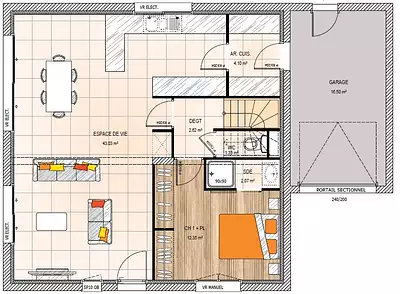
VENTE d'une maison T6 (130 m²) à La Possonnière
Emplacement privilégié - Maison neuve 6 pièces en vente à La Possonnière (49170) avec 2 niveaux, une surface de 130 m² sur un terrain de 558 m². Son intérieur est composé de quatre chambres, d'une cuisine et de deux salles de bains.
Proche gare (La Possonnière), écoles, tennis, commerces, boulangerie et supérette. Accès autoroutes A87 et A11 à 10 km. Angers à 15 km.
Cette maison de 6 pièces est à vendre pour la somme de 352 500 €.
.
Référence : MJ2354377_4
Terrain proposé par un partenaire foncier selon disponibilités et autorisation de publicité au prix de 85 000 €. Hors droit d'enregistrement et frais de notaire. Maison proposée, avec un contrat de construction de maison individuelle, dans le cadre de la loi du 19/12/1990, au prix de 267 500 € (Hors branchements et raccordements, papiers peints, peintures, revêtement de sol dans les chambres, qui sont chiffrés dans les travaux qui restent à charge du client. Tarif modifiable sans préavis). Étiquette énergie : A. Différents modèles disponibles pour ce terrain. Assurances et garanties du constructeur comprises (RC professionnelle, décennale, dommage ouvrage).

Les informations sur les risques auxquels ce bien est exposé sont disponibles sur le site Géorisques : www.georisques.gouv.fr


Prix
  • Prix total : 352 500 €
  • Prix du modèle de maison : 267 500 €
  • Prix du terrain : 85 000 €

Terrain
  • Surface : 558 m²

Maison
  • Surface : 130 m²
  • Pièces : 6
  • Chambres : 4
  • Garage : 1

  • Être rappelé par un conseiller
  • Demander plus d’infos
  • Demande d'information
La Possonnière (49170)

Programmes à proximité

Les Confluences
Les Confluences
Chalonnes-sur-Loire (49290)

Appartements de 2 à 5 pièces
Livraison 4ème trimestre 2026

L'Ecrin
L'Ecrin
Bouchemaine (49080)

Appartements de 4 pièces
Livraison 4ème trimestre 2025

TERRE DE CE II
TERRE DE CE II
Les Ponts-de-Cé (49130)

Appartements de 2 à 3 pièces
Livraison 4ème trimestre 2027

Adresse pratique à 10min du centre ville-Cityssim'
Adresse pratique à 10min du centre ville-Cityssim'
Angers (49000)

Appartements de 3 pièces
Livraison 4ème trimestre 2026

GREEN FOREST
GREEN FOREST
Angers (49000)

Appartements de 2 à 3 pièces et maisons de 4 pièces
Livraison 3ème trimestre 2027

L'Olympe
L'Olympe
Angers (49000)

Appartements de 1 à 4 pièces
Livraison 2ème trimestre 2028

Contacter MAISONS BERNARD JAMBERT pour recevoir plus d'informations

Remplissez le formulaire ci-dessous, vos informations sont transmises directement au constructeur qui vous contactera par email ou par téléphone afin de traiter votre demande. En savoir plus.

Voir tous nos programmes immobiliers neufs à La Possonnière