Maison neuve, 75 m² - La Pommeraye (49620)

217 500 €
La Pommeraye (49620)

Proposée par MAISONS BERNARD JAMBERT – 5 pièces - 2 chambres - terrain 525 m²

MAISONS BERNARD JAMBERT
MAISONS BERNARD JAMBERT
  • Demande d'information
MAISON À CONSTRUIRE : ceci est une annonce d'une maison neuve à construire.
La Pommeraye : maison T5 (75 m²) à vendre
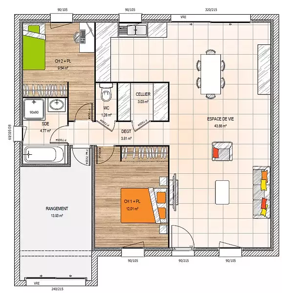
Idéalement située - À La Pommeraye (49620), maison neuve en vente de 5 pièces, 75 m² et 525 m² de terrain. Elle comporte deux chambres, une cuisine et une salle de bains.
Proche gares (Champtocé-sur-Loire, Ingrandes-Le Fresne-sur-Loire et Chalonnes-sur-Loire), établissements scolaires, bassins de natation, tennis, bibliothèques, supermarchés, commerces, boulangeries, épiceries et supérette. Marché Rue de l'église le vendredi matin. Angers à 28 km.
Le prix de vente de cette maison de 5 pièces est de 217 500 €.
N'hésitez pas à prendre contact avec Mathieu JANNEAU (tél : 06-01-35-24-98) pour tout renseignement sur la maison de plain-pied.
Référence : MJ2402586_3
Terrain proposé par un partenaire foncier selon disponibilités et autorisation de publicité au prix de 64 900 €. Hors droit d'enregistrement et frais de notaire. Terrain + Maison proposés au prix de 152 600 € (Hors branchements et raccordements, papiers peints, peintures, revêtement de sol dans les chambres. Tarif modifiable sans préavis). Etiquette énergie : A. Différents modèles disponibles pour ce terrain. Assurances et garanties du constructeur (RC professionnelle, décennale, dommage ouvrage, garantie de remboursement de l'acompte, livraison à prix et délai convenu) : https://www.maisons-bernard-jambert.com/informations-legales/.

Les informations sur les risques auxquels ce bien est exposé sont disponibles sur le site Géorisques : www.georisques.gouv.fr


Prix
  • Prix total : 217 500 €
  • Prix du modèle de maison : 152 600 €
  • Prix du terrain : 64 900 €

Terrain
  • Surface : 525 m²

Maison
  • Surface : 75 m²
  • Pièces : 5
  • Chambres : 2

  • Être rappelé par un conseiller
  • Demander plus d’infos
  • Demande d'information
La Pommeraye (49620)

Programmes à proximité

Les Confluences
Les Confluences
Chalonnes-sur-Loire (49290)

Appartements de 2 à 5 pièces
Livraison 4ème trimestre 2026

L'Ecrin
L'Ecrin
Bouchemaine (49080)

Appartements de 4 pièces
Livraison 1er trimestre 2026

Adresse pratique à 10min du centre ville-Cityssim'
Adresse pratique à 10min du centre ville-Cityssim'
Angers (49000)

Appartement de 3 pièces
Livraison 4ème trimestre 2026

Les Bois
Les Bois
Angers (49000)

Appartements de 3 à 5 pièces
Livraison 1er trimestre 2026

WOOD GARDEN
WOOD GARDEN
Angers (49000)

Appartements de 4 pièces
Livraison 3ème trimestre 2026

Studio 142
Studio 142
Angers (49000)

Appartements de 1 pièce
Livraison 3ème trimestre 2027

Contacter MAISONS BERNARD JAMBERT pour recevoir plus d'informations

Remplissez le formulaire ci-dessous, vos informations sont transmises directement au constructeur qui vous contactera par email ou par téléphone afin de traiter votre demande. En savoir plus.

Voir tous nos programmes immobiliers neufs à La Pommeraye