Maison neuve, 92 m² - La Balme-les-Grottes (38390)

239 000 €
La Balme-les-Grottes (38390)

Proposée par MAISONS PUNCH BOURGOIN JALLIEU – 4 pièces - 3 chambres - terrain 310 m²

Maisons Punch Bourgoin Jallieu
Maisons Punch Bourgoin Jallieu
(78 avis)
  • Demande d'information
MAISON À CONSTRUIRE : ceci est une annonce d'une maison neuve à construire.
Offre Exceptionnelle pour les 50 ans de Maisons Punch !!!
10m² supplémentaires offerts sur votre maison + 2 pack au choix offert !
Vous rêvez de vivre dans un cadre paisible et verdoyant ? Profitez de cette offre unique pour construire votre maison sur le charmant village de La Balme les Grottes, à seulement 15 minutes d’Ambérieu-en-Bugey. A proximité des écoles, commerces, gares et services pour une vie pratique et agréable !
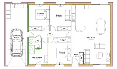
Maisons Punch vous propose une maison neuve de 90m² sur une parcelle de 310m² viabilisé, conçue dans le respect de l'environnement et conforme à la norme RE 2020 pour un habitat durable et performant.
Caractéristiques de votre nouvelle maison :
• Spacieuse pièce de vie de 43m² avec cuisine ouverte sur le salon pour un espace convivial et lumineux
• 3 chambres (de 10 à 11m²) et la possibilité d’ajouter une quatrième chambre selon vos besoins
• Salle de bain personnalisable (baignoire ou douche) avec meuble vasque et WC séparés
• Garage de 25m² : espace pour voiture et rangement supplémentaire à l’arrière
Les plans de la maison sont entièrement personnalisables selon vos envies pour créer la maison de vos rêves !
Prestations incluses :
• Volets roulants intégrés et connectés à votre smartphone
• Pompe à chaleur pour un confort optimal et des économies d’énergie
• Débords de toiture en PVC pour un entretien simplifié
Le prix indiqué inclut : CONSTRUCTION, TERRAIN ET VRD, tout est déjà compris !
Saisissez cette offre exceptionnelle et profitez de 10m² supplémentaires pour plus d’espace à vivre !
Pour plus d’informations ou pour débuter votre projet, contactez-moi dès maintenant. Je serai ravi de vous accompagner tout au long de cette belle aventure immobilière.
Maisons Punch - 50 ans d’expertise à votre service !
Mr Matthias PAQUET
Responsable secteur
Maisons Punch
Référence : 10287 PAQUET Matthias
Terrain proposé et vendu par notre partenaire foncier selon disponibilités, le constructeur n’étant pas mandaté pour réaliser la vente du terrain. Prix terrain inclus : 79 900 € Frais de notaire non inclus : € Prix maison inclus : 159 100 € VRD non inclus : € Hors aménagements extérieurs (extensions, terrasse, piscine etc), papiers peints, peintures, moquettes dans les chambres (tarif en vigueur au 20 mai 2025, modifiable sans préavis, prix variables suivant les prestations souhaitées). Hors frais d’hypothèque. Différents modèles disponibles pour chaque terrain. Assurance RC professionnelle/décennale/dommage ouvrage groupe Aviva. Garantie de remboursement de l'acompte/livraison à prix et délai convenu CGI.

Les informations sur les risques auxquels ce bien est exposé sont disponibles sur le site Géorisques : www.georisques.gouv.fr


Prix
  • Prix total : 239 000 €
  • Prix du modèle de maison : 159 100 €
  • Prix du terrain : 79 900 €

Terrain
  • Surface : 310 m²

Maison
  • Surface : 92 m²
  • Pièces : 4
  • Chambres : 3
  • Salle de bains : 1
  • Garage : 1
  • Surface garage : 25 m²

  • Être rappelé par un conseiller
  • Demander plus d’infos
  • Demande d'information
La Balme-les-Grottes (38390)

Programmes à proximité

Résidence ATELIER JULES
Résidence ATELIER JULES
Ambérieu-en-Bugey (01500)

Appartements de 2 à 5 pièces
Livraison 3ème trimestre 2027

LES JADES
LES JADES
Ambérieu-en-Bugey (01500)

Appartements de 2 à 4 pièces
Livraison 4ème trimestre 2027

L'ARCHIPEL
L'ARCHIPEL
Ambérieu-en-Bugey (01500)

Appartement de 4 pièces
Livraison 2ème trimestre 2025

L'AMBRE
L'AMBRE
Ambérieu-en-Bugey (01500)

Appartements de 1 à 4 pièces
Livraison 2ème trimestre 2026

CLOS AMBELIA
CLOS AMBELIA
Ambérieu-en-Bugey (01500)

Appartements de 2 à 4 pièces
Livraison 4ème trimestre 2026

L'écrin du Bugey
L'écrin du Bugey
Ambérieu-en-Bugey (01500)

Appartements de 2 à 4 pièces
Livraison 1er trimestre 2028

Contacter MAISONS PUNCH BOURGOIN JALLIEU pour recevoir plus d'informations

Remplissez le formulaire ci-dessous, vos informations sont transmises directement au constructeur qui vous contactera par email ou par téléphone afin de traiter votre demande. En savoir plus.

Voir tous nos programmes immobiliers neufs à La Balme-les-Grottes