Maison neuve, 115 m² - Jarzé Villages (49140)

304 500 €
Jarzé Villages (49140)

Proposée par MAISONS BERNARD JAMBERT – 6 pièces - 4 chambres - terrain 727 m²

MAISONS BERNARD JAMBERT
MAISONS BERNARD JAMBERT
  • Demande d'information
MAISON À CONSTRUIRE : ceci est une annonce d'une maison neuve à construire.
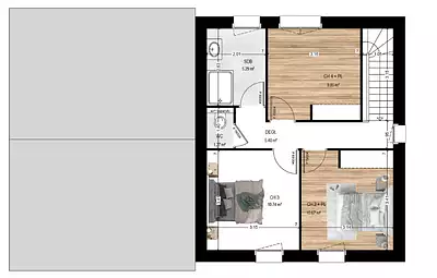
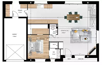
VENTE d'une maison F6 (115 m²) à Jarzé
Proche d'Angers - À Jarzé (49140), maison neuve en vente de 6 pièces, 2 niveaux, 115 m² de surface et 727 m² de terrain. Son intérieur offre quatre chambres, une cuisine et deux salles de bains.
À proximité : écoles, tennis, bibliothèque, commerce, boulangeries, épicerie et boucherie-charcuterie. Autoroutes A11 et A85 accessibles à 8 km.
Cette maison de 6 pièces est à vendre pour la somme de 304 500 €.
. Maisons Bernard Jambert Angers vous accompagne dans tous vos projets immobiliers et dans toutes vos démarches.
Référence : RS2286704_3
Terrain proposé par un partenaire foncier selon disponibilités et autorisation de publicité au prix de 74 150 €. Hors droit d'enregistrement et frais de notaire. Maison proposée, avec un contrat de construction de maison individuelle, dans le cadre de la loi du 19/12/1990, au prix de 230 350 € (Hors branchements et raccordements, papiers peints, peintures, revêtement de sol dans les chambres, qui sont chiffrés dans les travaux qui restent à charge du client. Tarif modifiable sans préavis). Étiquette énergie : A. Différents modèles disponibles pour ce terrain. Assurances et garanties du constructeur comprises (RC professionnelle, décennale, dommage ouvrage).

Les informations sur les risques auxquels ce bien est exposé sont disponibles sur le site Géorisques : www.georisques.gouv.fr


Prix
  • Prix total : 304 500 €
  • Prix du modèle de maison : 230 350 €
  • Prix du terrain : 74 150 €

Terrain
  • Surface : 727 m²

Maison
  • Surface : 115 m²
  • Pièces : 6
  • Chambres : 4
  • Garage : 1

  • Être rappelé par un conseiller
  • Demander plus d’infos
  • Demande d'information
Jarzé Villages (49140)

Programmes à proximité

LE CLOS SAINT-SYLVAIN
LE CLOS SAINT-SYLVAIN
Saint-Sylvain-d'Anjou (49480)

Appartements de 3 pièces et maisons de 4 pièces
Livraison 2ème trimestre 2027

Les Jardins de la Varenne
Les Jardins de la Varenne
La Flèche (72200)

Appartements de 1 à 4 pièces
Livraison 3ème trimestre 2028

ATELIERS LUCINA
ATELIERS LUCINA
Trélazé (49800)

Appartements de 2 pièces
Livraison 4ème trimestre 2025

My Campus Anjou
My Campus Anjou
Trélazé (49800)

Appartements de 1 à 2 pièces
Livraison 4ème trimestre 2027

Initiale
Initiale
Saint-Barthélemy-d'Anjou (49124)

Appartements de 2 à 4 pièces
Livraison 4ème trimestre 2027

L'Olympe
L'Olympe
Angers (49000)

Appartements de 1 à 4 pièces
Livraison 2ème trimestre 2028

Contacter MAISONS BERNARD JAMBERT pour recevoir plus d'informations

Remplissez le formulaire ci-dessous, vos informations sont transmises directement au constructeur qui vous contactera par email ou par téléphone afin de traiter votre demande. En savoir plus.

Voir tous nos programmes immobiliers neufs à Jarzé Villages