Maison neuve, 88 m² - Honfleur (14600)

249 800 €
Honfleur (14600)

Proposée par EXTRACO - CONSTRUCTION | RÉNOVATION – 4 pièces - 3 chambres - terrain 696 m²

EXTRACO - Construction | Rénovation
EXTRACO - Construction | Rénovation
  • Demande d'information
MAISON À CONSTRUIRE : ceci est une annonce d'une maison neuve à construire.
Maison de 4 pièces (88 m²) à vendre à Honfleur
IDÉALEMENT SITUÉE - MAISON 4 PIÈCES NEUVE
À 12 km du Havre, à vendre idéalement située dans Honfleur (14600), notre agence EXTRACO Construction Rénovation Pont-l'Évêque est ravie de vous présenter cette maison de 4 pièces de 88 m² et de 696 m² de terrain.
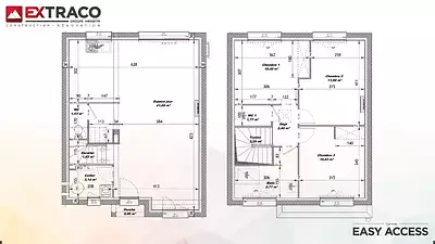
Cette maison possède 2 niveaux. Elle offre trois chambres, une cuisine et une salle de bains. Cette maison est neuve.
Cette maison se trouve dans un quartier convoité. L'École Élémentaire Privée Saint Joseph, le Collège Privé Notre-Dame et l'École Primaire H. Caubrière sont implantés à moins de 10 minutes à pied. Les autoroutes A29 et A131 et la nationale N282 sont accessibles à moins de 10 km. On trouve un port de plaisance, un bassin de natation, un tennis, une bibliothèque, des commerces, des boulangeries, un supermarché, deux supérettes et des épiceries à quelques minutes. Ne manquez pas le marché Cours de Fosses chaque samedi matin.
Son prix de vente est de 249 800 €.
.
EXTRACO Construction Rénovation Pont-l'Évêque est là pour vous accompagner à toutes les étapes de votre projet.
Référence : AC2339148S46_2
Terrain proposé par un partenaire foncier selon disponibilités et autorisation de publicité au prix de 97 400 €. Hors droit d'enregistrement et frais de notaire. Maison proposée, avec un contrat de construction de maison individuelle, dans le cadre de la loi du 19/12/1990, au prix de 152 400 € (Hors branchements et raccordements, papiers peints, peintures, revêtement de sol dans les chambres, qui sont chiffrés dans les travaux qui restent à charge du client. Tarif modifiable sans préavis). Étiquette énergie : A. Différents modèles disponibles pour ce terrain. Assurances et garanties du constructeur comprises (RC professionnelle, décennale, dommage ouvrage).

Les informations sur les risques auxquels ce bien est exposé sont disponibles sur le site Géorisques : www.georisques.gouv.fr


Prix
  • Prix total : 249 800 €
  • Prix du modèle de maison : 152 400 €
  • Prix du terrain : 97 400 €

Terrain
  • Surface : 696 m²

Maison
  • Surface : 88 m²
  • Pièces : 4
  • Chambres : 3

  • Être rappelé par un conseiller
  • Demander plus d’infos
  • Demande d'information
Honfleur (14600)

Maisons à proximité

Sémaphore
Sémaphore
Honfleur (14600)

Appartements de 3 pièces et maison de 4 pièces
Livraison 4ème trimestre 2024

Programmes à proximité

Le Coteau de Grâce
Le Coteau de Grâce
La Rivière-Saint-Sauveur (14600)

Appartements de 2 à 3 pièces
Livraison 3ème trimestre 2027

Sémaphore
Sémaphore
Honfleur (14600)

Appartements de 3 pièces et maison de 4 pièces
Livraison 4ème trimestre 2024

Proche de Honfleur !
Proche de Honfleur !
Equemauville (14600)

Appartements de 1 à 3 pièces et maisons de 4 à 5 pièces
Livraison 4ème trimestre 2027

Parenthèse
Parenthèse
Le Havre (76620)

Appartement de 3 pièces
Livraison 1er trimestre 2026

Résidence Carmin
Résidence Carmin
Le Havre (76620)

Appartements de 3 à 4 pièces
Livraison 2ème trimestre 2025

Le Square Saint-Michel
Le Square Saint-Michel
Le Havre (76620)

Appartements de 1 à 3 pièces

Contacter EXTRACO - CONSTRUCTION | RÉNOVATION pour recevoir plus d'informations

Remplissez le formulaire ci-dessous, vos informations sont transmises directement au constructeur qui vous contactera par email ou par téléphone afin de traiter votre demande. En savoir plus.

Voir tous nos programmes immobiliers neufs à Honfleur