Maison neuve, 82 m² - Honfleur (14600)

224 700 €
Honfleur (14600)

Proposée par EXTRACO - CONSTRUCTION | RÉNOVATION – 4 pièces - 3 chambres - terrain 505 m²

EXTRACO - Construction | Rénovation
EXTRACO - Construction | Rénovation
  • Demande d'information
MAISON À CONSTRUIRE : ceci est une annonce d'une maison neuve à construire.
Maison F4 (82 m²) à vendre à 15 km d'Honfleur
PROCHE DU HAVRE - MAISON 4 PIÈCES NEUVE
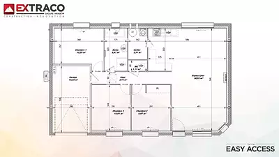
À vendre : localisée à 12 km du Havre, nous vous proposons proche Honfleur (14600), cette maison de 4 pièces de plain-pied de 82 m² et de 505 m² de terrain. Elle comporte trois chambres, une cuisine et une salle de bains.
La maison est neuve.
Il y a l'École Élémentaire Privée Saint Joseph, le Collège Privé Notre-Dame et l'École Primaire H. Caubrière à moins de 10 minutes à pied. Les autoroutes A29 et A131 et la nationale N282 sont accessibles à moins de 10 km. On trouve un port de plaisance, un bassin de natation, un tennis, une bibliothèque, des commerces, des boulangeries, un supermarché, une boucherie-charcuterie et deux poissonneries à quelques minutes du bien. Ne manquez pas le marché Cours de Fosses tous les samedis matin.
Elle est proposée à l'achat pour 224 700 €.
. Concrétisez vos projets immobiliers avec EXTRACO Construction Rénovation Pont-l'Évêque.
Référence : AC2350516_4
Terrain proposé par un partenaire foncier selon disponibilités et autorisation de publicité au prix de 79 000 €. Hors droit d'enregistrement et frais de notaire. Maison proposée, avec un contrat de construction de maison individuelle, dans le cadre de la loi du 19/12/1990, au prix de 145 700 € (Hors branchements et raccordements, papiers peints, peintures, revêtement de sol dans les chambres, qui sont chiffrés dans les travaux qui restent à charge du client. Tarif modifiable sans préavis). Étiquette énergie : A. Différents modèles disponibles pour ce terrain. Assurances et garanties du constructeur comprises (RC professionnelle, décennale, dommage ouvrage).

Les informations sur les risques auxquels ce bien est exposé sont disponibles sur le site Géorisques : www.georisques.gouv.fr


Prix
  • Prix total : 224 700 €
  • Prix du modèle de maison : 145 700 €
  • Prix du terrain : 79 000 €

Terrain
  • Surface : 505 m²

Maison
  • Surface : 82 m²
  • Pièces : 4
  • Chambres : 3
  • Garage : 1

  • Être rappelé par un conseiller
  • Demander plus d’infos
  • Demande d'information
Honfleur (14600)

Maisons à proximité

Sémaphore
Sémaphore
Honfleur (14600)

Appartements de 3 pièces et maison de 4 pièces
Livraison 4ème trimestre 2024

Programmes à proximité

Sémaphore
Sémaphore
Honfleur (14600)

Appartements de 3 pièces et maison de 4 pièces
Livraison 4ème trimestre 2024

Le Coteau de Grâce
Le Coteau de Grâce
La Rivière-Saint-Sauveur (14600)

Appartements de 2 à 3 pièces
Livraison 3ème trimestre 2027

Proche de Honfleur !
Proche de Honfleur !
Equemauville (14600)

Appartements de 1 à 3 pièces et maisons de 4 à 5 pièces
Livraison 4ème trimestre 2027

Parenthèse
Parenthèse
Le Havre (76620)

Appartement de 3 pièces
Livraison 1er trimestre 2026

Résidence Carmin
Résidence Carmin
Le Havre (76620)

Appartements de 3 à 4 pièces
Livraison 2ème trimestre 2025

Le Square Saint-Michel
Le Square Saint-Michel
Le Havre (76620)

Appartements de 1 à 3 pièces

Contacter EXTRACO - CONSTRUCTION | RÉNOVATION pour recevoir plus d'informations

Remplissez le formulaire ci-dessous, vos informations sont transmises directement au constructeur qui vous contactera par email ou par téléphone afin de traiter votre demande. En savoir plus.

Voir tous nos programmes immobiliers neufs à Honfleur