Maison neuve, 82 m² - Honfleur (14600)

182 000 €
Honfleur (14600)

Proposée par MAISONS FRANCE CONFORT – 5 pièces - 3 chambres - terrain 1 072 m²

MAISONS FRANCE CONFORT
MAISONS FRANCE CONFORT
  • Demande d'information
MAISON À CONSTRUIRE : ceci est une annonce d'une maison neuve à construire.
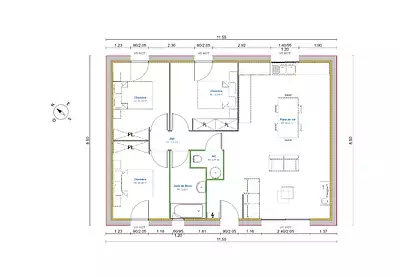
Maisons France Confort vous propose ce plain pied composé :
d'une entrée avec placard, une pièce de vie de 40m², un espace nuit avec 3 chambres et une salle de bain. Référence : AV2319921_2
Terrain proposé par un partenaire foncier selon disponibilités et autorisation de publicité au prix de 59 000 €. Hors droit d'enregistrement et frais de notaire. Maison proposée, avec un contrat de construction de maison individuelle, dans le cadre de la loi du 19/12/1990, au prix de 123 000 € (Hors branchements et raccordements, papiers peints, peintures, revêtement de sol dans les chambres, qui sont chiffrés dans les travaux qui restent à charge du client. Tarif modifiable sans préavis). Étiquette énergie : A. Différents modèles disponibles pour ce terrain. Assurances et garanties du constructeur comprises (RC professionnelle, décennale, dommage ouvrage).

Les informations sur les risques auxquels ce bien est exposé sont disponibles sur le site Géorisques : www.georisques.gouv.fr


Prix
  • Prix total : 182 000 €
  • Prix du modèle de maison : 123 000 €
  • Prix du terrain : 59 000 €

Terrain
  • Surface : 1 072 m²

Maison
  • Surface : 82 m²
  • Pièces : 5
  • Chambres : 3

  • Être rappelé par un conseiller
  • Demander plus d’infos
  • Demande d'information
Honfleur (14600)

Maisons à proximité

Sémaphore
Sémaphore
Honfleur (14600)

Appartements de 3 pièces et maison de 4 pièces
Livraison 4ème trimestre 2024

Programmes à proximité

Sémaphore
Sémaphore
Honfleur (14600)

Appartements de 3 pièces et maison de 4 pièces
Livraison 4ème trimestre 2024

Le Coteau de Grâce
Le Coteau de Grâce
La Rivière-Saint-Sauveur (14600)

Appartements de 2 à 3 pièces
Livraison 3ème trimestre 2027

Proche de Honfleur !
Proche de Honfleur !
Equemauville (14600)

Appartements de 1 à 3 pièces et maisons de 4 à 5 pièces
Livraison 4ème trimestre 2027

Parenthèse
Parenthèse
Le Havre (76620)

Appartement de 3 pièces
Livraison 1er trimestre 2026

Résidence Carmin
Résidence Carmin
Le Havre (76620)

Appartements de 3 à 4 pièces
Livraison 2ème trimestre 2025

Le Square Saint-Michel
Le Square Saint-Michel
Le Havre (76620)

Appartements de 1 à 3 pièces

Contacter MAISONS FRANCE CONFORT pour recevoir plus d'informations

Remplissez le formulaire ci-dessous, vos informations sont transmises directement au constructeur qui vous contactera par email ou par téléphone afin de traiter votre demande. En savoir plus.

Voir tous nos programmes immobiliers neufs à Honfleur