Maison neuve, 102 m² - Haveluy (59255)
229 700 €
Haveluy (59255)
Proposée par TRADINORD AGENCE DE VALENCIENNES – 4 pièces - 3 chambres - terrain 450 m²
|
|
| Tradinord Agence de Valenciennes |
- Demande d'information
- Prendre rendez-vous
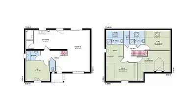
MAISON À CONSTRUIRE : ceci est une annonce d'une maison neuve à construire.
Vous voulez construire votre maison neuve ? Le modèle Clerye va vous séduire.
Vous souhaitez construire une maison neuve à étage pour accueillir confortablement votre famille. La Clerye a beaucoup d’atouts pour vous plaire. Il est possible de la choisir parmi 7 versions différentes. Vous aurez la possibilité de bâtir votre nouvelle habitation sur une surface allant de 100 à 131m². Sa forme en L vous séduira, tout comme son joli porche protégeant l’entrée, aussi pratique qu’élégant. Tradinord a conçu cette demeure avec sa toiture traditionnelle et sa forme en L pour satisfaire ses clients les plus exigeants.
Clerye, une charmante habitation familiale où il fait bon vivre
En optant pour cette jolie demeure, vous avez l’assurance de faire un choix judicieux. Elle dispose d’un plancher avec dalle béton à l’étage. Les trois grandes chambres qui s’y trouvent sont véritablement généreuses. En fonction de l’option choisie, vous disposerez d’une quatrième chambre au rez-de-chaussée, ou alors d’un garage intégré qui pourra faire jusqu’à 35m² ! Vous apprécierez sa charpente traditionnelle ouverte d’une lucarne bétonnée style chien-assis. Votre nouvelle habitation répondra bien sûr aux normes RT2012. Cela fera d’elle une maison aussi écolo qu’économique. Il va sans dire que si elle est bâtie dans une zone concernée, elle répondra aux normes parasismiques.
Vous allez construire votre maison neuve sur-mesure
Toutes les versions proposées sur ce modèle traditionnel sont modifiables selon vos envies. Vous allez moduler votre chez-vous afin de l’adapter à vos besoins et votre budget. Vous pourrez
Référence : 2824
Les informations sur les risques auxquels ce bien est exposé sont disponibles sur le site Géorisques : www.georisques.gouv.fr
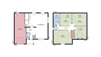
Vous souhaitez construire une maison neuve à étage pour accueillir confortablement votre famille. La Clerye a beaucoup d’atouts pour vous plaire. Il est possible de la choisir parmi 7 versions différentes. Vous aurez la possibilité de bâtir votre nouvelle habitation sur une surface allant de 100 à 131m². Sa forme en L vous séduira, tout comme son joli porche protégeant l’entrée, aussi pratique qu’élégant. Tradinord a conçu cette demeure avec sa toiture traditionnelle et sa forme en L pour satisfaire ses clients les plus exigeants.
Clerye, une charmante habitation familiale où il fait bon vivre
En optant pour cette jolie demeure, vous avez l’assurance de faire un choix judicieux. Elle dispose d’un plancher avec dalle béton à l’étage. Les trois grandes chambres qui s’y trouvent sont véritablement généreuses. En fonction de l’option choisie, vous disposerez d’une quatrième chambre au rez-de-chaussée, ou alors d’un garage intégré qui pourra faire jusqu’à 35m² ! Vous apprécierez sa charpente traditionnelle ouverte d’une lucarne bétonnée style chien-assis. Votre nouvelle habitation répondra bien sûr aux normes RT2012. Cela fera d’elle une maison aussi écolo qu’économique. Il va sans dire que si elle est bâtie dans une zone concernée, elle répondra aux normes parasismiques.
Vous allez construire votre maison neuve sur-mesure
Toutes les versions proposées sur ce modèle traditionnel sont modifiables selon vos envies. Vous allez moduler votre chez-vous afin de l’adapter à vos besoins et votre budget. Vous pourrez
Référence : 2824
Les informations sur les risques auxquels ce bien est exposé sont disponibles sur le site Géorisques : www.georisques.gouv.fr
- Prix
-
- Prix total : 229 700 €
- Prix du modèle de maison : 164 900 €
- Prix du terrain : 64 800 €
- Terrain
-
- Surface : 450 m²
- Maison
-
- Surface : 102 m²
- Pièces : 4
- Chambres : 3
- Être rappelé par un conseiller
- Demander plus d’infos
- Demande d'information
Haveluy (59255)
Maisons à proximité
Maison neuve, 103 m²
Wallers (59135)
Wallers (59135)
Maison de 4 pièces
Maison neuve, 130 m²
Wallers (59135)
Wallers (59135)
Maison de 3 pièces
Maison neuve, 150 m²
Wallers (59135)
Wallers (59135)
Maison de 5 pièces
Maison neuve, 93 m²
Wallers (59135)
Wallers (59135)
Maison de 3 pièces
Maison neuve, 92 m²
Wallers (59135)
Wallers (59135)
Maison de 4 pièces
Maison neuve, 113 m²
Wallers (59135)
Wallers (59135)
Maison de 5 pièces
Programmes à proximité
LE CLOS MACAREZ
Valenciennes (59300)
Valenciennes (59300)
Appartement de 2 pièces
Livraison 2ème trimestre 2024
Novéa
Valenciennes (59300)
Valenciennes (59300)
Appartements de 1 pièce
Livraison 2ème trimestre 2027
Villa Marilia
Marly (59770)
Marly (59770)
Appartements de 2 à 4 pièces
Florescence
Orchies (59310)
Orchies (59310)
Appartements de 2 à 4 pièces
Livraison 2ème trimestre 2027
Les Jardins de la Scarpe
Douai (59500)
Douai (59500)
Appartement de 2 pièces
Livraison 2ème trimestre 2025
Contacter TRADINORD AGENCE DE VALENCIENNES pour recevoir plus d'informations
Remplissez le formulaire ci-dessous, vos informations sont transmises directement au constructeur qui vous contactera par email ou par téléphone afin de traiter votre demande. En savoir plus.