Maison neuve, 140 m² - Gréasque (13850)
524 000 €
Gréasque (13850)
Proposée par MAISONS FRANCE CONFORT – 5 pièces - 4 chambres - terrain 983 m²
|
|
| MAISONS FRANCE CONFORT |
| (98 avis) |
- Demande d'information
- Prendre rendez-vous
MAISON À CONSTRUIRE : ceci est une annonce d'une maison neuve à construire.
Magnifique terrain de 938 M2 sur Gréasque, dans un bel environnement boisé, à 2 pas du centre ville, vu avec nos partenaires fonciers, au prix de 242.000 euros !
Imaginez votre maison France Confort, avec votre agence de Cabriès, maison réalisée à vos mesures, dans cet espace de calme, en pleine Provence...
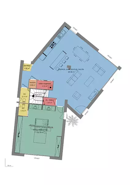
140 M2 avec 4 chambres dont une suite parentale, 1 garage, pour 524.000 euros (terrain + maison- hors frais de raccordements et frais de notaire), n'hésitez pas à appeler Pascal au O6 48 58 67 14;
Référence : PB2397241_3
Terrain proposé par un partenaire foncier selon disponibilités et autorisation de publicité au prix de 242 000 €. Hors droit d'enregistrement et frais de notaire. Terrain + Maison proposés au prix de 282 000 € (Hors branchements et raccordements, papiers peints, peintures, revêtement de sol dans les chambres. Tarif modifiable sans préavis). Etiquette énergie : A. Différents modèles disponibles pour ce terrain. Assurances et garanties du constructeur (RC professionnelle, décennale, dommage ouvrage, garantie de remboursement de l'acompte, livraison à prix et délai convenu) : https://www.maisons-france-confort.fr/mentions-legales/. HEXAOM Services est enregistré auprès de l'ORIAS en tant que Courtier en financement, Niveau 1, sous le numéro 14001345.
Les informations sur les risques auxquels ce bien est exposé sont disponibles sur le site Géorisques : www.georisques.gouv.fr
Imaginez votre maison France Confort, avec votre agence de Cabriès, maison réalisée à vos mesures, dans cet espace de calme, en pleine Provence...
140 M2 avec 4 chambres dont une suite parentale, 1 garage, pour 524.000 euros (terrain + maison- hors frais de raccordements et frais de notaire), n'hésitez pas à appeler Pascal au O6 48 58 67 14;
Référence : PB2397241_3
Terrain proposé par un partenaire foncier selon disponibilités et autorisation de publicité au prix de 242 000 €. Hors droit d'enregistrement et frais de notaire. Terrain + Maison proposés au prix de 282 000 € (Hors branchements et raccordements, papiers peints, peintures, revêtement de sol dans les chambres. Tarif modifiable sans préavis). Etiquette énergie : A. Différents modèles disponibles pour ce terrain. Assurances et garanties du constructeur (RC professionnelle, décennale, dommage ouvrage, garantie de remboursement de l'acompte, livraison à prix et délai convenu) : https://www.maisons-france-confort.fr/mentions-legales/. HEXAOM Services est enregistré auprès de l'ORIAS en tant que Courtier en financement, Niveau 1, sous le numéro 14001345.
Les informations sur les risques auxquels ce bien est exposé sont disponibles sur le site Géorisques : www.georisques.gouv.fr
- Prix
-
- Prix total : 524 000 €
- Prix du modèle de maison : 282 000 €
- Prix du terrain : 242 000 €
- Terrain
-
- Surface : 983 m²
- Maison
-
- Surface : 140 m²
- Pièces : 5
- Chambres : 4
- Garage : 1
- Être rappelé par un conseiller
- Demander plus d’infos
- Demande d'information
Gréasque (13850)
Maisons à proximité
Maison neuve, 98 m²
Gréasque (13850)
Gréasque (13850)
Maison de 5 pièces
Maison neuve, 110 m²
Gréasque (13850)
Gréasque (13850)
Maison de 4 pièces
Maison neuve, 92 m²
Gréasque (13850)
Gréasque (13850)
Maison de 5 pièces
Maison neuve, 78 m²
Gréasque (13850)
Gréasque (13850)
Maison de 4 pièces
Maison neuve, 90 m²
Gréasque (13850)
Gréasque (13850)
Maison de 4 pièces
Maison neuve, 76 m²
Gréasque (13850)
Gréasque (13850)
Maison de 5 pièces
Programmes à proximité
PROCHAINEMENT TRETS BRS
Trets (13530)
Trets (13530)
Appartements de 2 à 4 pièces
Livraison 2ème trimestre 2028
PARC CARLOTTA
Aix-en-Provence (13100)
Aix-en-Provence (13100)
Appartements de 4 pièces
Livraison 3ème trimestre 2026
Les Bastides de Célony
Aix-en-Provence (13100)
Aix-en-Provence (13100)
Appartements de 3 à 4 pièces
Livraison 2ème trimestre 2025
Harmonie
Aix-en-Provence (13100)
Aix-en-Provence (13100)
Appartements de 2 à 5 pièces
Livraison 2ème trimestre 2026
Le Carré Cezanne - BRS
Aix-en-Provence (13100)
Aix-en-Provence (13100)
Appartements de 3 à 5 pièces
Domaine Saint Marc
Aix-en-Provence (13100)
Aix-en-Provence (13100)
Appartements de 3 à 4 pièces
Livraison 2ème trimestre 2025
Contacter MAISONS FRANCE CONFORT pour recevoir plus d'informations
Remplissez le formulaire ci-dessous, vos informations sont transmises directement au constructeur qui vous contactera par email ou par téléphone afin de traiter votre demande. En savoir plus.