Maison neuve, 90 m² - Giou-de-Mamou (15130)
235 000 €
Giou-de-Mamou (15130)
Proposée par MAISONS PARTOUT – 5 pièces - 3 chambres - terrain 745 m²
|
|
| MAISONS PARTOUT |
| (163 avis) |
- Demande d'information
- Prendre rendez-vous
MAISON À CONSTRUIRE : ceci est une annonce d'une maison neuve à construire.
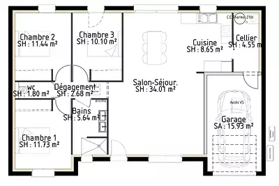
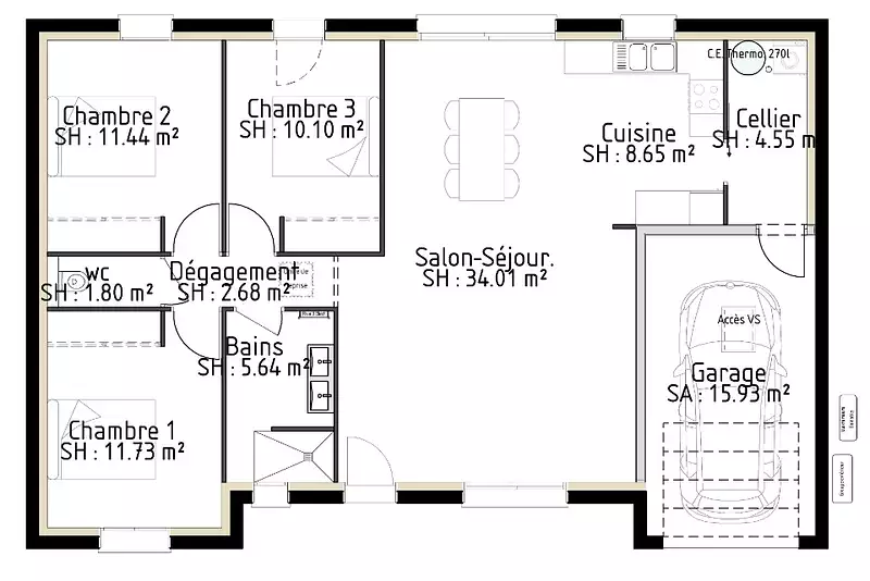
Cette charmante maison de plain-pied de 90 m² avec son terrain de 745 m², séduit par son agencement optimisé et ses pièces baignées de lumière. Elle dispose d'un vaste espace de vie traversant de 43 m² intégrant un salon-séjour convivial et une cuisine fonctionnelle, prolongée par un cellier de 4,5 m².
Côté nuit, trois chambres spacieuses offrent confort et intimité à toute la famille.
Une salle d'eau moderne, un WC indépendant et un garage de 15 m² viennent compléter ce bien pratique et bien pensé.
Idéale pour une vie de famille, cette maison allie confort, fonctionnalité et espace dans un cadre agréable.
Référence : SR2299365_1
Terrain proposé par un partenaire foncier selon disponibilités et autorisation de publicité au prix de 44 700 €. Hors droit d'enregistrement et frais de notaire. Maison proposée, avec un contrat de construction de maison individuelle, dans le cadre de la loi du 19/12/1990, au prix de 190 300 € (Hors branchements et raccordements, papiers peints, peintures, revêtement de sol dans les chambres, qui sont chiffrés dans les travaux qui restent à charge du client. Tarif modifiable sans préavis). Étiquette énergie : A. Différents modèles disponibles pour ce terrain. Assurances et garanties du constructeur comprises (RC professionnelle, décennale, dommage ouvrage).
Les informations sur les risques auxquels ce bien est exposé sont disponibles sur le site Géorisques : www.georisques.gouv.fr
Côté nuit, trois chambres spacieuses offrent confort et intimité à toute la famille.
Une salle d'eau moderne, un WC indépendant et un garage de 15 m² viennent compléter ce bien pratique et bien pensé.
Idéale pour une vie de famille, cette maison allie confort, fonctionnalité et espace dans un cadre agréable.
Référence : SR2299365_1
Terrain proposé par un partenaire foncier selon disponibilités et autorisation de publicité au prix de 44 700 €. Hors droit d'enregistrement et frais de notaire. Maison proposée, avec un contrat de construction de maison individuelle, dans le cadre de la loi du 19/12/1990, au prix de 190 300 € (Hors branchements et raccordements, papiers peints, peintures, revêtement de sol dans les chambres, qui sont chiffrés dans les travaux qui restent à charge du client. Tarif modifiable sans préavis). Étiquette énergie : A. Différents modèles disponibles pour ce terrain. Assurances et garanties du constructeur comprises (RC professionnelle, décennale, dommage ouvrage).
Les informations sur les risques auxquels ce bien est exposé sont disponibles sur le site Géorisques : www.georisques.gouv.fr
- Prix
-
- Prix total : 235 000 €
- Prix du modèle de maison : 190 300 €
- Prix du terrain : 44 700 €
- Terrain
-
- Surface : 745 m²
- Maison
-
- Surface : 90 m²
- Pièces : 5
- Chambres : 3
- Garage : 1
- Être rappelé par un conseiller
- Demander plus d’infos
- Demande d'information
Giou-de-Mamou (15130)
Maisons à proximité
Maison neuve, 94 m²
Arpajon-sur-Cère (15130)
Arpajon-sur-Cère (15130)
Maison de 5 pièces
Maison neuve, 111 m²
Arpajon-sur-Cère (15130)
Arpajon-sur-Cère (15130)
Maison de 6 pièces
Maison neuve, 88 m²
Arpajon-sur-Cère (15130)
Arpajon-sur-Cère (15130)
Maison de 5 pièces
Maison neuve, 77 m²
Aurillac (15000)
Aurillac (15000)
Maison de 5 pièces
Maison neuve, 72 m²
Aurillac (15000)
Aurillac (15000)
Maison de 5 pièces
Maison neuve, 88 m²
Aurillac (15000)
Aurillac (15000)
Maison de 5 pièces
Programmes à proximité
Contacter MAISONS PARTOUT pour recevoir plus d'informations
Remplissez le formulaire ci-dessous, vos informations sont transmises directement au constructeur qui vous contactera par email ou par téléphone afin de traiter votre demande. En savoir plus.