Maison neuve, 111 m² - Arpajon-sur-Cère (15130)
353 000 €
Arpajon-sur-Cère (15130)
Proposée par MAISONS PARTOUT – 6 pièces - 4 chambres - terrain 829 m²
|
|
| MAISONS PARTOUT |
| (163 avis) |
- Demande d'information
- Prendre rendez-vous
MAISON À CONSTRUIRE : ceci est une annonce d'une maison neuve à construire.
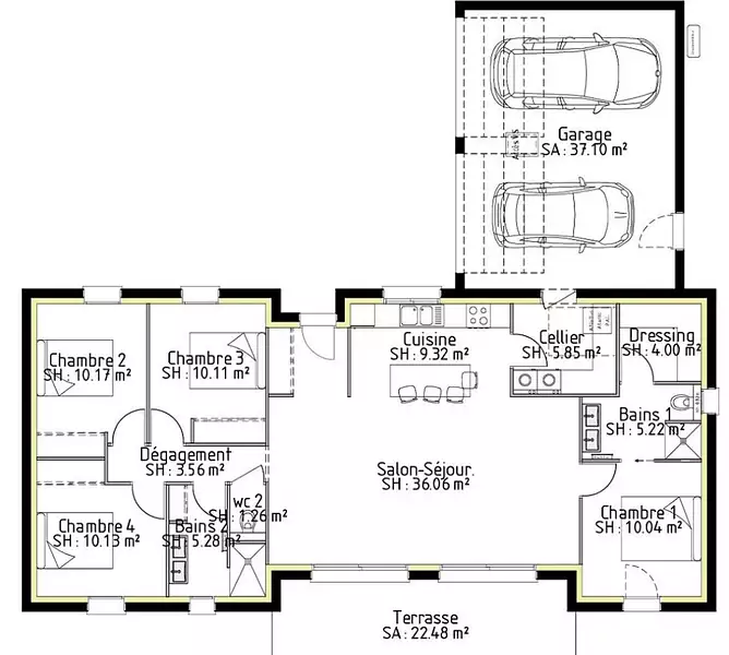
Cette future villa de plain-pied, d'une superficie habitable de 111 m² avec un double garage de 37 m² a été pensée pour répondre à toutes vos attentes. Avec ses 4 chambres spacieuses, dont une suite parentale comprenant un dressing et une salle d'eau, elle offre un espace de vie généreux et fonctionnel de 45 m², idéal pour accueillir votre famille et partager des moments inoubliables. Sur un terrain plat de 829 m², dans un environnement paisible et à proximité immédiate des commerces, se dressera bientôt votre nouvelle demeure. Imaginez-vous déjà profiter de ce cadre idyllique avec une terrasse de 22.50 m² exposée Sud/Est, où le calme règne en maître et où chaque jour est synonyme de confort et de sérénité.
Ne laissez pas passer cette opportunité unique de construire la maison de vos rêves dans un cadre enchanteur. .
Référence : PM2308896_1
Terrain proposé par un partenaire foncier selon disponibilités et autorisation de publicité au prix de 59 100 €. Hors droit d'enregistrement et frais de notaire. Maison proposée, avec un contrat de construction de maison individuelle, dans le cadre de la loi du 19/12/1990, au prix de 293 900 € (Hors branchements et raccordements, papiers peints, peintures, revêtement de sol dans les chambres, qui sont chiffrés dans les travaux qui restent à charge du client. Tarif modifiable sans préavis). Étiquette énergie : A. Différents modèles disponibles pour ce terrain. Assurances et garanties du constructeur comprises (RC professionnelle, décennale, dommage ouvrage).
Les informations sur les risques auxquels ce bien est exposé sont disponibles sur le site Géorisques : www.georisques.gouv.fr
Ne laissez pas passer cette opportunité unique de construire la maison de vos rêves dans un cadre enchanteur. .
Référence : PM2308896_1
Terrain proposé par un partenaire foncier selon disponibilités et autorisation de publicité au prix de 59 100 €. Hors droit d'enregistrement et frais de notaire. Maison proposée, avec un contrat de construction de maison individuelle, dans le cadre de la loi du 19/12/1990, au prix de 293 900 € (Hors branchements et raccordements, papiers peints, peintures, revêtement de sol dans les chambres, qui sont chiffrés dans les travaux qui restent à charge du client. Tarif modifiable sans préavis). Étiquette énergie : A. Différents modèles disponibles pour ce terrain. Assurances et garanties du constructeur comprises (RC professionnelle, décennale, dommage ouvrage).
Les informations sur les risques auxquels ce bien est exposé sont disponibles sur le site Géorisques : www.georisques.gouv.fr
- Prix
-
- Prix total : 353 000 €
- Prix du modèle de maison : 293 900 €
- Prix du terrain : 59 100 €
- Terrain
-
- Surface : 829 m²
- Maison
-
- Surface : 111 m²
- Pièces : 6
- Chambres : 4
- Garage : 1
- Être rappelé par un conseiller
- Demander plus d’infos
- Demande d'information
Arpajon-sur-Cère (15130)
Maisons à proximité
Maison neuve, 94 m²
Arpajon-sur-Cère (15130)
Arpajon-sur-Cère (15130)
Maison de 5 pièces
Maison neuve, 88 m²
Arpajon-sur-Cère (15130)
Arpajon-sur-Cère (15130)
Maison de 5 pièces
Maison neuve, 77 m²
Aurillac (15000)
Aurillac (15000)
Maison de 5 pièces
Maison neuve, 72 m²
Aurillac (15000)
Aurillac (15000)
Maison de 5 pièces
Maison neuve, 88 m²
Aurillac (15000)
Aurillac (15000)
Maison de 5 pièces
Maison neuve, 90 m²
Giou-de-Mamou (15130)
Giou-de-Mamou (15130)
Maison de 5 pièces
Programmes à proximité
Contacter MAISONS PARTOUT pour recevoir plus d'informations
Remplissez le formulaire ci-dessous, vos informations sont transmises directement au constructeur qui vous contactera par email ou par téléphone afin de traiter votre demande. En savoir plus.
Voir tous nos programmes immobiliers neufs à Arpajon-sur-Cère