Maison neuve, 80 m² - Gergy (71590)
217 907 €
Gergy (71590)
Proposée par BABEAU SEGUIN AGENCE DE CHALON-SUR-SAÔNE – CONSTRU – 3 pièces - 2 chambres - terrain 888 m²
|
|
| Babeau Seguin Agence de Chalon-sur-Saône – Constru |
- Demande d'information
- Prendre rendez-vous
MAISON À CONSTRUIRE : ceci est une annonce d'une maison neuve à construire.
Sur ce terrain, nous vous proposons cette maison neuve, la Sauvetière, conçue par Babeau-Seguin, constructeur reconnu pour offrir le meilleur rapport qualité/prix du marché.
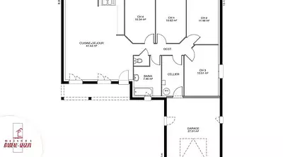
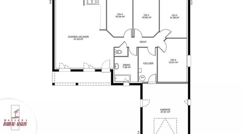
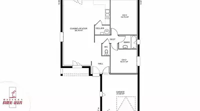
La Sauvetière est sans aucun doute à classer dans la catégorie maison moderne de notre catalogue. Cette maison plain-pied traditionnelle de 80 m² vous séduira par son audacieux plan en forme de L et ses touches résolument modernes. Elle dispose de 3 pièces, dont 2 chambres confortables, et d'un vaste séjour lumineux.
L'architecture en L de la Sauvetière abrite un garage accolé, offrant un accès direct à la maison. Vous avez le choix entre une toiture à 2 pans ou à 4 pans, selon vos préférences esthétiques.
Cette maison neuve est basse consommation et conforme à la RE2020, garantissant des performances énergétiques optimales et un confort de vie inégalé.
Ne manquez pas cette opportunité unique de devenir propriétaire d'une maison moderne, économe en énergie et parfaitement adaptée à vos besoins. Contactez-nous dès maintenant pour plus d'informations et pour planifier une visite du terrain.
Référence : 90790
Les informations sur les risques auxquels ce bien est exposé sont disponibles sur le site Géorisques : www.georisques.gouv.fr
La Sauvetière est sans aucun doute à classer dans la catégorie maison moderne de notre catalogue. Cette maison plain-pied traditionnelle de 80 m² vous séduira par son audacieux plan en forme de L et ses touches résolument modernes. Elle dispose de 3 pièces, dont 2 chambres confortables, et d'un vaste séjour lumineux.
L'architecture en L de la Sauvetière abrite un garage accolé, offrant un accès direct à la maison. Vous avez le choix entre une toiture à 2 pans ou à 4 pans, selon vos préférences esthétiques.
Cette maison neuve est basse consommation et conforme à la RE2020, garantissant des performances énergétiques optimales et un confort de vie inégalé.
Ne manquez pas cette opportunité unique de devenir propriétaire d'une maison moderne, économe en énergie et parfaitement adaptée à vos besoins. Contactez-nous dès maintenant pour plus d'informations et pour planifier une visite du terrain.
Référence : 90790
Les informations sur les risques auxquels ce bien est exposé sont disponibles sur le site Géorisques : www.georisques.gouv.fr
- Prix
-
- Prix total : 217 907 €
- Prix du modèle de maison : 159 607 €
- Prix du terrain : 58 300 €
- Terrain
-
- Surface : 888 m²
- Maison
-
- Surface : 80 m²
- Pièces : 3
- Chambres : 2
- Être rappelé par un conseiller
- Demander plus d’infos
- Demande d'information
Gergy (71590)
Maisons à proximité
Maison neuve, 111 m²
Gergy (71590)
Gergy (71590)
Maison de 5 pièces
Maison neuve, 73 m²
Gergy (71590)
Gergy (71590)
Maison de 4 pièces
Maison neuve, 111 m²
Gergy (71590)
Gergy (71590)
Maison de 5 pièces
Maison neuve, 111 m²
Gergy (71590)
Gergy (71590)
Maison de 5 pièces
Maison neuve, 111 m²
Gergy (71590)
Gergy (71590)
Maison de 5 pièces
Maison neuve, 79 m²
Gergy (71590)
Gergy (71590)
Maison de 4 pièces
Programmes à proximité
Domaine Suzanne
Beaune (21200)
Beaune (21200)
Appartements de 1 à 3 pièces
Livraison 2ème trimestre 2027
Les Allées du Parc
Beaune (21200)
Beaune (21200)
Appartements de 2 à 5 pièces et maison de 4 pièces
Livraison 2ème trimestre 2028
1ER CRU
Beaune (21200)
Beaune (21200)
Appartements de 1 à 4 pièces
Livraison 4ème trimestre 2027
Contacter BABEAU SEGUIN AGENCE DE CHALON-SUR-SAÔNE – CONSTRU pour recevoir plus d'informations
Remplissez le formulaire ci-dessous, vos informations sont transmises directement au constructeur qui vous contactera par email ou par téléphone afin de traiter votre demande. En savoir plus.