Maison neuve, 90 m² - Fuveau (13710)

399 000 €
Fuveau (13710)

Proposée par MAISONS DE MANON – 4 pièces - 3 chambres - terrain 340 m²

MAISONS DE MANON
MAISONS DE MANON
(39 avis)
  • Demande d'information
MAISON À CONSTRUIRE : ceci est une annonce d'une maison neuve à construire.
Fuveau : maison de 4 pièces (90 m²) à vendre
EMPLACEMENT PRIVILÉGIÉ - MAISON 4 PIÈCES NEUVE
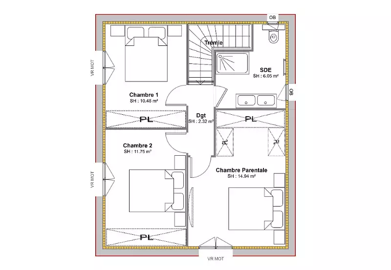
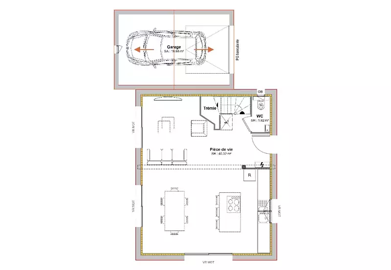
À vendre à 26 km de la mer Méditerranée et à quelques kilomètres de Marseille, votre agence Maisons de Manon Cabriès est ravie de vous présenter, bénéficiant d'un emplacement d'exception dans Fuveau (13710), cette maison de 4 pièces de 90 m². Son intérieur propose trois chambres, une cuisine et une salle de bains.
Le terrain du bien est de 340 m².
Il s'agit d'une maison de 2 niveaux. Elle est neuve à construire.
La maison se situe dans un secteur recherché.
Son prix de vente est de 399 000 €.
.
Annonce proposée par un Agent Commercial Partenaire.
Référence : EM-0029-0_1
Terrain proposé par un partenaire foncier selon disponibilités et autorisation de publicité au prix de 225 000 €. Hors droit d'enregistrement et frais de notaire. Maison proposée, avec un contrat de construction de maison individuelle, dans le cadre de la loi du 19/12/1990, au prix de 174 000 € (Hors branchements et raccordements, papiers peints, peintures, revêtement de sol dans les chambres, qui sont chiffrés dans les travaux qui restent à charge du client. Tarif modifiable sans préavis). Étiquette énergie : A. Différents modèles disponibles pour ce terrain. Assurances et garanties du constructeur comprises (RC professionnelle, décennale, dommage ouvrage).

Les informations sur les risques auxquels ce bien est exposé sont disponibles sur le site Géorisques : www.georisques.gouv.fr


Prix
  • Prix total : 399 000 €
  • Prix du modèle de maison : 174 000 €
  • Prix du terrain : 225 000 €

Terrain
  • Surface : 340 m²

Maison
  • Surface : 90 m²
  • Pièces : 4
  • Chambres : 3

  • Être rappelé par un conseiller
  • Demander plus d’infos
  • Demande d'information
Fuveau (13710)

Programmes à proximité

PROCHAINEMENT TRETS BRS
PROCHAINEMENT TRETS BRS
Trets (13530)

Appartements de 2 à 4 pièces
Livraison 2ème trimestre 2028

Le Montana
Le Montana
Trets (13530)

Appartements de 2 à 4 pièces
Livraison 3ème trimestre 2025

Les Bastides de Célony
Les Bastides de Célony
Aix-en-Provence (13100)

Appartements de 3 à 4 pièces
Livraison 2ème trimestre 2025

Harmonie
Harmonie
Aix-en-Provence (13100)

Appartements de 2 à 5 pièces
Livraison 2ème trimestre 2026

Domaine Saint Marc
Domaine Saint Marc
Aix-en-Provence (13100)

Appartements de 3 à 4 pièces
Livraison 2ème trimestre 2025

MOSAÏK
MOSAÏK
Aix-en-Provence (13090)

Appartement de 4 pièces
Livraison 4ème trimestre 2026

Contacter MAISONS DE MANON pour recevoir plus d'informations

Remplissez le formulaire ci-dessous, vos informations sont transmises directement au constructeur qui vous contactera par email ou par téléphone afin de traiter votre demande. En savoir plus.

Voir tous nos programmes immobiliers neufs à Fuveau