Maison neuve, 88 m² - Fréjus (83600)

399 000 €
Fréjus (83600)

Proposée par MAISONS FRANCE CONFORT – 3 pièces - 3 chambres - terrain 500 m²

MAISONS FRANCE CONFORT
MAISONS FRANCE CONFORT
(244 avis)
  • Demande d'information
MAISON À CONSTRUIRE : ceci est une annonce d'une maison neuve à construire.
Maisons France Confort vous propose la réalisation de ce modèle à l'esprit design qui vous offrira de belles ouvertures sur la partie SUD grâce à de grandes baies vitrées, et s'adapte parfaitement à tous type de terrain. Facile à agencer et très fonctionnelle, elle vous permettra d'exprimer librement votre personnalité au travers du plan (personnalisable et modifiable, se décline dans toutes les surfaces habitables). Contactez Alice GELOSA - Maisons France Confort Trans en Provence au 06 28 31 68 00 pour plus de renseignements.
Référence : AG2393954_1
Terrain proposé par un partenaire foncier selon disponibilités et autorisation de publicité au prix de 219 000 €. Hors droit d'enregistrement et frais de notaire. Terrain + Maison proposés au prix de 180 000 € (Hors branchements et raccordements, papiers peints, peintures, revêtement de sol dans les chambres. Tarif modifiable sans préavis). Etiquette énergie : A. Différents modèles disponibles pour ce terrain. Assurances et garanties du constructeur (RC professionnelle, décennale, dommage ouvrage, garantie de remboursement de l'acompte, livraison à prix et délai convenu) : https://www.maisons-france-confort.fr/mentions-legales/. HEXAOM Services est enregistré auprès de l'ORIAS en tant que Courtier en financement, Niveau 1, sous le numéro 14001345.

Les informations sur les risques auxquels ce bien est exposé sont disponibles sur le site Géorisques : www.georisques.gouv.fr


Prix
  • Prix total : 399 000 €
  • Prix du modèle de maison : 180 000 €
  • Prix du terrain : 219 000 €

Terrain
  • Surface : 500 m²

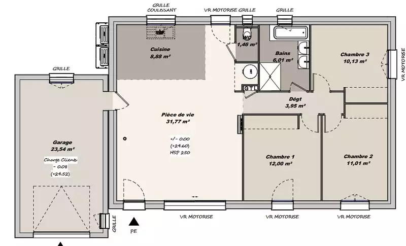
Maison
  • Surface : 88 m²
  • Pièces : 3
  • Chambres : 3
  • Garage : 1

  • Être rappelé par un conseiller
  • Demander plus d’infos
  • Demande d'information
Fréjus (83600)

Programmes à proximité

Investissez en nue-propriété
Investissez en nue-propriété
Fréjus (83600)

Appartement de 2 pièces
Livraison 3ème trimestre 2027

DOMAINE ROSEA APPARTEMENTS
DOMAINE ROSEA APPARTEMENTS
Fréjus (83600)

Appartements de 2 à 3 pièces
Livraison 4ème trimestre 2027

T4 TERRASSE FREJUS
T4 TERRASSE FREJUS
Fréjus (83600)

Appartement de 4 pièces
Livraison 1er trimestre 2026

DOLCE MIA
DOLCE MIA
Fréjus (83600)

Appartements de 2 à 3 pièces
Livraison 1er trimestre 2026

CELEST
CELEST
Fréjus (83600)

Appartements de 2 à 3 pièces
Livraison 4ème trimestre 2026

Marina B
Marina B
Fréjus (83600)

Appartements de 2 à 4 pièces
Livraison 2ème trimestre 2028

Contacter MAISONS FRANCE CONFORT pour recevoir plus d'informations

Remplissez le formulaire ci-dessous, vos informations sont transmises directement au constructeur qui vous contactera par email ou par téléphone afin de traiter votre demande. En savoir plus.

Voir tous nos programmes immobiliers neufs à Fréjus