Maison neuve, 90 m² - Fréjus (83600)

475 000 €
Fréjus (83600)

Proposée par MAISONS FRANCE CONFORT – 4 pièces - 3 chambres - terrain 392 m²

MAISONS FRANCE CONFORT
MAISONS FRANCE CONFORT
(101 avis)
  • Demande d'information
MAISON À CONSTRUIRE : ceci est une annonce d'une maison neuve à construire.
Maisons France Confort vous offre l'opportunité de faire bâtir votre villa à Fréjus
IDÉALEMENT SITUÉ - Dans lotissement - Emplacement et environnement recherché, autoroute à proximité!
Fréjus est située à mi-distance entre Cannes et Saint-Tropez, au coeur de la Côte d'Azur. Implantée sur un contrefort de grès du massif de l'Estérel, dominant les vallées de l'Argens et du Reyran, Fréjus présente l'aspect d'une petite ville provençale dont les nouveaux quartiers s'étendent jusqu'à la mer.
Le plus : Accessibilité optimale avec la gare de péage de l'A8 à 2min, permettant de rejoindre Cannes, Nice et Toulon en moins d'1h. Le centre-ville de Fréjus est accessible en 10min, les plages sont à 15min, et la gare SNCF se trouve à proximité. Les commodités sont nombreuses: crèches, écoles primaires et collèges dans un rayon de 5 km, commerces, supermarchés, pharmacies, centres médicaux et hôpital intercommunal à moins de 15min
Projet maison proposé :
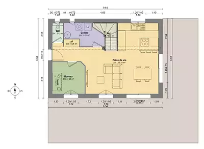
Villa à étage de 95m2
Comprenant jolie pièce de vie, 3 chambres dont une suite parentale
Le tout sur terrain de 392m2
Le plus : Peu d'entretien extérieur
(prix proposé hors frais de notaire)
Prenez contact avec votre chargée de projet Amélie VAN BRABANT au O62861162O pour obtenir de plus amples informations sur ce terrain et sur les modalités de vente. Maisons France Confort est là pour vous accompagner dans toutes vos démarches.
Référence : AVB2362375_1
Terrain proposé par un partenaire foncier selon disponibilités et autorisation de publicité au prix de 255 000 €. Hors droit d'enregistrement et frais de notaire. Terrain + Maison proposés au prix de 220 000 € (Hors branchements et raccordements, papiers peints, peintures, revêtement de sol dans les chambres. Tarif modifiable sans préavis). Etiquette énergie : A. Différents modèles disponibles pour ce terrain. Assurances et garanties du constructeur (RC professionnelle, décennale, dommage ouvrage, garantie de remboursement de l'acompte, livraison à prix et délai convenu) : https://www.maisons-france-confort.fr/mentions-legales/. HEXAOM Services est enregistré auprès de l'ORIAS en tant que Courtier en financement, Niveau 1, sous le numéro 14001345.

Les informations sur les risques auxquels ce bien est exposé sont disponibles sur le site Géorisques : www.georisques.gouv.fr


Prix
  • Prix total : 475 000 €
  • Prix du modèle de maison : 220 000 €
  • Prix du terrain : 255 000 €

Terrain
  • Surface : 392 m²

Maison
  • Surface : 90 m²
  • Pièces : 4
  • Chambres : 3

  • Être rappelé par un conseiller
  • Demander plus d’infos
  • Demande d'information
Fréjus (83600)

Programmes à proximité

Investissez en nue-propriété
Investissez en nue-propriété
Fréjus (83600)

Appartement de 2 pièces
Livraison 3ème trimestre 2027

DOMAINE ROSEA APPARTEMENTS
DOMAINE ROSEA APPARTEMENTS
Fréjus (83600)

Appartements de 2 à 3 pièces
Livraison 4ème trimestre 2027

T4 TERRASSE FREJUS
T4 TERRASSE FREJUS
Fréjus (83600)

Appartement de 4 pièces
Livraison 1er trimestre 2026

DOLCE MIA
DOLCE MIA
Fréjus (83600)

Appartements de 2 à 3 pièces
Livraison 1er trimestre 2026

CELEST
CELEST
Fréjus (83600)

Appartements de 2 à 3 pièces
Livraison 4ème trimestre 2026

Marina B
Marina B
Fréjus (83600)

Appartements de 2 à 4 pièces
Livraison 2ème trimestre 2028

Contacter MAISONS FRANCE CONFORT pour recevoir plus d'informations

Remplissez le formulaire ci-dessous, vos informations sont transmises directement au constructeur qui vous contactera par email ou par téléphone afin de traiter votre demande. En savoir plus.

Voir tous nos programmes immobiliers neufs à Fréjus