Maison neuve, 98 m² - Fréjus (83600)

419 000 €
Fréjus (83600)

Proposée par MAISONS FRANCE CONFORT – 5 pièces - 4 chambres - terrain 500 m²

MAISONS FRANCE CONFORT
MAISONS FRANCE CONFORT
(241 avis)
  • Demande d'information
MAISON À CONSTRUIRE : ceci est une annonce d'une maison neuve à construire.
Projet de construction à Fréjus
Très belle villa familiale neuve sur un terrain de 499m² idéalement situé à proximité des commodités et des axes routiers.
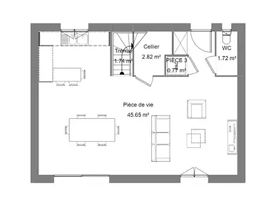
Cette villa contemporaine se compose d'une grande pièce de vie de 45m² avec une cuisine ouverte, un cellier, 4 chambres, une salle de bains et de nombreux espaces de rangements.
Une maison confortable et très lumineuse avec de belles prestations : climatisation sur l'ensemble de la maison, volets roulants électriques et un pack domotique. Possibilité d'y ajouter un garage si vous le souhaitez.
Son prix clefs en mains 419 000 euros incluant la villa, le terrain, ainsi que le coût des raccordements.
.
Maisons France Confort entreprise familiale fondée en 1919, Constructeur de maisons individuelles leader en France.
Référence : VC2271343_3
Terrain proposé par un partenaire foncier selon disponibilités et autorisation de publicité au prix de 219 000 €. Hors droit d'enregistrement et frais de notaire. Maison proposée, avec un contrat de construction de maison individuelle, dans le cadre de la loi du 19/12/1990, au prix de 200 000 € (Hors branchements et raccordements, papiers peints, peintures, revêtement de sol dans les chambres, qui sont chiffrés dans les travaux qui restent à charge du client. Tarif modifiable sans préavis). Étiquette énergie : A. Différents modèles disponibles pour ce terrain. Assurances et garanties du constructeur comprises (RC professionnelle, décennale, dommage ouvrage).

Les informations sur les risques auxquels ce bien est exposé sont disponibles sur le site Géorisques : www.georisques.gouv.fr


Prix
  • Prix total : 419 000 €
  • Prix du modèle de maison : 200 000 €
  • Prix du terrain : 219 000 €

Terrain
  • Surface : 500 m²

Maison
  • Surface : 98 m²
  • Pièces : 5
  • Chambres : 4
  • Garage : 1

  • Être rappelé par un conseiller
  • Demander plus d’infos
  • Demande d'information
Fréjus (83600)

Programmes à proximité

CELEST
CELEST
Fréjus (83600)

Appartements de 2 à 3 pièces
Livraison 4ème trimestre 2026

DOMAINE ROSEA APPARTEMENTS
DOMAINE ROSEA APPARTEMENTS
Fréjus (83600)

Appartements de 2 à 3 pièces
Livraison 4ème trimestre 2027

T4 TERRASSE FREJUS
T4 TERRASSE FREJUS
Fréjus (83600)

Appartement de 4 pièces
Livraison 1er trimestre 2026

Dolce Mia
Dolce Mia
Fréjus (83600)

Appartements de 2 à 3 pièces
Livraison 1er trimestre 2026

Anna
Anna
Fréjus (83600)

Appartements de 2 à 4 pièces
Livraison 4ème trimestre 2027

Marina B
Marina B
Fréjus (83600)

Appartements de 2 à 4 pièces
Livraison 2ème trimestre 2028

Contacter MAISONS FRANCE CONFORT pour recevoir plus d'informations

Remplissez le formulaire ci-dessous, vos informations sont transmises directement au constructeur qui vous contactera par email ou par téléphone afin de traiter votre demande. En savoir plus.

Voir tous nos programmes immobiliers neufs à Fréjus