Maison neuve, 95 m² - Fréjus (83600)

490 000 €
Fréjus (83600)

Proposée par MAISONS DE MANON – 4 pièces - 3 chambres - terrain 404 m²

MAISONS DE MANON
MAISONS DE MANON
  • Demande d'information
MAISON À CONSTRUIRE : ceci est une annonce d'une maison neuve à construire.
À découvrir sans tarder, ce nouveau programme de terrains à bâtir idéalement situé à la sortie de Fréjus, dans le quartier recherché de Sainte-Brigitte. Les parcelles offrent un cadre de vie calme et verdoyant, à seulement 10 minutes du centre-ville et 15 minutes des plages.
Nous vous proposons ici un projet de construction complet, associant confort moderne et charme provençal :
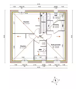
Maison de 3 chambres, dont une suite parentale avec salle d'eau et dressing privatifs
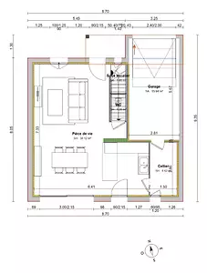
Belle pièce de vie ouverte et lumineuse, donnant sur un jardin plein sud
Toiture 4 pans avec génoises, tuiles canal
Menuiseries anthracites et volets roulants motorisés, pilotables à distance
Ce modèle allie esthétique, fonctionnalité et performance énergétique, dans le respect du règlement du lotissement.
D'autres projets personnalisables sur mesure peuvent être étudiés selon vos envies et vos besoins.
Renseignements :
Yannick POINCLOUX - Maisons de Manon, agence de Sainte-Maxime
O6 5O 78 O5 19
En collaboration avec notre partenaire foncier et sous réserve de disponibilité.
Ce bien ne vous convient pas ? Nous vous accompagnons aussi dans la recherche de votre terrain.
Annonce proposée par un Agent Commercial Partenaire.
Référence : YP2323277_1
Terrain proposé par un partenaire foncier selon disponibilités et autorisation de publicité au prix de 253 000 €. Hors droit d'enregistrement et frais de notaire. Maison proposée, avec un contrat de construction de maison individuelle, dans le cadre de la loi du 19/12/1990, au prix de 237 000 € (Hors branchements et raccordements, papiers peints, peintures, revêtement de sol dans les chambres, qui sont chiffrés dans les travaux qui restent à charge du client. Tarif modifiable sans préavis). Étiquette énergie : A. Différents modèles disponibles pour ce terrain. Assurances et garanties du constructeur comprises (RC professionnelle, décennale, dommage ouvrage).

Les informations sur les risques auxquels ce bien est exposé sont disponibles sur le site Géorisques : www.georisques.gouv.fr


Prix
  • Prix total : 490 000 €
  • Prix du modèle de maison : 237 000 €
  • Prix du terrain : 253 000 €

Terrain
  • Surface : 404 m²

Maison
  • Surface : 95 m²
  • Pièces : 4
  • Chambres : 3
  • Garage : 1

  • Être rappelé par un conseiller
  • Demander plus d’infos
  • Demande d'information
Fréjus (83600)

Programmes à proximité

Dolce Mia
Dolce Mia
Fréjus (83600)

Appartements de 2 à 3 pièces
Livraison 1er trimestre 2026

Investissez en nue-propriété
Investissez en nue-propriété
Fréjus (83600)

Appartements de 2 pièces
Livraison 3ème trimestre 2027

DOMAINE ROSEA APPARTEMENTS
DOMAINE ROSEA APPARTEMENTS
Fréjus (83600)

Appartements de 2 à 3 pièces
Livraison 4ème trimestre 2027

CELEST
CELEST
Fréjus (83600)

Appartements de 2 à 3 pièces
Livraison 4ème trimestre 2026

T4 TERRASSE FREJUS
T4 TERRASSE FREJUS
Fréjus (83600)

Appartement de 4 pièces
Livraison 1er trimestre 2026

Anna
Anna
Fréjus (83600)

Appartements de 2 à 4 pièces
Livraison 4ème trimestre 2027

Contacter MAISONS DE MANON pour recevoir plus d'informations

Remplissez le formulaire ci-dessous, vos informations sont transmises directement au constructeur qui vous contactera par email ou par téléphone afin de traiter votre demande. En savoir plus.

Voir tous nos programmes immobiliers neufs à Fréjus