Maison neuve, 100 m² - Fontvieille (13990)

450 000 €
Fontvieille (13990)

Proposée par AZUR & CONSTRUCTIONS – 4 pièces - 3 chambres - terrain 600 m²

AZUR & CONSTRUCTIONS
AZUR & CONSTRUCTIONS
  • Demande d'information
MAISON À CONSTRUIRE : ceci est une annonce d'une maison neuve à construire.
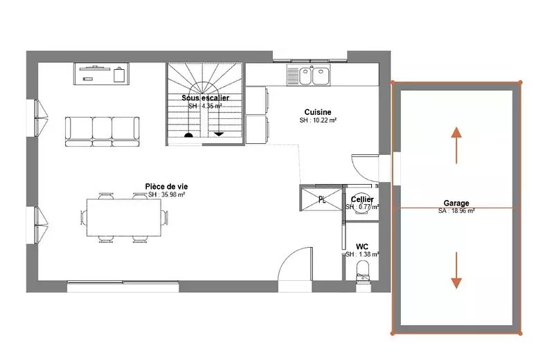
VENTE : maison de 4 pièces (100 m²) à Fontvieille
Emplacement privilégié - À Fontvieille (13990), maison neuve en vente de 4 pièces, 2 niveaux, 100 m² sur 600 m² de terrain. Elle compte trois chambres, une cuisine et une salle de bains. Vue sur un jardin.
À dix minutes : gare (Arles), École Élémentaire Yvan Audouard, bassin de natation, boulangeries, commerces, supermarché, supérette et bureau de poste. Marché Allée des Pins hebdomadaire. Nationales N113 et N572 accessibles à 10 km. Mer Méditerranée à 17 km. Avignon à 26 km.
Cette maison de 4 pièces est proposée à l'achat pour 450 000 €.
Prenez contact avec notre agence (ANGELI Anthony : 06-18-28-79-40) pour obtenir de plus amples renseignements sur la maison ou sur les modalités de vente. Concrétisez vos projets immobiliers avec Azur & Constructions Cabriès.
Terrain vu avec notre partenaire foncier, Le prix ne comporte pas les frais de notaire ni d'éventuelles adaptations au sol.
Référence : AA2316295_1
Terrain proposé par un partenaire foncier selon disponibilités et autorisation de publicité au prix de €. Hors droit d'enregistrement et frais de notaire. Terrain + Maison proposés au prix de 450 000 € (Hors branchements et raccordements, papiers peints, peintures, revêtement de sol dans les chambres. Tarif modifiable sans préavis). Etiquette énergie : A. Différents modèles disponibles pour ce terrain. Assurances et garanties du constructeur (RC professionnelle, décennale, dommage ouvrage, garantie de remboursement de l'acompte, livraison à prix et délai convenu) : https://www.azur-et-constructions.com/mentions-legales/.

Les informations sur les risques auxquels ce bien est exposé sont disponibles sur le site Géorisques : www.georisques.gouv.fr


Prix
  • Prix total : 450 000 €
  • Prix du modèle de maison : N.C.
  • Prix du terrain : N.C.

Terrain
  • Surface : 600 m²

Maison
  • Surface : 100 m²
  • Pièces : 4
  • Chambres : 3
  • Garage : 1

  • Être rappelé par un conseiller
  • Demander plus d’infos
  • Demande d'information
Fontvieille (13990)

Programmes à proximité

Les Rives du Jonquet
Les Rives du Jonquet
Arles (13200)

Appartements de 2 à 3 pièces
Livraison 4ème trimestre 2026

Le Patio des Berges
Le Patio des Berges
Beaucaire (30300)

Appartements de 2 à 5 pièces
Livraison 2ème trimestre 2028

ESPRIT ALPILLES
ESPRIT ALPILLES
Saint-Rémy-de-Provence (13210)

Appartements de 2 à 4 pièces et maison de 4 pièces
Livraison 1er trimestre 2027

En travaux ! Derniers 3 pièces et maisons 3 chambres avec jardin privatif et garage
En travaux ! Derniers 3 pièces et maisons 3 chambres avec jardin privatif et garage
Saint-Martin-de-Crau (13310)

Appartements de 3 pièces et maisons de 4 pièces
Livraison 3ème trimestre 2026

Le Canotier
Le Canotier
Châteaurenard (13160)

Appartements de 2 à 4 pièces
Livraison 3ème trimestre 2026

CITY LIFE
CITY LIFE
Avignon (84000)

Appartement de 2 pièces

Contacter AZUR & CONSTRUCTIONS pour recevoir plus d'informations

Remplissez le formulaire ci-dessous, vos informations sont transmises directement au constructeur qui vous contactera par email ou par téléphone afin de traiter votre demande. En savoir plus.

Voir tous nos programmes immobiliers neufs à Fontvieille