Maison neuve, 89 m² - Eteimbes (68210)
232 150 €
Eteimbes (68210)
Proposée par BATILOR AGENCE D’ EPINAL (88000) – VOSGES – RÉGION – 4 pièces - 3 chambres - terrain 686 m²
|
|
| Batilor Agence d’ Epinal (88000) – Vosges – Région |
- Demande d'information
- Prendre rendez-vous
MAISON À CONSTRUIRE : ceci est une annonce d'une maison neuve à construire.
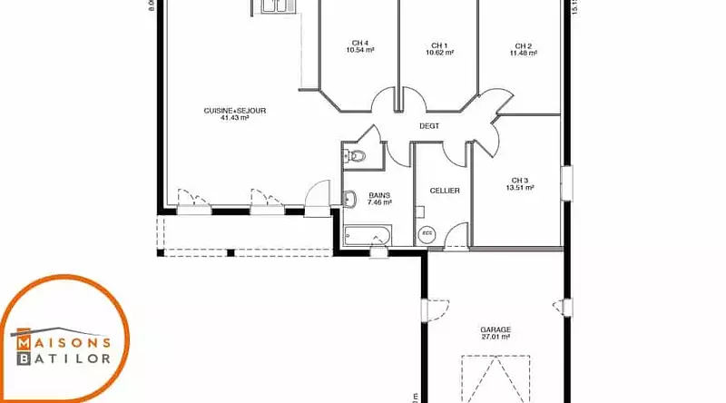
Nous vous proposons cette maison neuve, baptisée la Belmontoise, un modèle de maison en L qui combine élégance et fonctionnalité sur une surface de 89 m². Conçue pour répondre aux attentes des familles modernes, elle dispose de 3 chambres confortables et offre un total de 4 pièces, optimisant ainsi chaque espace pour votre confort et bien-être.
La Belmontoise se distingue par son architecture en L, permettant une séparation naturelle des espaces de vie et offrant une intimité accrue à ses résidents. Son garage intégré, non seulement pratique pour votre véhicule, s'inscrit harmonieusement dans le design global de la maison, tout en proposant un espace de rangement supplémentaire ou une potentielle extension de l'habitat.
Construite dans le respect des normes RE2020, cette maison basse consommation est un choix judicieux pour ceux qui cherchent à réduire leur empreinte écologique tout en bénéficiant d'un confort optimal. La Belmontoise est synonyme de durabilité et d'économies d'énergie, garantissant une qualité de vie inégalée.
Parmi les options les plus plébiscitées, vous trouverez un crépis coloré qui apporte une touche d'élégance et de personnalité à votre façade, des menuiseries en aluminium pour une isolation et une sécurité renforcées, ainsi que la possibilité de choisir entre un toit à 2 ou 4 pans, selon vos préférences esthétiques et pratiques.
La Belmontoise est plus qu'une maison ; c'est un foyer pensé pour s'adapter à diverses configurations de terrains, offrant ainsi une flexibilité rare. Que vous disposiez d'un terrain en lotissement ou d'une parcelle plus atypique, ce modèle saura répondre à vos attentes, tout en vous offrant un rapport qualité-prix séduisant.
Opter pour la Belmontoise, c'est choisir une maison qui évolue avec vous, offrant des possibilités d'agencements multiples pour répondre aux besoins changeants de votre famille. Découvrez le confort d'une maison neuve, basse consommation et conforme aux dernières normes environnementales, pou
Référence : 23347
Les informations sur les risques auxquels ce bien est exposé sont disponibles sur le site Géorisques : www.georisques.gouv.fr
La Belmontoise se distingue par son architecture en L, permettant une séparation naturelle des espaces de vie et offrant une intimité accrue à ses résidents. Son garage intégré, non seulement pratique pour votre véhicule, s'inscrit harmonieusement dans le design global de la maison, tout en proposant un espace de rangement supplémentaire ou une potentielle extension de l'habitat.
Construite dans le respect des normes RE2020, cette maison basse consommation est un choix judicieux pour ceux qui cherchent à réduire leur empreinte écologique tout en bénéficiant d'un confort optimal. La Belmontoise est synonyme de durabilité et d'économies d'énergie, garantissant une qualité de vie inégalée.
Parmi les options les plus plébiscitées, vous trouverez un crépis coloré qui apporte une touche d'élégance et de personnalité à votre façade, des menuiseries en aluminium pour une isolation et une sécurité renforcées, ainsi que la possibilité de choisir entre un toit à 2 ou 4 pans, selon vos préférences esthétiques et pratiques.
La Belmontoise est plus qu'une maison ; c'est un foyer pensé pour s'adapter à diverses configurations de terrains, offrant ainsi une flexibilité rare. Que vous disposiez d'un terrain en lotissement ou d'une parcelle plus atypique, ce modèle saura répondre à vos attentes, tout en vous offrant un rapport qualité-prix séduisant.
Opter pour la Belmontoise, c'est choisir une maison qui évolue avec vous, offrant des possibilités d'agencements multiples pour répondre aux besoins changeants de votre famille. Découvrez le confort d'une maison neuve, basse consommation et conforme aux dernières normes environnementales, pou
Référence : 23347
Les informations sur les risques auxquels ce bien est exposé sont disponibles sur le site Géorisques : www.georisques.gouv.fr
- Prix
-
- Prix total : 232 150 €
- Prix du modèle de maison : 172 150 €
- Prix du terrain : 60 000 €
- Terrain
-
- Surface : 686 m²
- Maison
-
- Surface : 89 m²
- Pièces : 4
- Chambres : 3
- Être rappelé par un conseiller
- Demander plus d’infos
- Demande d'information
Eteimbes (68210)
Maisons à proximité
Maison neuve, 135 m²
Eteimbes (68210)
Eteimbes (68210)
Maison de 5 pièces
Maison neuve, 109 m²
Eteimbes (68210)
Eteimbes (68210)
Maison de 5 pièces
Maison neuve, 109 m²
Eteimbes (68210)
Eteimbes (68210)
Maison de 5 pièces
Maison neuve, 106 m²
Eteimbes (68210)
Eteimbes (68210)
Maison de 4 pièces
Maison neuve, 135 m²
Soppe-le-Bas (68780)
Soppe-le-Bas (68780)
Maison de 5 pièces
Maison neuve, 83 m²
Bréchaumont (68210)
Bréchaumont (68210)
Maison de 4 pièces
Programmes à proximité
VALERIANE
Galfingue (68990)
Galfingue (68990)
Appartements de 2 à 3 pièces
Le Clos des Arts
Belfort (90000)
Belfort (90000)
Appartements de 2 à 4 pièces
LES BELLES VUES
Altkirch (68130)
Altkirch (68130)
Appartements de 2 à 4 pièces
L'ASTRÉE
Zillisheim (68720)
Zillisheim (68720)
Appartements de 2 à 4 pièces
Livraison 3ème trimestre 2025
Attique ou Jardin Wittelsheim
Wittelsheim (68310)
Wittelsheim (68310)
Appartements de 2 à 4 pièces
Livraison 4ème trimestre 2026
LE VERGER DE L'ALLAINE
Grandvillars (90600)
Grandvillars (90600)
Appartements de 2 à 4 pièces
Livraison 2ème semestre 2027
Contacter BATILOR AGENCE D’ EPINAL (88000) – VOSGES – RÉGION pour recevoir plus d'informations
Remplissez le formulaire ci-dessous, vos informations sont transmises directement au constructeur qui vous contactera par email ou par téléphone afin de traiter votre demande. En savoir plus.