Maison neuve, 135 m² - Gildwiller (68210)
371 250 €
Gildwiller (68210)
Proposée par BATILOR AGENCE D’ EPINAL (88000) – VOSGES – RÉGION – 5 pièces - 4 chambres - terrain 763 m²
|
|
| Batilor Agence d’ Epinal (88000) – Vosges – Région |
- Demande d'information
- Prendre rendez-vous
MAISON À CONSTRUIRE : ceci est une annonce d'une maison neuve à construire.
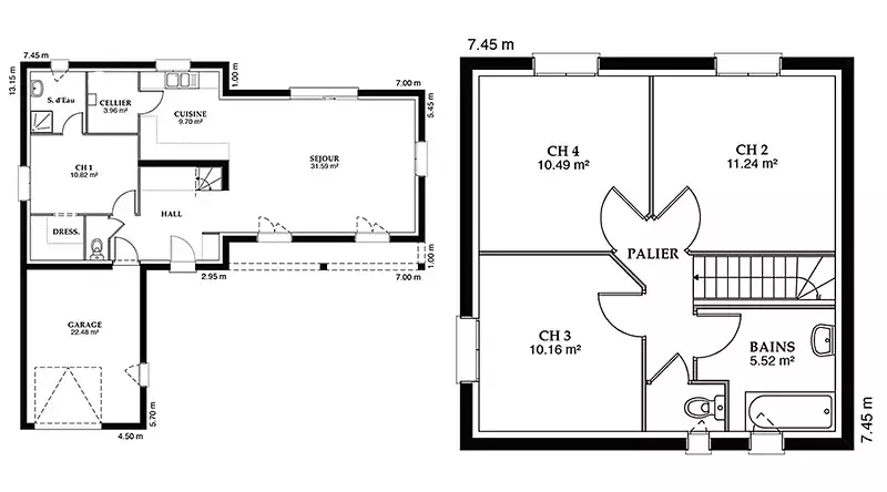
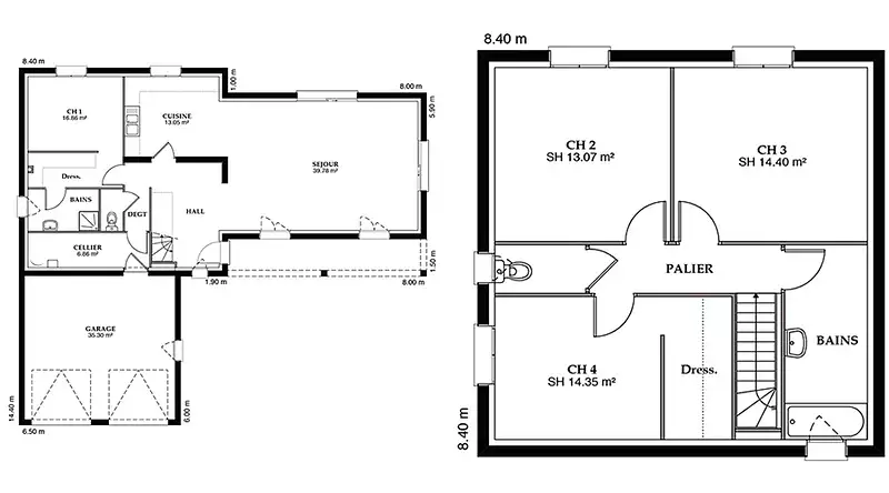
Nous vous proposons cette maison neuve, baptisée Lubéronne, qui incarne l'élégance et le confort moderne tout en s'inspirant du charme intemporel provençal. Avec une surface généreuse de 135 m², cette demeure est conçue pour répondre aux attentes des plus exigeants, alliant fonctionnalité et esthétique.
La Lubéronne se distingue par sa tour caractéristique, offrant une avancée architecturale remarquable, et sa galerie, qui invite à la détente et à la contemplation des paysages environnants. Le double garage spacieux assure un confort pratique au quotidien, répondant ainsi aux besoins de stationnement et de rangement.
Cette maison est composée de 4 chambres confortables, regroupées dans la tour pour préserver l'intimité de chacun, et de 4 pièces lumineuses, dont une partie jour significative qui baigne l'espace de vie en lumière naturelle, créant une atmosphère chaleureuse et accueillante.
Les options les plus plébiscitées, telles que les menuiseries en aluminium, la domotique pour une maison connectée et un crépis coloré, sont disponibles pour personnaliser votre maison selon vos goûts et vos besoins. Ces éléments ajoutent une touche de modernité et de confort, faisant de la Lubéronne un lieu de vie unique et personnalisé.
Construite dans le respect des normes de la RE2020, cette maison neuve est synonyme de basse consommation, garantissant ainsi une efficacité énergétique optimale et un respect de l'environnement. Ce choix responsable contribue à réduire les dépenses énergétiques tout en offrant un cadre de vie sain et agréable.
La Lubéronne, avec son style provençal revisité et ses prestations de qualité, est proposée en 3 plans différents, permettant de s'adapter à vos projets de vie et à vos envies. Faites le choix d'une maison qui allie tradition et innovation, pour un quotidien empreint de bien-être.
Référence : 23367
Les informations sur les risques auxquels ce bien est exposé sont disponibles sur le site Géorisques : www.georisques.gouv.fr
La Lubéronne se distingue par sa tour caractéristique, offrant une avancée architecturale remarquable, et sa galerie, qui invite à la détente et à la contemplation des paysages environnants. Le double garage spacieux assure un confort pratique au quotidien, répondant ainsi aux besoins de stationnement et de rangement.
Cette maison est composée de 4 chambres confortables, regroupées dans la tour pour préserver l'intimité de chacun, et de 4 pièces lumineuses, dont une partie jour significative qui baigne l'espace de vie en lumière naturelle, créant une atmosphère chaleureuse et accueillante.
Les options les plus plébiscitées, telles que les menuiseries en aluminium, la domotique pour une maison connectée et un crépis coloré, sont disponibles pour personnaliser votre maison selon vos goûts et vos besoins. Ces éléments ajoutent une touche de modernité et de confort, faisant de la Lubéronne un lieu de vie unique et personnalisé.
Construite dans le respect des normes de la RE2020, cette maison neuve est synonyme de basse consommation, garantissant ainsi une efficacité énergétique optimale et un respect de l'environnement. Ce choix responsable contribue à réduire les dépenses énergétiques tout en offrant un cadre de vie sain et agréable.
La Lubéronne, avec son style provençal revisité et ses prestations de qualité, est proposée en 3 plans différents, permettant de s'adapter à vos projets de vie et à vos envies. Faites le choix d'une maison qui allie tradition et innovation, pour un quotidien empreint de bien-être.
Référence : 23367
Les informations sur les risques auxquels ce bien est exposé sont disponibles sur le site Géorisques : www.georisques.gouv.fr
- Prix
-
- Prix total : 371 250 €
- Prix du modèle de maison : 273 250 €
- Prix du terrain : 98 000 €
- Terrain
-
- Surface : 763 m²
- Maison
-
- Surface : 135 m²
- Pièces : 5
- Chambres : 4
- Être rappelé par un conseiller
- Demander plus d’infos
- Demande d'information
Gildwiller (68210)
Maisons à proximité
Maison neuve, 131 m²
Balschwiller (68210)
Balschwiller (68210)
Maison de 6 pièces
Maison neuve, 117 m²
Balschwiller (68210)
Balschwiller (68210)
Maison de 5 pièces
Maison neuve, 115 m²
Balschwiller (68210)
Balschwiller (68210)
Maison de 5 pièces
Maison neuve, 110 m²
Burnhaupt-le-Bas (68520)
Burnhaupt-le-Bas (68520)
Maison de 4 pièces
Maison neuve, 135 m²
Soppe-le-Bas (68780)
Soppe-le-Bas (68780)
Maison de 5 pièces
Maison neuve, 80 m²
Traubach-le-Bas (68210)
Traubach-le-Bas (68210)
Maison de 4 pièces
Programmes à proximité
VALERIANE
Galfingue (68990)
Galfingue (68990)
Appartements de 2 à 3 pièces
LES BELLES VUES
Altkirch (68130)
Altkirch (68130)
Appartements de 2 à 4 pièces
L'ASTRÉE
Zillisheim (68720)
Zillisheim (68720)
Appartements de 2 à 4 pièces
Livraison 3ème trimestre 2025
L'ASTRÉE
Zillisheim (68720)
Zillisheim (68720)
Appartements de 2 à 4 pièces
Livraison 3ème trimestre 2025
Villa Pégase
Pfastatt (68120)
Pfastatt (68120)
Appartements de 3 pièces
Livraison 1er trimestre 2027
Le Golden Park
Pfastatt (68120)
Pfastatt (68120)
Appartements de 2 à 3 pièces
Livraison 2ème trimestre 2026
Contacter BATILOR AGENCE D’ EPINAL (88000) – VOSGES – RÉGION pour recevoir plus d'informations
Remplissez le formulaire ci-dessous, vos informations sont transmises directement au constructeur qui vous contactera par email ou par téléphone afin de traiter votre demande. En savoir plus.