Maison neuve, 89 m² - Escurolles (03110)
191 300 €
Escurolles (03110)
Proposée par MAISON ET JARDIN – 5 pièces - 4 chambres - terrain 1 148 m²
|
|
| Maison et Jardin |
- Demande d'information
- Prendre rendez-vous
MAISON À CONSTRUIRE : ceci est une annonce d'une maison neuve à construire.
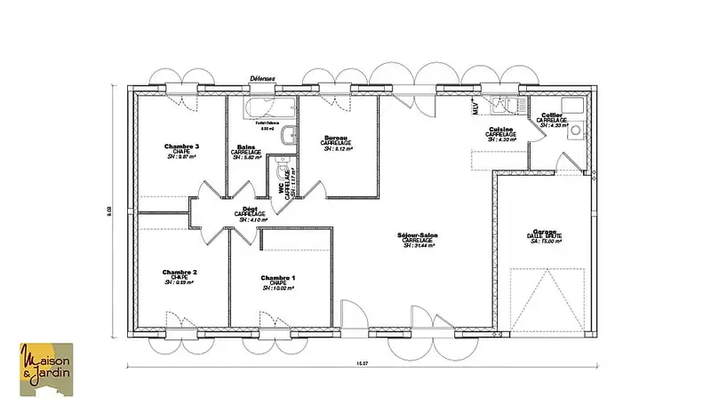
Nous vous proposons cette maison neuve, baptisée Lisa, un modèle de conception moderne et économe, parfaitement adapté à ceux qui font leur premier pas vers l'accession à la propriété ou cherchent une opportunité d'investissement locatif attrayante. Avec une surface habitable de 89 m², cette maison rectangulaire très fonctionnelle est conçue pour maximiser chaque espace disponible, offrant ainsi un cadre de vie confortable et agréable.
La Lisa se distingue par ses 4 chambres spacieuses, réparties dans un agencement intelligent qui favorise l'intimité et le bien-être de chacun. Les 4 pièces de la maison sont baignées de lumière naturelle, grâce à une conception architecturale pensée pour le confort et l'harmonie des espaces de vie.
L'un des atouts majeurs de cette maison est son garage intégré de 16 m², offrant non seulement un espace de stationnement sécurisé mais aussi une solution de rangement supplémentaire, essentielle pour une vie quotidienne organisée et sans encombrement.
Construite dans le respect des normes les plus exigeantes, la Lisa est une maison basse consommation, conforme à la réglementation environnementale RE2020. Ce critère essentiel garantit non seulement un impact réduit sur l'environnement mais aussi des économies significatives sur les factures d'énergie pour les propriétaires. C'est une habitation pensée pour l'avenir, alliant confort, durabilité et responsabilité écologique.
Parmi les options les plus plébiscitées par nos clients, la Lisa peut être personnalisée pour répondre à vos besoins spécifiques, vous permettant ainsi de créer le foyer de vos rêves, tout en bénéficiant d'un excellent rapport qualité/prix.
Que vous envisagiez cette maison comme votre premier achat immobilier ou comme un investissement locatif, la Lisa représente une opportunité exceptionnelle de posséder une maison moderne, fonctionnelle et éco-responsable. Découvrez comment la Lisa peut devenir le cadre idéal de votre vie future. Contactez-nous pour plus d'informa
Référence : 13452
Les informations sur les risques auxquels ce bien est exposé sont disponibles sur le site Géorisques : www.georisques.gouv.fr
La Lisa se distingue par ses 4 chambres spacieuses, réparties dans un agencement intelligent qui favorise l'intimité et le bien-être de chacun. Les 4 pièces de la maison sont baignées de lumière naturelle, grâce à une conception architecturale pensée pour le confort et l'harmonie des espaces de vie.
L'un des atouts majeurs de cette maison est son garage intégré de 16 m², offrant non seulement un espace de stationnement sécurisé mais aussi une solution de rangement supplémentaire, essentielle pour une vie quotidienne organisée et sans encombrement.
Construite dans le respect des normes les plus exigeantes, la Lisa est une maison basse consommation, conforme à la réglementation environnementale RE2020. Ce critère essentiel garantit non seulement un impact réduit sur l'environnement mais aussi des économies significatives sur les factures d'énergie pour les propriétaires. C'est une habitation pensée pour l'avenir, alliant confort, durabilité et responsabilité écologique.
Parmi les options les plus plébiscitées par nos clients, la Lisa peut être personnalisée pour répondre à vos besoins spécifiques, vous permettant ainsi de créer le foyer de vos rêves, tout en bénéficiant d'un excellent rapport qualité/prix.
Que vous envisagiez cette maison comme votre premier achat immobilier ou comme un investissement locatif, la Lisa représente une opportunité exceptionnelle de posséder une maison moderne, fonctionnelle et éco-responsable. Découvrez comment la Lisa peut devenir le cadre idéal de votre vie future. Contactez-nous pour plus d'informa
Référence : 13452
Les informations sur les risques auxquels ce bien est exposé sont disponibles sur le site Géorisques : www.georisques.gouv.fr
- Prix
-
- Prix total : 191 300 €
- Prix du modèle de maison : 162 600 €
- Prix du terrain : 28 700 €
- Terrain
-
- Surface : 1 148 m²
- Maison
-
- Surface : 89 m²
- Pièces : 5
- Chambres : 4
- Être rappelé par un conseiller
- Demander plus d’infos
- Demande d'information
Escurolles (03110)
Maisons à proximité
Maison neuve, 88 m²
Escurolles (03110)
Escurolles (03110)
Maison de 4 pièces
Maison neuve, 75 m²
Escurolles (03110)
Escurolles (03110)
Maison de 4 pièces
Maison neuve, 112 m²
Cognat-Lyonne (03110)
Cognat-Lyonne (03110)
Maison de 4 pièces
Maison neuve, 103 m²
Cognat-Lyonne (03110)
Cognat-Lyonne (03110)
Maison de 5 pièces
Maison neuve, 98 m²
Cognat-Lyonne (03110)
Cognat-Lyonne (03110)
Maison de 5 pièces
Maison neuve, 84 m²
Cognat-Lyonne (03110)
Cognat-Lyonne (03110)
Maison de 4 pièces
Programmes à proximité
A 10min à pied du centre-ville de Vichy
Vichy (03200)
Vichy (03200)
Appartements de 2 à 4 pièces
Livraison 4ème trimestre 2027
Contacter MAISON ET JARDIN pour recevoir plus d'informations
Remplissez le formulaire ci-dessous, vos informations sont transmises directement au constructeur qui vous contactera par email ou par téléphone afin de traiter votre demande. En savoir plus.