Maison neuve, 112 m² - Cognat-Lyonne (03110)
273 738 €
Cognat-Lyonne (03110)
Proposée par MAISON ET JARDIN – 4 pièces - 3 chambres - terrain 1 044 m²
|
|
| Maison et Jardin |
- Demande d'information
- Prendre rendez-vous
MAISON À CONSTRUIRE : ceci est une annonce d'une maison neuve à construire.
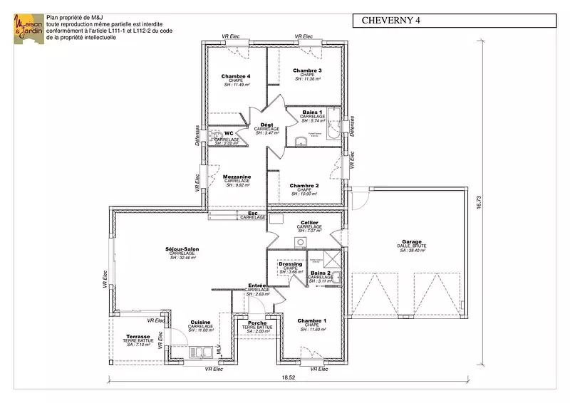
Nous vous proposons cette maison neuve, baptisée Cheverny, un modèle qui incarne l'élégance et l'originalité. Avec sa surface généreuse de 112 m², cette demeure est conçue pour répondre aux attentes des plus exigeants. Elle se distingue par sa construction robuste en parpaings, garantissant durabilité et confort au fil des saisons.
Cheverny se révèle être un véritable bijou architectural avec sa toiture multi-pans, offrant une esthétique unique qui vous permettra de vous démarquer. L'extravagance de son design extérieur est équilibrée par l'harmonie et la fonctionnalité de son intérieur. Elle dispose de 4 pièces bien agencées, dont 3 chambres spacieuses. La chambre principale bénéficie d'un dressing et d'une salle d'eau privative, promettant intimité et commodité.
L'espace de vie principal est conçu pour être un lieu de rassemblement chaleureux et accueillant, avec un vaste salon qui invite à la détente et au partage. La maison offre également des options très prisées telles qu'une mezzanine pour un coin lecture ou bureau, ainsi qu'un cellier pour un rangement optimal.
Cheverny est une maison basse consommation, scrupuleusement conforme à la norme RE2020. Cette caractéristique assure non seulement un respect de l'environnement mais également une réduction significative des dépenses énergétiques pour ses occupants. C'est une demeure pensée pour l'avenir, combinant confort moderne et responsabilité écologique.
Parmi les options les plus demandées et disponibles pour ce modèle, vous aurez la possibilité d'ajouter une terrasse pour profiter des beaux jours ainsi qu'un garage double, offrant ample espace pour vos véhicules et rangements supplémentaires.
Choisir la maison Cheverny, c'est opter pour un habitat qui sort des rangs, alliant extravagance architecturale et fonctionnalité, le tout dans le respect des normes environnementales les plus strictes. Une opportunité à saisir pour ceux qui rêvent d'une maison neuve, personnalisable et prête à accueillir de merveill
Référence : 13789
Les informations sur les risques auxquels ce bien est exposé sont disponibles sur le site Géorisques : www.georisques.gouv.fr
Cheverny se révèle être un véritable bijou architectural avec sa toiture multi-pans, offrant une esthétique unique qui vous permettra de vous démarquer. L'extravagance de son design extérieur est équilibrée par l'harmonie et la fonctionnalité de son intérieur. Elle dispose de 4 pièces bien agencées, dont 3 chambres spacieuses. La chambre principale bénéficie d'un dressing et d'une salle d'eau privative, promettant intimité et commodité.
L'espace de vie principal est conçu pour être un lieu de rassemblement chaleureux et accueillant, avec un vaste salon qui invite à la détente et au partage. La maison offre également des options très prisées telles qu'une mezzanine pour un coin lecture ou bureau, ainsi qu'un cellier pour un rangement optimal.
Cheverny est une maison basse consommation, scrupuleusement conforme à la norme RE2020. Cette caractéristique assure non seulement un respect de l'environnement mais également une réduction significative des dépenses énergétiques pour ses occupants. C'est une demeure pensée pour l'avenir, combinant confort moderne et responsabilité écologique.
Parmi les options les plus demandées et disponibles pour ce modèle, vous aurez la possibilité d'ajouter une terrasse pour profiter des beaux jours ainsi qu'un garage double, offrant ample espace pour vos véhicules et rangements supplémentaires.
Choisir la maison Cheverny, c'est opter pour un habitat qui sort des rangs, alliant extravagance architecturale et fonctionnalité, le tout dans le respect des normes environnementales les plus strictes. Une opportunité à saisir pour ceux qui rêvent d'une maison neuve, personnalisable et prête à accueillir de merveill
Référence : 13789
Les informations sur les risques auxquels ce bien est exposé sont disponibles sur le site Géorisques : www.georisques.gouv.fr
- Prix
-
- Prix total : 273 738 €
- Prix du modèle de maison : 228 838 €
- Prix du terrain : 44 900 €
- Terrain
-
- Surface : 1 044 m²
- Maison
-
- Surface : 112 m²
- Pièces : 4
- Chambres : 3
- Être rappelé par un conseiller
- Demander plus d’infos
- Demande d'information
Cognat-Lyonne (03110)
Maisons à proximité
Maison neuve, 103 m²
Cognat-Lyonne (03110)
Cognat-Lyonne (03110)
Maison de 5 pièces
Maison neuve, 98 m²
Cognat-Lyonne (03110)
Cognat-Lyonne (03110)
Maison de 5 pièces
Maison neuve, 84 m²
Cognat-Lyonne (03110)
Cognat-Lyonne (03110)
Maison de 4 pièces
Maison neuve, 89 m²
Escurolles (03110)
Escurolles (03110)
Maison de 5 pièces
Maison neuve, 88 m²
Escurolles (03110)
Escurolles (03110)
Maison de 4 pièces
Maison neuve, 75 m²
Escurolles (03110)
Escurolles (03110)
Maison de 4 pièces
Programmes à proximité
A 10min à pied du centre-ville de Vichy
Vichy (03200)
Vichy (03200)
Appartements de 2 à 4 pièces
Livraison 4ème trimestre 2027
Contacter MAISON ET JARDIN pour recevoir plus d'informations
Remplissez le formulaire ci-dessous, vos informations sont transmises directement au constructeur qui vous contactera par email ou par téléphone afin de traiter votre demande. En savoir plus.