Maison neuve, 108 m² - Delle (90100)
294 170 €
Delle (90100)
Proposée par BATILOR AGENCE DE BELFORT – 5 pièces - 4 chambres - terrain 1 042 m²
|
|
| Batilor Agence de Belfort |
- Demande d'information
- Prendre rendez-vous
MAISON À CONSTRUIRE : ceci est une annonce d'une maison neuve à construire.
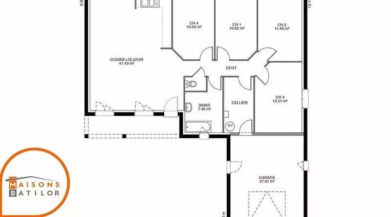
Nous vous proposons cette maison neuve, baptisée la Belmontoise, un modèle de maison qui allie élégance et fonctionnalité dans un design en L moderne. Avec une surface habitable de 108 m², cette maison est conçue pour offrir un confort optimal et un cadre de vie agréable à toute famille. Elle dispose de 4 chambres spacieuses et de 4 pièces bien agencées, permettant à chacun de trouver son espace personnel tout en favorisant les moments de convivialité.
La Belmontoise se distingue par son garage intégré et en avancée, une caractéristique pratique qui optimise l'espace de vie intérieur tout en offrant un accès facile et sécurisé à votre véhicule. La conception en L de la maison n'est pas seulement esthétique; elle permet également de délimiter naturellement les espaces extérieurs, créant ainsi un environnement intime pour vos moments de détente en plein air.
Construite dans le respect des normes RE2020, cette maison basse consommation est un choix judicieux pour les acquéreurs soucieux de l'environnement et désireux de réaliser des économies d'énergie. La Belmontoise est équipée de menuiseries en aluminium et propose, selon vos préférences, un toit à 2 ou 4 pans, ainsi qu'un crépis coloré parmi les options les plus plébiscitées par nos clients. Ces options, alliées à une isolation performante, garantissent un confort thermique et acoustique de premier ordre tout au long de l'année.
Ce modèle de maison, avec son rapport qualité-prix séduisant, offre un espace de plain-pied avantageux et modulable, idéal pour s'adapter à vos besoins et à ceux de votre famille. La Belmontoise est la promesse d'un foyer chaleureux, où chaque détail a été pensé pour répondre à vos attentes de confort, de style et de durabilité.
Choisir la Belmontoise, c'est opter pour une maison neuve, moderne et conforme aux dernières normes énergétiques, prête à accueillir votre famille dans les meilleures conditions. N'attendez plus pour faire de ce lieu votre nouveau chez-vous, un espace où chaque
Référence : 23210
Les informations sur les risques auxquels ce bien est exposé sont disponibles sur le site Géorisques : www.georisques.gouv.fr
La Belmontoise se distingue par son garage intégré et en avancée, une caractéristique pratique qui optimise l'espace de vie intérieur tout en offrant un accès facile et sécurisé à votre véhicule. La conception en L de la maison n'est pas seulement esthétique; elle permet également de délimiter naturellement les espaces extérieurs, créant ainsi un environnement intime pour vos moments de détente en plein air.
Construite dans le respect des normes RE2020, cette maison basse consommation est un choix judicieux pour les acquéreurs soucieux de l'environnement et désireux de réaliser des économies d'énergie. La Belmontoise est équipée de menuiseries en aluminium et propose, selon vos préférences, un toit à 2 ou 4 pans, ainsi qu'un crépis coloré parmi les options les plus plébiscitées par nos clients. Ces options, alliées à une isolation performante, garantissent un confort thermique et acoustique de premier ordre tout au long de l'année.
Ce modèle de maison, avec son rapport qualité-prix séduisant, offre un espace de plain-pied avantageux et modulable, idéal pour s'adapter à vos besoins et à ceux de votre famille. La Belmontoise est la promesse d'un foyer chaleureux, où chaque détail a été pensé pour répondre à vos attentes de confort, de style et de durabilité.
Choisir la Belmontoise, c'est opter pour une maison neuve, moderne et conforme aux dernières normes énergétiques, prête à accueillir votre famille dans les meilleures conditions. N'attendez plus pour faire de ce lieu votre nouveau chez-vous, un espace où chaque
Référence : 23210
Les informations sur les risques auxquels ce bien est exposé sont disponibles sur le site Géorisques : www.georisques.gouv.fr
- Prix
-
- Prix total : 294 170 €
- Prix du modèle de maison : 190 170 €
- Prix du terrain : 104 000 €
- Terrain
-
- Surface : 1 042 m²
- Maison
-
- Surface : 108 m²
- Pièces : 5
- Chambres : 4
- Être rappelé par un conseiller
- Demander plus d’infos
- Demande d'information
Delle (90100)
Maisons à proximité
Maison neuve, 91 m²
Delle (90100)
Delle (90100)
Maison de 5 pièces
Maison neuve, 91 m²
Grandvillars (90600)
Grandvillars (90600)
Maison de 4 pièces
Maison neuve, 73 m²
Allenjoie (25490)
Allenjoie (25490)
Maison de 4 pièces
Maison neuve, 71 m²
Allenjoie (25490)
Allenjoie (25490)
Maison de 3 pièces
Maison neuve, 73 m²
Etupes (25460)
Etupes (25460)
Maison de 4 pièces
Maison neuve, 73 m²
Seloncourt (25230)
Seloncourt (25230)
Maison de 3 pièces
Programmes à proximité
LE VERGER DE L'ALLAINE
Grandvillars (90600)
Grandvillars (90600)
Appartements de 2 à 4 pièces
Livraison 2ème semestre 2027
Résidence du Bois Bourgeois
Montbéliard (25200)
Montbéliard (25200)
Appartements de 2 à 4 pièces
Livraison 4ème trimestre 2027
Le Clos des Arts
Belfort (90000)
Belfort (90000)
Appartements de 2 à 4 pièces
LES BELLES VUES
Altkirch (68130)
Altkirch (68130)
Appartements de 2 à 4 pièces
La Roselle
Waldighofen (68640)
Waldighofen (68640)
Appartement de 2 pièces
Contacter BATILOR AGENCE DE BELFORT pour recevoir plus d'informations
Remplissez le formulaire ci-dessous, vos informations sont transmises directement au constructeur qui vous contactera par email ou par téléphone afin de traiter votre demande. En savoir plus.