Maison neuve, 91 m² - Grandvillars (90600)
215 650 €
Grandvillars (90600)
Proposée par BATILOR AGENCE DE BELFORT – 4 pièces - 3 chambres - terrain 500 m²
|
|
| Batilor Agence de Belfort |
- Demande d'information
- Prendre rendez-vous
MAISON À CONSTRUIRE : ceci est une annonce d'une maison neuve à construire.
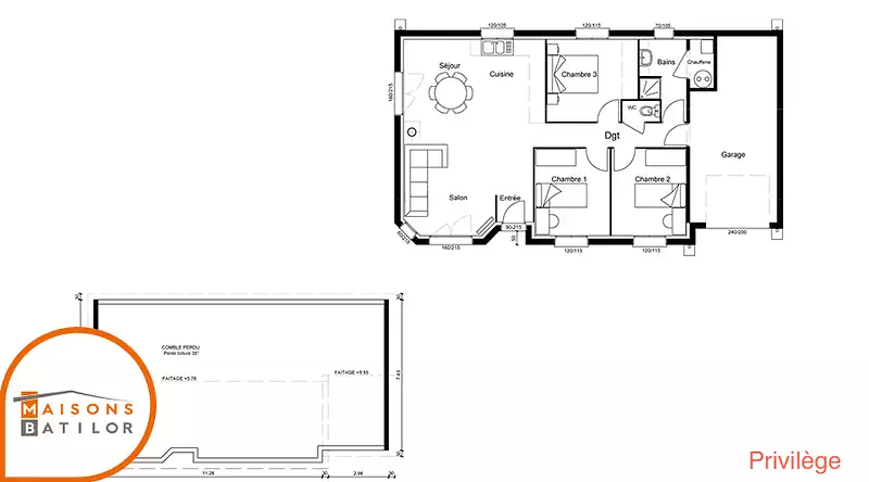
Nous vous proposons cette maison neuve, baptisée Privilège, un modèle qui incarne l'excellence et le confort au sein de notre gamme traditionnelle. Avec ses 91 m² judicieusement répartis, cette demeure est conçue pour répondre aux attentes des plus exigeants.
La Privilège se distingue par son architecture unique, avec un pan cassé en façade qui lui confère des lignes résolument design et modernes. Cette maison de 4 pièces, dont 3 chambres spacieuses, est idéale pour accueillir une famille désireuse de combiner esthétique et fonctionnalité. Le garage intégré offre non seulement un espace de stationnement sécurisé mais aussi un accès direct à l'intérieur pour plus de commodité.
Construite avec des matériaux de qualité, tels que la brique, elle promet durabilité et isolation optimale. L'une des caractéristiques les plus appréciées de ce modèle est la possibilité d'aménager les combles, offrant ainsi une flexibilité pour agrandir l'espace de vie selon les besoins de votre famille.
La Privilège est conçue dans le respect des normes de la RE2020, garantissant une maison basse consommation. Ce critère essentiel assure non seulement un confort de vie inégalé tout au long de l'année mais aussi des économies significatives sur les factures d'énergie.
Cette maison neuve représente une opportunité exceptionnelle de concrétiser votre projet immobilier avec une demeure qui allie esthétique, confort et respect de l'environnement. La Privilège, notre modèle best-seller, est la promesse d'un habitat où il fait bon vivre, pensé pour les générations futures.
Référence : 23381
Les informations sur les risques auxquels ce bien est exposé sont disponibles sur le site Géorisques : www.georisques.gouv.fr
La Privilège se distingue par son architecture unique, avec un pan cassé en façade qui lui confère des lignes résolument design et modernes. Cette maison de 4 pièces, dont 3 chambres spacieuses, est idéale pour accueillir une famille désireuse de combiner esthétique et fonctionnalité. Le garage intégré offre non seulement un espace de stationnement sécurisé mais aussi un accès direct à l'intérieur pour plus de commodité.
Construite avec des matériaux de qualité, tels que la brique, elle promet durabilité et isolation optimale. L'une des caractéristiques les plus appréciées de ce modèle est la possibilité d'aménager les combles, offrant ainsi une flexibilité pour agrandir l'espace de vie selon les besoins de votre famille.
La Privilège est conçue dans le respect des normes de la RE2020, garantissant une maison basse consommation. Ce critère essentiel assure non seulement un confort de vie inégalé tout au long de l'année mais aussi des économies significatives sur les factures d'énergie.
Cette maison neuve représente une opportunité exceptionnelle de concrétiser votre projet immobilier avec une demeure qui allie esthétique, confort et respect de l'environnement. La Privilège, notre modèle best-seller, est la promesse d'un habitat où il fait bon vivre, pensé pour les générations futures.
Référence : 23381
Les informations sur les risques auxquels ce bien est exposé sont disponibles sur le site Géorisques : www.georisques.gouv.fr
- Prix
-
- Prix total : 215 650 €
- Prix du modèle de maison : 160 650 €
- Prix du terrain : 55 000 €
- Terrain
-
- Surface : 500 m²
- Maison
-
- Surface : 91 m²
- Pièces : 4
- Chambres : 3
- Être rappelé par un conseiller
- Demander plus d’infos
- Demande d'information
Grandvillars (90600)
Maisons à proximité
Maison neuve, 89 m²
Allenjoie (25490)
Allenjoie (25490)
Maison de 4 pièces
Maison neuve, 135 m²
Montreux-Jeune (68210)
Montreux-Jeune (68210)
Maison de 5 pièces
Maison neuve, 89 m²
Montreux-Jeune (68210)
Montreux-Jeune (68210)
Maison de 4 pièces
Maison neuve, 89 m²
Seloncourt (25230)
Seloncourt (25230)
Maison de 4 pièces
Maison neuve, 91 m²
Seloncourt (25230)
Seloncourt (25230)
Maison de 4 pièces
Maison neuve, 91 m²
Banvillars (90800)
Banvillars (90800)
Maison de 4 pièces
Programmes à proximité
LE VERGER DE L'ALLAINE
Grandvillars (90600)
Grandvillars (90600)
Appartements de 2 à 3 pièces
Livraison 2ème semestre 2027
Résidence du Bois Bourgeois
Montbéliard (25200)
Montbéliard (25200)
Appartements de 2 à 4 pièces
Livraison 4ème trimestre 2027
Le Clos des Arts
Belfort (90000)
Belfort (90000)
Appartements de 2 à 4 pièces
LES BELLES VUES
Altkirch (68130)
Altkirch (68130)
Appartements de 2 à 4 pièces
Contacter BATILOR AGENCE DE BELFORT pour recevoir plus d'informations
Remplissez le formulaire ci-dessous, vos informations sont transmises directement au constructeur qui vous contactera par email ou par téléphone afin de traiter votre demande. En savoir plus.