Maison neuve, 119 m² - Cures (72240)
282 000 €
Cures (72240)
Proposée par MAINE CONSTRUCTION – 5 pièces - 4 chambres - terrain 1 125 m²
|
|
| Maine Construction |
- Demande d'information
- Prendre rendez-vous
MAISON À CONSTRUIRE : ceci est une annonce d'une maison neuve à construire.
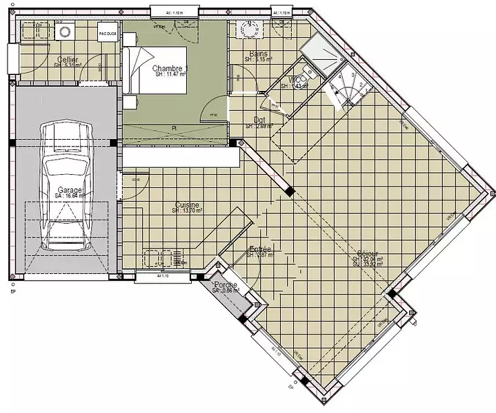
VENTE d'une maison de 5 pièces (119 m²) à Cures
Idéalement située - Maison neuve 5 pièces à vendre à Cures (72240) avec 2 niveaux, une surface de 119 m² et de 1 125 m² de terrain. Son intérieur inclut quatre chambres, une cuisine et deux salles de bains.
Proche gares (Domfront-en-Champagne, Conlie et Crissé), École Élémentaire Publique, boulangerie. Autoroutes A11, A28 et A81 à 19 km. Le Mans à 17 km.
Cette maison de 5 pièces est proposée à l'achat pour 282 000 €.
. Donnez vie à vos projets immobiliers avec Maine Construction Le Mans.
Référence : FH2350117_3
Terrain proposé par un partenaire foncier selon disponibilités et autorisation de publicité au prix de 38 000 €. Hors droit d'enregistrement et frais de notaire. Maison proposée, avec un contrat de construction de maison individuelle, dans le cadre de la loi du 19/12/1990, au prix de 244 000 € (Hors branchements et raccordements, papiers peints, peintures, revêtement de sol dans les chambres, qui sont chiffrés dans les travaux qui restent à charge du client. Tarif modifiable sans préavis). Étiquette énergie : A. Différents modèles disponibles pour ce terrain. Assurances et garanties du constructeur comprises (RC professionnelle, décennale, dommage ouvrage).
Les informations sur les risques auxquels ce bien est exposé sont disponibles sur le site Géorisques : www.georisques.gouv.fr
Idéalement située - Maison neuve 5 pièces à vendre à Cures (72240) avec 2 niveaux, une surface de 119 m² et de 1 125 m² de terrain. Son intérieur inclut quatre chambres, une cuisine et deux salles de bains.
Proche gares (Domfront-en-Champagne, Conlie et Crissé), École Élémentaire Publique, boulangerie. Autoroutes A11, A28 et A81 à 19 km. Le Mans à 17 km.
Cette maison de 5 pièces est proposée à l'achat pour 282 000 €.
. Donnez vie à vos projets immobiliers avec Maine Construction Le Mans.
Référence : FH2350117_3
Terrain proposé par un partenaire foncier selon disponibilités et autorisation de publicité au prix de 38 000 €. Hors droit d'enregistrement et frais de notaire. Maison proposée, avec un contrat de construction de maison individuelle, dans le cadre de la loi du 19/12/1990, au prix de 244 000 € (Hors branchements et raccordements, papiers peints, peintures, revêtement de sol dans les chambres, qui sont chiffrés dans les travaux qui restent à charge du client. Tarif modifiable sans préavis). Étiquette énergie : A. Différents modèles disponibles pour ce terrain. Assurances et garanties du constructeur comprises (RC professionnelle, décennale, dommage ouvrage).
Les informations sur les risques auxquels ce bien est exposé sont disponibles sur le site Géorisques : www.georisques.gouv.fr
- Prix
-
- Prix total : 282 000 €
- Prix du modèle de maison : 244 000 €
- Prix du terrain : 38 000 €
- Terrain
-
- Surface : 1 125 m²
- Maison
-
- Surface : 119 m²
- Pièces : 5
- Chambres : 4
- Garage : 1
- Être rappelé par un conseiller
- Demander plus d’infos
- Demande d'information
Cures (72240)
Maisons à proximité
Maison neuve, 83 m²
Cures (72240)
Cures (72240)
Maison de 3 pièces
Maison neuve, 68 m²
Cures (72240)
Cures (72240)
Maison de 4 pièces
Maison neuve, 140 m²
Cures (72240)
Cures (72240)
Maison de 5 pièces
Maison neuve, 55 m²
Cures (72240)
Cures (72240)
Maison de 3 pièces
Maison neuve, 118 m²
Cures (72240)
Cures (72240)
Maison de 5 pièces
Maison neuve, 256 m²
Cures (72240)
Cures (72240)
Maison de 8 pièces
Programmes à proximité
Néméa Le Mans Université
Le Mans (72000)
Le Mans (72000)
Appartements de 1 pièce
Livraison 2ème trimestre 2027
HARMONIE
Le Mans (72000)
Le Mans (72000)
Appartement de 4 pièces
Livraison 2ème trimestre 2026
LES BOSQUETS TR.1
Le Mans (72000)
Le Mans (72000)
Appartements de 1 à 4 pièces
Livraison 4ème trimestre 2027
Epsilon
Le Mans (72000)
Le Mans (72000)
Appartements de 1 à 3 pièces
Livraison 4ème trimestre 2027
Oméga
Le Mans (72000)
Le Mans (72000)
Appartements de 1 pièce
Livraison 2ème trimestre 2026
Contacter MAINE CONSTRUCTION pour recevoir plus d'informations
Remplissez le formulaire ci-dessous, vos informations sont transmises directement au constructeur qui vous contactera par email ou par téléphone afin de traiter votre demande. En savoir plus.