Maison neuve, 118 m² - Cures (72240)
268 000 €
Cures (72240)
Proposée par MAINE CONSTRUCTION – 5 pièces - 4 chambres - terrain 1 125 m²
|
|
| Maine Construction |
- Demande d'information
- Prendre rendez-vous
MAISON À CONSTRUIRE : ceci est une annonce d'une maison neuve à construire.
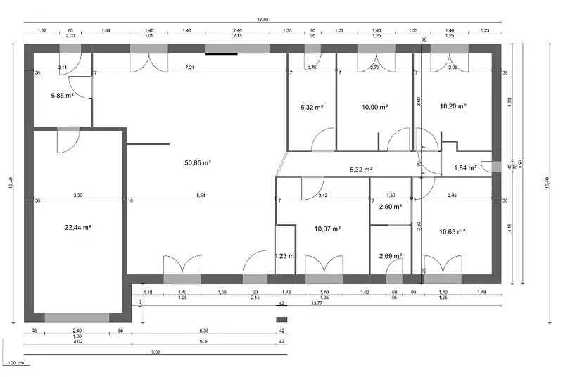
Cures : maison de 5 pièces (118 m²) en vente
Idéalement située - À découvrir à Cures (72240) : maison neuve 5 pièces à vendre, 118 m² de surface et 1 125 m² de terrain. Son intérieur compte quatre chambres, une cuisine et une salle de bains.
Proche gares (Domfront-en-Champagne, Conlie et Crissé), École Élémentaire Publique, boulangerie. Accès autoroutes A11, A28 et A81 à 19 km. Le Mans à 17 km.
Cette maison de 5 pièces est à vendre pour la somme de 268 000 €.
. Maine Construction Le Mans est là pour vous accompagner dans tous vos projets immobiliers.
Référence : FH2350117_6
Terrain proposé par un partenaire foncier selon disponibilités et autorisation de publicité au prix de 38 000 €. Hors droit d'enregistrement et frais de notaire. Maison proposée, avec un contrat de construction de maison individuelle, dans le cadre de la loi du 19/12/1990, au prix de 230 000 € (Hors branchements et raccordements, papiers peints, peintures, revêtement de sol dans les chambres, qui sont chiffrés dans les travaux qui restent à charge du client. Tarif modifiable sans préavis). Étiquette énergie : A. Différents modèles disponibles pour ce terrain. Assurances et garanties du constructeur comprises (RC professionnelle, décennale, dommage ouvrage).
Les informations sur les risques auxquels ce bien est exposé sont disponibles sur le site Géorisques : www.georisques.gouv.fr
Idéalement située - À découvrir à Cures (72240) : maison neuve 5 pièces à vendre, 118 m² de surface et 1 125 m² de terrain. Son intérieur compte quatre chambres, une cuisine et une salle de bains.
Proche gares (Domfront-en-Champagne, Conlie et Crissé), École Élémentaire Publique, boulangerie. Accès autoroutes A11, A28 et A81 à 19 km. Le Mans à 17 km.
Cette maison de 5 pièces est à vendre pour la somme de 268 000 €.
. Maine Construction Le Mans est là pour vous accompagner dans tous vos projets immobiliers.
Référence : FH2350117_6
Terrain proposé par un partenaire foncier selon disponibilités et autorisation de publicité au prix de 38 000 €. Hors droit d'enregistrement et frais de notaire. Maison proposée, avec un contrat de construction de maison individuelle, dans le cadre de la loi du 19/12/1990, au prix de 230 000 € (Hors branchements et raccordements, papiers peints, peintures, revêtement de sol dans les chambres, qui sont chiffrés dans les travaux qui restent à charge du client. Tarif modifiable sans préavis). Étiquette énergie : A. Différents modèles disponibles pour ce terrain. Assurances et garanties du constructeur comprises (RC professionnelle, décennale, dommage ouvrage).
Les informations sur les risques auxquels ce bien est exposé sont disponibles sur le site Géorisques : www.georisques.gouv.fr
- Prix
-
- Prix total : 268 000 €
- Prix du modèle de maison : 230 000 €
- Prix du terrain : 38 000 €
- Terrain
-
- Surface : 1 125 m²
- Maison
-
- Surface : 118 m²
- Pièces : 5
- Chambres : 4
- Garage : 1
- Être rappelé par un conseiller
- Demander plus d’infos
- Demande d'information
Cures (72240)
Maisons à proximité
Maison neuve, 83 m²
Cures (72240)
Cures (72240)
Maison de 3 pièces
Maison neuve, 68 m²
Cures (72240)
Cures (72240)
Maison de 4 pièces
Maison neuve, 140 m²
Cures (72240)
Cures (72240)
Maison de 5 pièces
Maison neuve, 55 m²
Cures (72240)
Cures (72240)
Maison de 3 pièces
Maison neuve, 256 m²
Cures (72240)
Cures (72240)
Maison de 8 pièces
Maison neuve, 99 m²
Cures (72240)
Cures (72240)
Maison de 5 pièces
Programmes à proximité
Néméa Le Mans Université
Le Mans (72000)
Le Mans (72000)
Appartements de 1 pièce
Livraison 2ème trimestre 2027
HARMONIE
Le Mans (72000)
Le Mans (72000)
Appartement de 4 pièces
Livraison 2ème trimestre 2026
LES BOSQUETS TR.1
Le Mans (72000)
Le Mans (72000)
Appartements de 1 à 4 pièces
Livraison 4ème trimestre 2027
Epsilon
Le Mans (72000)
Le Mans (72000)
Appartements de 1 à 3 pièces
Livraison 4ème trimestre 2027
Oméga
Le Mans (72000)
Le Mans (72000)
Appartements de 1 pièce
Livraison 2ème trimestre 2026
Contacter MAINE CONSTRUCTION pour recevoir plus d'informations
Remplissez le formulaire ci-dessous, vos informations sont transmises directement au constructeur qui vous contactera par email ou par téléphone afin de traiter votre demande. En savoir plus.